Prodej - dům/vila, 221 m²
Perlitová, Praha 4, Krč
23 950 000 KčProdej - dům/vila, 221 m²
Perlitová, Praha 4, Krč
Prodej řadového rodinného domu 221 m2 + pozemek 229 m2, Praha 4 Krč
Podlahová plocha domu činí 221 m2, plocha rovinatého pozemku 229 m2.
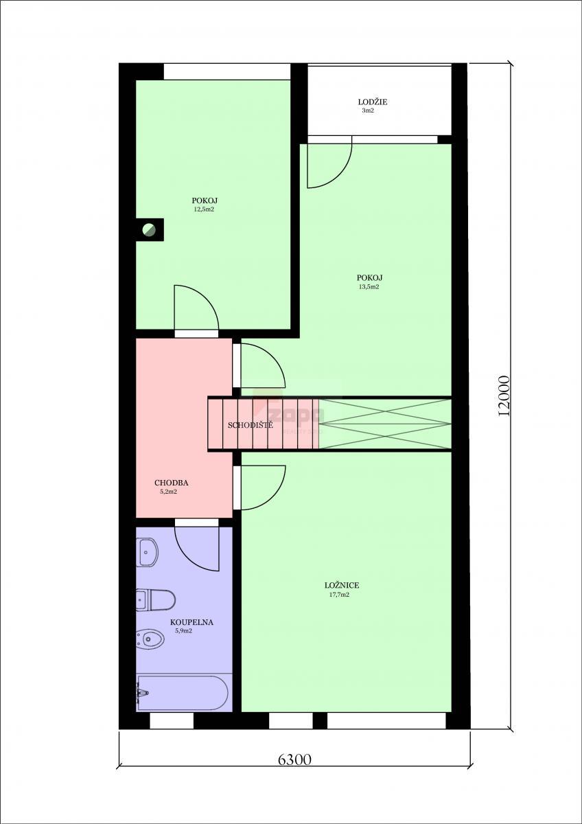
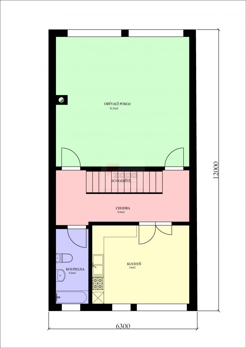
V prvním podlaží je k dispozici bytová jednotka 1+kk s terasou a vstupem na zahradu, garáž a technická místnost.
Druhé a třetí podlaží tvoří bytová jednotka 4+1 se dvěma koupelnami a lodžií.
Terasa a zahrada jsou orientovány na jihovýchod, do klidné zeleně, vstup do domu na severozápad.
Dům, kolaudovaný v roce 1992, prošel částečnou rekonstrukcí - nové rozvody vody, nová eurookna.
Topení a ohřev vody zajišťuje plynový etážový kotel.
Třída energetické náročnosti budovy je C - úsporná.
Ulice Perlitová je jednosměrná, velmi klidná.
Nemovitost je v blízkosti metra Pankrác a Budějovická, těsně vedla sportovního areálu SK Oaza.
V okolí je veškerá občanská vybavenost - školy, školka, poliklinika, obchody.
Dům je možné využít jak k bydlení, tak i k podnikání.
Prohlídky jsou možné ihned, cena je včetně provize.
Koupi lze financovat prostřednictvím hypotečního úvěru, který Vám pomůžeme vyřídit.
| Cena: | 23 950 000 Kč |
| Poznámka: | včetně provize |
| Číslo zakázky: | REALITYMIX-ZR1213 |
Podrobné informace
- Poloha objektu: řadový
- Druh objektu: panelová
- Stav objektu: dobrý
- Počet podlaží objektu: 3
- Typ domu: patrový
- Zastavěná plocha: 77 m²
- Plocha parcely: 229 m²
- Užitná plocha: 221 m²
- Umístění objektu: klidná část obce
- Doprava: MHD
- Elektřina: Elektro - 400 V
- Voda: Zdroj pro celý objekt
- Telekomunikace: Internet
- Plyn: Individuální, Plynovod
- Topení: Ústřední - plynové
- Odpad: Kanalizace
- Energetická náročnost budovy: C - Vyhovující
- Ukazatel energetické náročnosti budovy: 90 kWh/m²
Právní rádce
-
Detail
V tomto článku shrneme nejdůležitější věci, které byste si měli promyslet, pokud se chystáte prodat svou nemovitost a chcete, abyste s kupujícím nemusel následně řešit vzniklé problémy.
Jako prodávající nesete rizika spojená nejen se samotným obchodem, ale i se stavem nemovitosti v době prodeje a pro minimalizaci rizik, je dobré se zamyslet nad uvedenými oblastmi.
-
Detail
Realitní makléř má své nezastupitelné místo v realitním obchodu. Realitním makléřem nemyslím nevzdělané jelito, které absolvovalo dvoudenní školení a ví, jak se nahraje inzerát na inzertní portál.
Realitním makléřem, který se Vám skutečně vyplatí, je zkušený profesionál, který je schopen Vám dobře poradit jak prodat za co nejvíc a s nejmenším rizikem a hlavně je Vás schopen obratně provést celým realitním obchodem.