Prodej bytu, 3+kk, 76 m²
Tupolevova, Praha 18, Letňany
12 235 000 KčProdej bytu, 3+kk, 76 m²
Tupolevova, Praha 18, Letňany
Prodej moderního bytu 3+kk, 76,8 m² + 2 lodžie + garážové stání, novostavba 2019, Praha Letňany
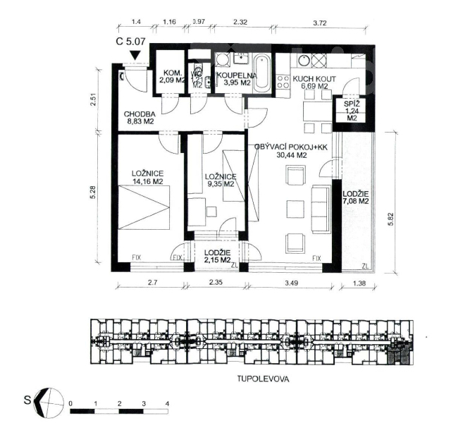
Nabízíme k prodeji světlý a velmi příjemný byt o dispozici 3+kk a celkové ploše 76,83 m², který se nachází v moderní novostavbě z roku 2019 na adrese Tupolevova, Praha 9 - Letňany.
Dominantou bytu je prostorný obývací pokoj s kuchyňským koutem a jídelní částí, který tvoří přirozené centrum celého bytu. Díky velkým oknům a přístupu na lodžii je prostor krásně prosvětlený a působí velmi vzdušně.
Kuchyňská linka je řešena v moderním designu s důrazem na praktičnost a každodenní komfort. Dispozice bytu nabízí dva samostatné pokoje, ideální jako ložnice a dětský pokoj nebo pracovna.
Velkým benefitem jsou dvě lodžie, které rozšiřují obytný prostor a poskytují ideální místo pro relaxaci - ať už ráno u kávy nebo večer po práci.
Součástí prodeje je také garážové stání v domě, což zajišťuje maximální pohodlí a bezpečné parkování bez kompromisů.
Byt je ve velmi dobrém stavu s drobnými kosmetickými úpravami po předchozím nájemci, které lze snadno přizpůsobit dle vlastních představ.
Lokalita Letňany nabízí kompletní občanskou vybavenost - školy, školky, obchody, restaurace i výbornou dopravní dostupnost do centra Prahy.
V dané kategorii novostaveb a lokalitě se jedná o velmi zajímavou nabídku, která spojuje moderní bydlení, praktičnost a dlouhodobou hodnotu.
Tento byt nabízí kombinaci komfortu, prostoru a příjemné atmosféry, kterou je nejlepší zažít osobně.
✔ novostavba z roku 2019
✔ dispozice 3+kk, 76,83 m²
✔ 2 lodžie
✔ garážové stání v domě
✔ praktické dispoziční řešení
✔ světlý a vzdušný interiér
✔ výborná dostupnost do centra
✔ ideální pro vlastní bydlení i investici
Pro více informací nebo sjednání prohlídky mě neváhejte kontaktovat.
| Cena: | 12 235 000 Kč |
| Poznámka: | (včetně garážového stání) |
| Dispozice/podlahová plocha: | 3+kk/76 m² |
| Číslo zakázky: | REALITYMIX-234647 |
Podrobné informace
- Dispozice bytu: 3+kk
- Číslo podlaží v domě: 4
- Počet podlaží objektu: 4
- Celková podlahová plocha: 76 m²
- Druh objektu: cihlová
- Stav objektu: dobrý
- Stáří objektu: 2019
- Vlastnictví: osobní
- Lodžie: 9 m²
- Vybaveno: ano
- Doprava: MHD, autobus
- Elektřina: Elektro - 230 V
- Voda: Voda - dálkový vodovod
- Topení: Ústřední - dálkové
- Odpad: Kanalizace
- Energetická náročnost budovy: C - Vyhovující
Právní rádce
-
Detail
V tomto článku shrneme nejdůležitější věci, které byste si měli promyslet, pokud se chystáte prodat svou nemovitost a chcete, abyste s kupujícím nemusel následně řešit vzniklé problémy.
Jako prodávající nesete rizika spojená nejen se samotným obchodem, ale i se stavem nemovitosti v době prodeje a pro minimalizaci rizik, je dobré se zamyslet nad uvedenými oblastmi.
-
Detail
Realitní makléř má své nezastupitelné místo v realitním obchodu. Realitním makléřem nemyslím nevzdělané jelito, které absolvovalo dvoudenní školení a ví, jak se nahraje inzerát na inzertní portál.
Realitním makléřem, který se Vám skutečně vyplatí, je zkušený profesionál, který je schopen Vám dobře poradit jak prodat za co nejvíc a s nejmenším rizikem a hlavně je Vás schopen obratně provést celým realitním obchodem.