Prodej bytu, 4+1, 95 m²
Borského, Praha 5, Hlubočepy
9 990 000 KčProdej bytu, 4+1, 95 m²
Borského, Praha 5, Hlubočepy
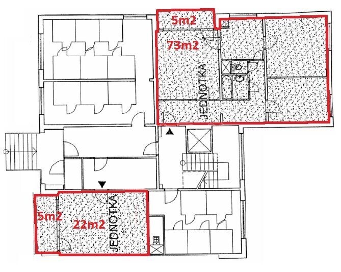
Prodej jednotky, 3+1 a 1+kk, 95m2 + 10m2 lodžie, Praha 5 - Hlubočepy
| Cena: | 9 990 000 Kč |
| Poznámka: | Cena je uvedena včetně provize RK |
| Datum k nastěhování: | 01.02.2025 |
| Dispozice/podlahová plocha: | 4+1/95 m² |
| Číslo zakázky: | REALITYMIX-18422 |
Podrobné informace
- Dispozice bytu: 4+1
- Číslo podlaží v domě: 1
- Počet podlaží objektu: 7
- Užitná plocha: 95 m²
- Celková podlahová plocha: 95 m²
- Druh objektu: panelová
- Stav objektu: po rekonstrukci
- Vlastnictví: osobní
- Lodžie: 10 m²
- Vybaveno: ano
- Umístění objektu: klidná část obce
- Doprava: vlak, dálnice, silnice, MHD, autobus
- Elektřina: Elektro - 120 V, Elektro - 230 V
- Voda: Voda - dálkový vodovod
- Telekomunikace: Internet
- Topení: Ústřední - dálkové
- Odpad: Kanalizace
- Ostatní rozvody: Kabelové rozvody
- Energetická náročnost budovy: C - Úsporná
- Energetický ukazatel podle vyhlášky: č. 264/2020 Sb.
Právní rádce
-
Detail
V tomto článku shrneme nejdůležitější věci, které byste si měli promyslet, pokud se chystáte prodat svou nemovitost a chcete, abyste s kupujícím nemusel následně řešit vzniklé problémy.
Jako prodávající nesete rizika spojená nejen se samotným obchodem, ale i se stavem nemovitosti v době prodeje a pro minimalizaci rizik, je dobré se zamyslet nad uvedenými oblastmi.
-
Detail
Realitní makléř má své nezastupitelné místo v realitním obchodu. Realitním makléřem nemyslím nevzdělané jelito, které absolvovalo dvoudenní školení a ví, jak se nahraje inzerát na inzertní portál.
Realitním makléřem, který se Vám skutečně vyplatí, je zkušený profesionál, který je schopen Vám dobře poradit jak prodat za co nejvíc a s nejmenším rizikem a hlavně je Vás schopen obratně provést celým realitním obchodem.