Hospodářské noviny
Hledat Přihlásit seMůj účet Předplatné
Přihlásit seMůj účet Předplatné
  • Home
  • Byznys
  • Zprávy
  • Názory
  • Tech
  • Reality
  • Investice
  • Podcasty
  • Hry
  • PročNe
  • Archiv
  • Další
  • Jak nastartovat sever
  • Speciály HN
  • Víkend
  • Magazín Stavba
  • Knihy HN
  • Eventy
  • Green Deal
  • Inovátoři roku
  • Top ženy
  • Nej banka / Nej pojišťovna
  • Předplatné
  • Redakce
  • Inzerce
  • Kontakty
  • Newslettery
  • Ekonom
  • Logistika
  • Právní rádce
  • Hry
  • Economia
  • BeNative
  • Nastavení účtu
  • Moje předplatné
  • Odhlásit se

Reality

  • Reality
  • Vyhledávání nemovitostí
  • Top realitní fondy
  • Magazín Stavba
Prodej bytu, 5+1, 119 m²

Prodej bytu, 5+1, 119 m²

Dominova, Praha 13, Stodůlky

11 990 000 Kč
  • RealityMIX
  • Byty
  • Prodej
  • Praha
  • Praha 5
0 z 5 (0 hodnocení)

Prodej bytu, 5+1, 119 m²

Dominova, Praha 13, Stodůlky

11 990 000 Kč
G
Mimořádně nehospodárná
Výpis
Předchozí inzerát Další inzerát
1767177958-icysfurygu-designer3
1767177953-utoonqkioq-designer
1763149191-rllfxeyvii-vchod-novy-cc-81

Prodej bytu 5+1 119 m²

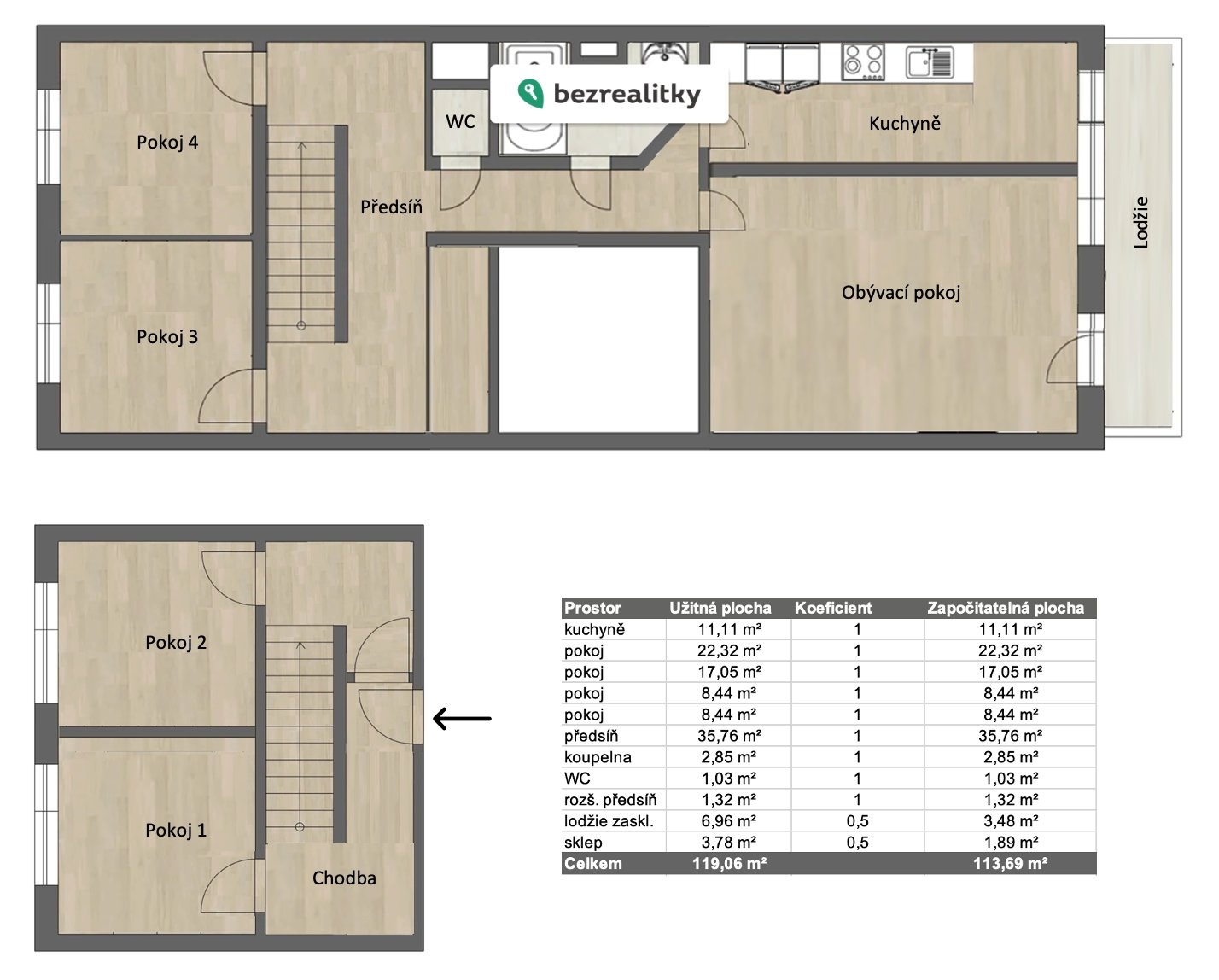
Přímo od majitele nabízím k prodeji mezonetový byt s jedinečnou dispozicí 5+1 o celkové podlahové ploše 119 m² v panelové budově na ulici Dominova, sedmé podlaží ze sedmi. Byt je situován v klidné části Prahy 5, v bezprostřední blízkosti zeleně a metra Hůrka.

Byt je udržovaný, s možností okamžitého užívání, ale zasloužil by si rekonstrukci. Po vstupu do bytu vás přivítá předsíň, z ní vstup do pokoje cca 12 m² po pravé straně a menší pokoj cca 8,5 m² přímo rovně. Po schodech vystoupáte do vyššího patra, kde jsou obdobné dva pokoje, vestavěné skříně, oddělená toaleta a samostatná koupelna. Kuchyně je umístěna dále chodbou vlevo, obývací pokoj (cca 23 m²) vpravo; z něj je vstup na lodžii (7 m²). Byt má sklepní kóji (3,78 m²).

Výborná orientace v posledním patře zaručuje klidné prostředí a ničím nerušené výhledy.

Lokalita nabízí kompletní občanskou vybavenost: školy, obchody, sportoviště i rychlou dostupnost MHD. Ideální pro rodinu hledající prostorný byt s promyšlenou dispozicí v panelovém domě.

Nemovitost osobně vlastněná, připravena k převodu od 1.2.2026. Pro bližší informace a dohodu o prohlídce mě neváhejte kontaktovat. Tato nemovitost je určena výhradně přímým zájemcům o koupi. Na inzerát můžete také reagovat přímo na webu Bezrealitky: https://www.bezrealitky.cz/nemovitosti-byty-domy/965119-nabidka-prodej-bytu-dominova-praha
Cena: 11 990 000 Kč  
Dispozice/podlahová plocha: 5+1/119 m²
Číslo zakázky: REALITYMIX-965119

Podrobné informace

  • Dispozice bytu: 5+1
  • Číslo podlaží v domě: 7
  • Počet podlaží objektu: 7
  • Celková podlahová plocha: 119 m²
  • Druh objektu: panelová
  • Stav objektu: dobrý
  • Vlastnictví: osobní
  • Lodžie: 7 m²
  • Vybaveno: ano
  • Umístění objektu: sídliště
  • Energetická náročnost budovy: G - Mimořádně nehospodárná

Sdílej na:

Facebook     Twitter

Tisk nabídky (pdf)

  • (A4)
  • (A4)
  • (A4)
  • (A4)
  • (A5)

Poslat odkaz:

Právní rádce

Právní rádce
  • V tomto článku shrneme nejdůležitější věci, které byste si měli promyslet, pokud se chystáte prodat svou nemovitost a chcete, abyste s kupujícím nemusel následně řešit vzniklé problémy.

    Jako prodávající nesete rizika spojená nejen se samotným obchodem, ale i se stavem nemovitosti v době prodeje a pro minimalizaci rizik, je dobré se zamyslet nad uvedenými oblastmi.

    Detail
  • Realitní makléř má své nezastupitelné místo v realitním obchodu. Realitním makléřem nemyslím nevzdělané jelito, které absolvovalo dvoudenní školení a ví, jak se nahraje inzerát na inzertní portál.

    Realitním makléřem, který se Vám skutečně vyplatí, je zkušený profesionál, který je schopen Vám dobře poradit jak prodat za co nejvíc a s nejmenším rizikem a hlavně je Vás schopen obratně provést celým realitním obchodem.

    Detail
  • Detail
Chci vědět víc
Právní rádce

Prodáváte nemovitost a potřebujete zjistit její reálnou hodnotu?

Zjistit reálnou cenu

Vývoj průměrné ceny za m2 v lokalitě Praha 5

Ceny uvedené v grafu, jsou průměrnými cenami ze sledované lokality a nezohledňují stav, stáří ani vybavení nemovitosti.
1Q 2022 126974
1Q 2022
Průměrná nabídková cena 126 974 Kč/m²

Aktuální nabídka: 100 756 Kč/m²
2Q 2022 127014
2Q 2022
Průměrná nabídková cena 127 014 Kč/m²

Aktuální nabídka: 100 756 Kč/m²
3Q 2022 127981
3Q 2022
Průměrná nabídková cena 127 981 Kč/m²

Aktuální nabídka: 100 756 Kč/m²
4Q 2022 127792
4Q 2022
Průměrná nabídková cena 127 792 Kč/m²

Aktuální nabídka: 100 756 Kč/m²
1Q 2023 126797
1Q 2023
Průměrná nabídková cena 126 797 Kč/m²

Aktuální nabídka: 100 756 Kč/m²
2Q 2023 125900
2Q 2023
Průměrná nabídková cena 125 900 Kč/m²

Aktuální nabídka: 100 756 Kč/m²
3Q 2023 124574
3Q 2023
Průměrná nabídková cena 124 574 Kč/m²

Aktuální nabídka: 100 756 Kč/m²
4Q 2023 129412
4Q 2023
Průměrná nabídková cena 129 412 Kč/m²

Aktuální nabídka: 100 756 Kč/m²
1Q 2024 133086
1Q 2024
Průměrná nabídková cena 133 086 Kč/m²

Aktuální nabídka: 100 756 Kč/m²
2Q 2024 136953
2Q 2024
Průměrná nabídková cena 136 953 Kč/m²

Aktuální nabídka: 100 756 Kč/m²
3Q 2024 139252
3Q 2024
Průměrná nabídková cena 139 252 Kč/m²

Aktuální nabídka: 100 756 Kč/m²
4Q 2024 138559
4Q 2024
Průměrná nabídková cena 138 559 Kč/m²

Aktuální nabídka: 100 756 Kč/m²
1Q 2025 141173
1Q 2025
Průměrná nabídková cena 141 173 Kč/m²

Aktuální nabídka: 100 756 Kč/m²
2Q 2025 148199
2Q 2025
Průměrná nabídková cena 148 199 Kč/m²

Aktuální nabídka: 100 756 Kč/m²
3Q 2025 152872
3Q 2025
Průměrná nabídková cena 152 872 Kč/m²

Aktuální nabídka: 100 756 Kč/m²
4Q 2025 156075
4Q 2025
Průměrná nabídková cena 156 075 Kč/m²

Aktuální nabídka: 100 756 Kč/m²

Prodáváte nemovitost a potřebujete zjistit její reálnou hodnotu?

Zjistit reálnou cenu

Mapa

* Umístění na mapě je na základě GPS informací dodaných realitní kanceláří.
* Pozice na mapě je pouze orientační.

Souhlas se zpracováním osobních údajů

Uživatel serveru Reality.hn.cz (dále jen „Server“) dostupného na internetové adrese (URL) https://realitymix.hn.cz, který provozuje společnost DALTEN media s.r.o., se sídlem Na Harfě 916/9a, Praha 9, 190 00, IČO: 271 35 306 (dále jen „Správce“) jako provozovateli tohoto Serveru uděluje svůj výslovný souhlas v souladu s ustanovením § 5 zákona č. 101/2000 Sb. O ochraně osobních údajů a o změně některých zákonů, v platném znění (dále jen „zákon o ochraně osobních údajů“), se zpracováním uživatelem poskytnutých osobních údajů a dalších dat.

Uživatel poskytuje Správci osobní údaje v rozsahu: jméno, příjmení, e-mailová adresa, telefonický kontakt a další data, a to z důvodu projeveného zájmu o nemovitost, kde prostřednictvím služby Serveru Správce osloví Uživatel inzerenta uvedeného v detailu nemovitosti - Bezrealitky s.r.o. (IČ 08063168) se zájmem o jeho služby.

Uživatel tyto osobní údaje poskytuje dobrovolně a bere na vědomí, že součástí služeb Správce, které Správce Uživateli poskytuje, je vyhledání všech Uživateli vyhovujících (dle parametrů - cena, typ nemovitosti, lokalita atd.) nemovitostí. Správce za tímto účelem provozuje aplikace Hlídací pes a newsletter. Tyto služby je možné z každého zaslaného emailu odhlásit. Souhlas se zpracováním osobních údajů Uživatel poskytuje Správci na dobu neurčitou s tím, že svůj udělený souhlas může Uživatel kdykoliv na drese správce info@realitymix.cz odvolat. Správce garantuje Uživateli i další práva uvedené v ustanovení §11 a §21 zákoba č. 101/200 Sb. Ve znění pozdějších předpisů. Více informací o zpracování údajů získáte zde (realitymix.cz/zasady-ochrany-osobnich-udaju)

Podobné nemovitosti

Prodej bytu, 4+1, 99 m² obrázek

Prodej bytu, 4+1, 99 m²

Chalabalova, Praha 13, Stodůlky

9 499 000 Kč
Prodej bytu, 4+kk, 129 m² obrázek

Prodej bytu, 4+kk, 129 m²

Plzeňská, Praha 13, Stodůlky

15 990 000 Kč
Prodej bytu, 6+1, 177 m² obrázek

Prodej bytu, 6+1, 177 m²

Plzeňská, Praha 13, Stodůlky

21 880 000 Kč
Prodej bytu, 2+kk, 55 m² obrázek

Prodej bytu, 2+kk, 55 m²

V hůrkách, Praha 13, Stodůlky

7 599 000 Kč

Napsat zprávu prodejci

Prodej bytu, 5+1, 119 m²

Prodej bytu, 5+1, 119 m²

Dominova, Praha 13, Stodůlky

11 990 000 Kč

Hospodářské noviny

© 1996-2026 Economia, a.s.

Hospodářské noviny (print)   ISSN 0862-9587
Hospodářské noviny (online) ISSN 2787-950X

Certifikováno
jti
Sledujte nás
Stáhněte si aplikaci HN
  • Kontakty
  • Tiráž redakce HN
  • Economia
  • Kariéra v HN
  • Ceník inzerce
  • Ochrana osobních údajů
  • Prohlášení o cookies
  • Nastavení soukromí
  • Všeobecné smluvní podmínky
  • Koupit / darovat předplatné
  • Eventy
  • Newslettery
  • RSS kanály
Autorská práva vykonává vydavatel. Bez písemného svolení vydavatele je zakázáno jakékoli užití částí nebo celku díla, zejména rozmnožování a šíření jakýmkoli způsobem, mechanickým nebo elektronickým, v českém nebo jiném jazyce. Bez souhlasu vydavatele je zakázáno též rozmnožování obsahu pro účely automatizované analýzy textů nebo dat podle ustanovení § 39c autorského zákona.