Prodej bytu, 4+kk, 104 m²
Vybíralova, Praha 14, Černý Most
9 900 000 KčProdej bytu, 4+kk, 104 m²
Vybíralova, Praha 14, Černý Most
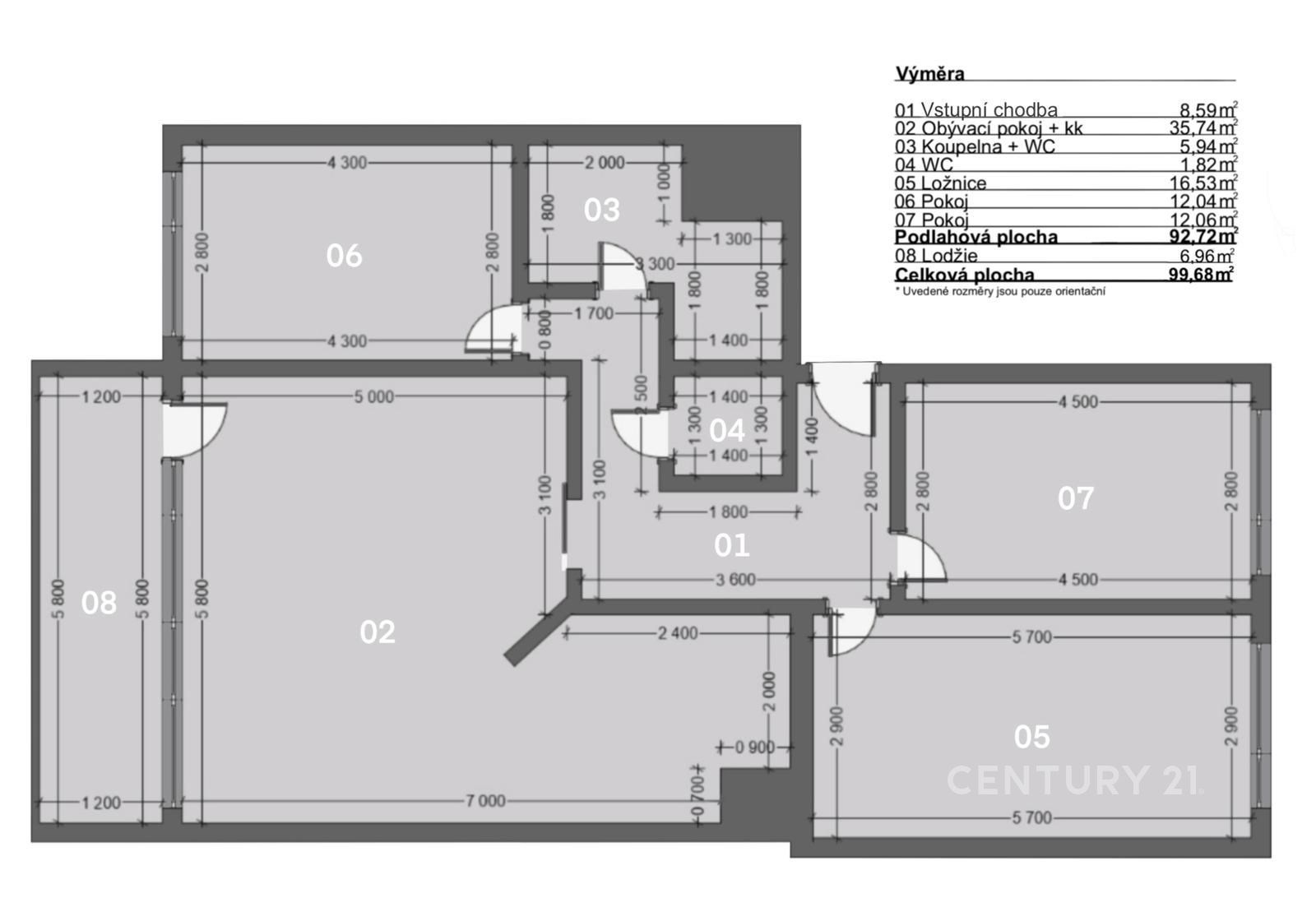
Prodej bytu 4+kk se zasklenou lodžií a sklepem, 104m², P9 Černý Most, ulice Vybíralova
Co mě na místě zaujalo nejvíc? Rozhodně rozlehlá zeleň – a to nejen tak ledajaká. Tady se příroda nejen udržuje, ale i rozvíjí. Zelené plochy tu svou rozlohou dokonce předčí i pražskou Stromovku. Klidnou procházkou se dostanete až ke golfovému hřišti, Kyjskému rybníku, Martiňáku nebo k originální rozhledně Doubravka. Pokud máte pejska, budete nadšení – tenhle kout Prahy si zamiluje stejně jako vy.
A když budete mít chuť spojit přírodu s dobrou gastronomií, vydáte se do zámeckého parku v Dolních Počernicích, dáte si poctivé pivo v Počernickém pivovaru a skvělé jídlo v italské restauraci Al Mulino. A věřte, že to není všechno.
Černý Most překvapí i aktivní duše. Každoročně se tu koná populární Gladiator Race, jen pár kroků od domu najdete sportovní a komunitní centrum Plechárna s bistrem, několik fitness studií, venkovní posilovnu, skatepark, inline dráhy a cyklostezky, které vás dovedou až do Klánovic a dál – třeba až do Poděbrad.
A co každodenní život? Mateřská školka je přímo před domem, vaše děti zvládnou dojít bezpečně samy do školy za tři minuty. V sousedním vchodu najdete menší obchod se základními potravinami, nápoji a drogerií. Na větší nákupy, do kina nebo na dobrou kávu si rádi zajdete do Centra Černý Most. Metro je vzdáleno deset minut chůze, nebo pohodlně tři minuty autobusem – a za půl hodiny jste v centru Prahy. V docházkové vzdálenosti je i poliklinika a veterinář.
A co samotný byt? Je krásně prosvětlený, s velmi příjemnou a praktickou dispozicí. Hned při vstupu vás okouzlí prostorný obývací pokoj – osobně jsem v něm měl pocit, že jsem v rodinném domě. Na něj navazuje zasklená lodžie, která se brzy rozšíří a posune vaše bydlení na ještě vyšší úroveň. Sklepní prostor je sdílený jen se sousedkou a je bezpečně uzavřený.
Dům má pouze osm bytových jednotek, což zajišťuje příjemné, komorní a přátelské prostředí. Obyvatelé do něj pravidelně investují, aby se tu bydlelo ještě lépe, a to třeba i formou plánovaného rozšíření lodžií.
Přijďte se sami přesvědčit, jak skvělé může být bydlení na Černém Mostě – praktické, zelené, klidné a přitom s výbornou dopravní dostupností.
| Cena: | 9 900 000 Kč |
| Datum k nastěhování: | 23.02.2026 |
| Dispozice/podlahová plocha: | 4+kk/104 m² |
| Číslo zakázky: | REALITYMIX-963614 |
Podrobné informace
- Dispozice bytu: 4+kk
- Číslo podlaží v domě: 2
- Počet podlaží objektu: 5
- Celková podlahová plocha: 104 m²
- Druh objektu: panelová
- Stav objektu: dobrý
- Vlastnictví: osobní
- Lodžie: 7 m²
- Sklep: 4 m²
- Vybaveno: ano
- Elektřina: Elektro - 230 V
- Voda: Zdroj pro celý objekt, Voda - dálkový vodovod
- Odpad: Kanalizace
- Energetická náročnost budovy: C - Úsporná
- Energetický ukazatel podle vyhlášky: č. 264/2020 Sb.
- Popis vybavení: .
Právní rádce
-
Detail
V tomto článku shrneme nejdůležitější věci, které byste si měli promyslet, pokud se chystáte prodat svou nemovitost a chcete, abyste s kupujícím nemusel následně řešit vzniklé problémy.
Jako prodávající nesete rizika spojená nejen se samotným obchodem, ale i se stavem nemovitosti v době prodeje a pro minimalizaci rizik, je dobré se zamyslet nad uvedenými oblastmi.
-
Detail
Realitní makléř má své nezastupitelné místo v realitním obchodu. Realitním makléřem nemyslím nevzdělané jelito, které absolvovalo dvoudenní školení a ví, jak se nahraje inzerát na inzertní portál.
Realitním makléřem, který se Vám skutečně vyplatí, je zkušený profesionál, který je schopen Vám dobře poradit jak prodat za co nejvíc a s nejmenším rizikem a hlavně je Vás schopen obratně provést celým realitním obchodem.