Prodej bytu, 3+kk, 93 m²
Na pomezí, Praha 5, Jinonice
15 490 000 KčProdej bytu, 3+kk, 93 m²
Na pomezí, Praha 5, Jinonice
Prodej bytu 3+kk - 81 m² + terasa 12 m² a dvojgaráž 25 m², Na pomezí, Praha 5 - Jinonice
Moderní, velmi světlý byt 3+kk o ploše 81 m² s terasou 12 m² a vlastní dvojgaráží se nachází ve 3. nadzemním podlaží energeticky úsporného domu ve vyhledávané lokalitě Na Pomezí, Praha – Jinonice.
Velkým benefitem, který u bytů v Praze rozhodně není samozřejmostí, je prostorná dvojgaráž o velikosti téměř 25 m². Ta nabízí nejen pohodlné parkování pro dva vozy, ale i dostatek místa pro úložné řešení nebo sportovní vybavení. Samozřejmostí je příprava na wallbox pro elektromobil. Před domem jsou navíc k dispozici další dvě parkovací místa v osobním vlastnictví s možností dokoupení.
Při vstupu do bytu je cítit důraz na prostor a světlo. Obývací pokoj s kuchyňským koutem tvoří přirozené centrum bytu a díky velkým oknům a přímému vstupu na terasu působí velmi vzdušně a otevřeně. Východní orientace přináší příjemné ranní světlo a výhled na Prahu. Dispozice nabízí dva samostatné pokoje, koupelnu s vanou a oddělenou toaletu. Celý byt je řešen prakticky a zároveň působí čistě a moderně.
Velkým benefitem, který u bytů v Praze rozhodně není samozřejmostí, je prostorná dvojgaráž o velikosti téměř 25 m². Ta nabízí nejen pohodlné parkování pro dva vozy, ale i dostatek místa pro úložné řešení nebo sportovní vybavení. Samozřejmostí je příprava na wallbox pro elektromobil. Před domem jsou navíc k dispozici další dvě parkovací místa v osobním vlastnictví s možností dokoupení.
Standard bytu odpovídá moderním požadavkům na komfortní bydlení. Kvalitní dřevěné podlahy, podlahové konvektory s regulací, rekuperace vzduchu a francouzská trojvrstvá dřevěná okna zajišťují příjemné vnitřní klima, dostatek světla i kvalitní akustiku.
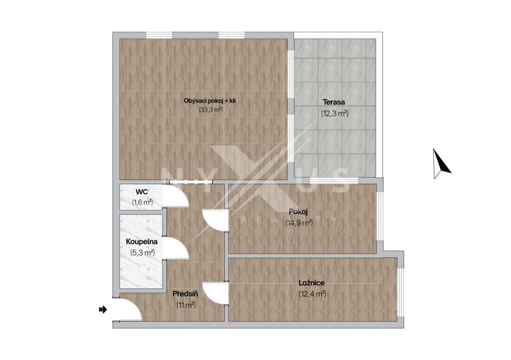
Dispozice bytu:
Předsíň: 11,0 m²
Obývací pokoj + kuchyňský kout: 33,3 m²
Pokoj 1: 12,4 m²
Pokoj 2: 14,9 m²
Koupelna: 5,3 m²
Samostatné WC: 1,6 m²
Terasa: 12,3 m²
Celý dům vyniká kvalitním provedením a v domě je pouhých 13 jednotek. SVJ funguje spolehlivě, bez jakýchkoliv závazků či úvěrů a hospodaří úsporně.
Lokalita Jinonice patří mezi vyhledávané části Prahy. Nabízí rychlou dostupnost do centra a zároveň blízkost přírodního parku Košíře–Motol s množstvím vycházkových tras. Ideální volba pro ty, kteří hledají kombinaci klidného prostředí, zeleně a městského komfortu.
Energetická náročnost budovy: třída C – úsporná.
Nemovitost je v osobním vlastnictví a lze ji tedy financovat hypotečním úvěrem, který Vám zdarma pomůžeme vyřídit za nejvýhodnějších podmínek na trhu.
Zaujala vás tato nabídka? Neváhejte mě kontaktovat pro více informací nebo si rovnou domluvit termín prohlídky.
Těším se na setkání s vámi!
| Cena: | 15 490 000 Kč |
| Poznámka: | Včetně všech poplatků RK |
| Datum k nastěhování: | 01.01.2026 |
| Dispozice/podlahová plocha: | 3+kk/93 m² |
| Číslo zakázky: | REALITYMIX-2013 |
Podrobné informace
- Dispozice bytu: 3+kk
- Číslo podlaží v domě: 3
- Počet podlaží objektu: 5
- Užitná plocha: 81 m²
- Celková podlahová plocha: 93 m²
- Druh objektu: cihlová
- Stav objektu: velmi dobrý
- Vlastnictví: osobní
- Balkon: 1 m²
- Lodžie: 1 m²
- Terasa: 12 m²
- Vybaveno: ano
- Doprava: silnice, MHD, autobus
- Elektřina: Elektro - 230 V
- Voda: Voda - dálkový vodovod
- Telekomunikace: Telefon, Internet
- Plyn: Plynovod
- Odpad: Kanalizace
- Ostatní rozvody: Kabelová televize, Kabelové rozvody
- Energetická náročnost budovy: C - Úsporná
- Ukazatel energetické náročnosti budovy: 107 kWh/m²
- Energetický ukazatel podle vyhlášky: č. 264/2020 Sb.
Právní rádce
-
Detail
V tomto článku shrneme nejdůležitější věci, které byste si měli promyslet, pokud se chystáte prodat svou nemovitost a chcete, abyste s kupujícím nemusel následně řešit vzniklé problémy.
Jako prodávající nesete rizika spojená nejen se samotným obchodem, ale i se stavem nemovitosti v době prodeje a pro minimalizaci rizik, je dobré se zamyslet nad uvedenými oblastmi.
-
Detail
Realitní makléř má své nezastupitelné místo v realitním obchodu. Realitním makléřem nemyslím nevzdělané jelito, které absolvovalo dvoudenní školení a ví, jak se nahraje inzerát na inzertní portál.
Realitním makléřem, který se Vám skutečně vyplatí, je zkušený profesionál, který je schopen Vám dobře poradit jak prodat za co nejvíc a s nejmenším rizikem a hlavně je Vás schopen obratně provést celým realitním obchodem.