Prodej bytu, 2+kk, 71 m²
Jurkovičova, Praha 11, Háje
13 290 000 KčProdej bytu, 2+kk, 71 m²
Jurkovičova, Praha 11, Háje
Prodej bytu 2kk/2xTerasa, Praha 4, Háje, ulice Jurkovičova
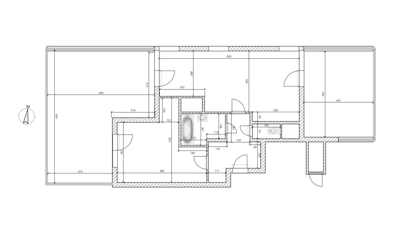
V bytě plastová okna, plovoucí podlahy, klimatizace v obývacím pokoji a kuchyňském koutu. Kuchyně včetně spotřebičů, koupelna s vanou, umyvadlem, topným žebříkem a přípojkou pro pračku, samostatná toaleta. Vestavěné skříně v předsíni. Vytápění a ohřev vody ústřední dálkové.
Dominantou bytu jsou prostorné terasy s výhledem na Milíčovský les, Kateřinky a Jižní Město. Západní terasa 46 m2 (z toho cca 11 m2 zastřešená), východní terasa 24 m2.
Vedle bytu zděná komora, (vejdou se kola).
Vnitřní dispozice bytu je aktuálně upravena na 3kk, formou odstranitelných příček.
Dům i garáže jsou hlídané kamerovým systémem. Vstupy do domu na čip. Rozveden kabelový internet a TV.
Měsíční poplatky cca 5.500,-Kč včetně fondu oprav a garážového stání.
Skvělé místo pro život, sportovní vyžití, nákupy, doprava, všechno v naprosté blízkosti: u domu Milíčovské vrchy, Milíčovský les a rybníky, stanice metra Háje a autobusové spoje 5 min. pěšky, v krátké pěší vzdálenosti školy, školky, restaurace, Ice Arena Kateřinky, Olympia Fitness a Fitness Galaxie, OC Opatovská, Poliklinika, LIDL, Albert, Billa, Norma, Zoopark.
Byt je k nastěhování od 31.07. 2026
Možnost hypotéky.
| Cena: | 13 290 000 Kč |
| Poznámka: | Cena včetně provize RK, právních služeb a advokátní úschovy, možnost přikoupit garážové stání za 590.000,-Kč |
| Dispozice/podlahová plocha: | 2+kk/71 m² |
| Číslo zakázky: | REALITYMIX-26106 |
Podrobné informace
- Dispozice bytu: 2+kk
- Číslo podlaží v domě: 7
- Počet podlaží objektu: 1
- Užitná plocha: 69 m²
- Celková podlahová plocha: 71 m²
- Druh objektu: smíšená
- Stav objektu: novostavba
- Vlastnictví: osobní
- Terasa: 70 m²
- Umístění objektu: klidná část obce
- Elektřina: Elektro - 230 V
- Voda: Voda - dálkový vodovod
- Topení: Ústřední - dálkové
- Odpad: Kanalizace
- Energetická náročnost budovy: C - Úsporná
- Energetický ukazatel podle vyhlášky: č. 264/2020 Sb.
Právní rádce
-
Detail
V tomto článku shrneme nejdůležitější věci, které byste si měli promyslet, pokud se chystáte prodat svou nemovitost a chcete, abyste s kupujícím nemusel následně řešit vzniklé problémy.
Jako prodávající nesete rizika spojená nejen se samotným obchodem, ale i se stavem nemovitosti v době prodeje a pro minimalizaci rizik, je dobré se zamyslet nad uvedenými oblastmi.
-
Detail
Realitní makléř má své nezastupitelné místo v realitním obchodu. Realitním makléřem nemyslím nevzdělané jelito, které absolvovalo dvoudenní školení a ví, jak se nahraje inzerát na inzertní portál.
Realitním makléřem, který se Vám skutečně vyplatí, je zkušený profesionál, který je schopen Vám dobře poradit jak prodat za co nejvíc a s nejmenším rizikem a hlavně je Vás schopen obratně provést celým realitním obchodem.