Prodej bytu, 2+kk, 63 m²
Jankovcova, Praha 7, Holešovice
14 720 000 KčProdej bytu, 2+kk, 63 m²
Jankovcova, Praha 7, Holešovice
Prodej bytu 2+kk 63 m², Praha - Holešovice
Přímo ve vchodě je i recepce.
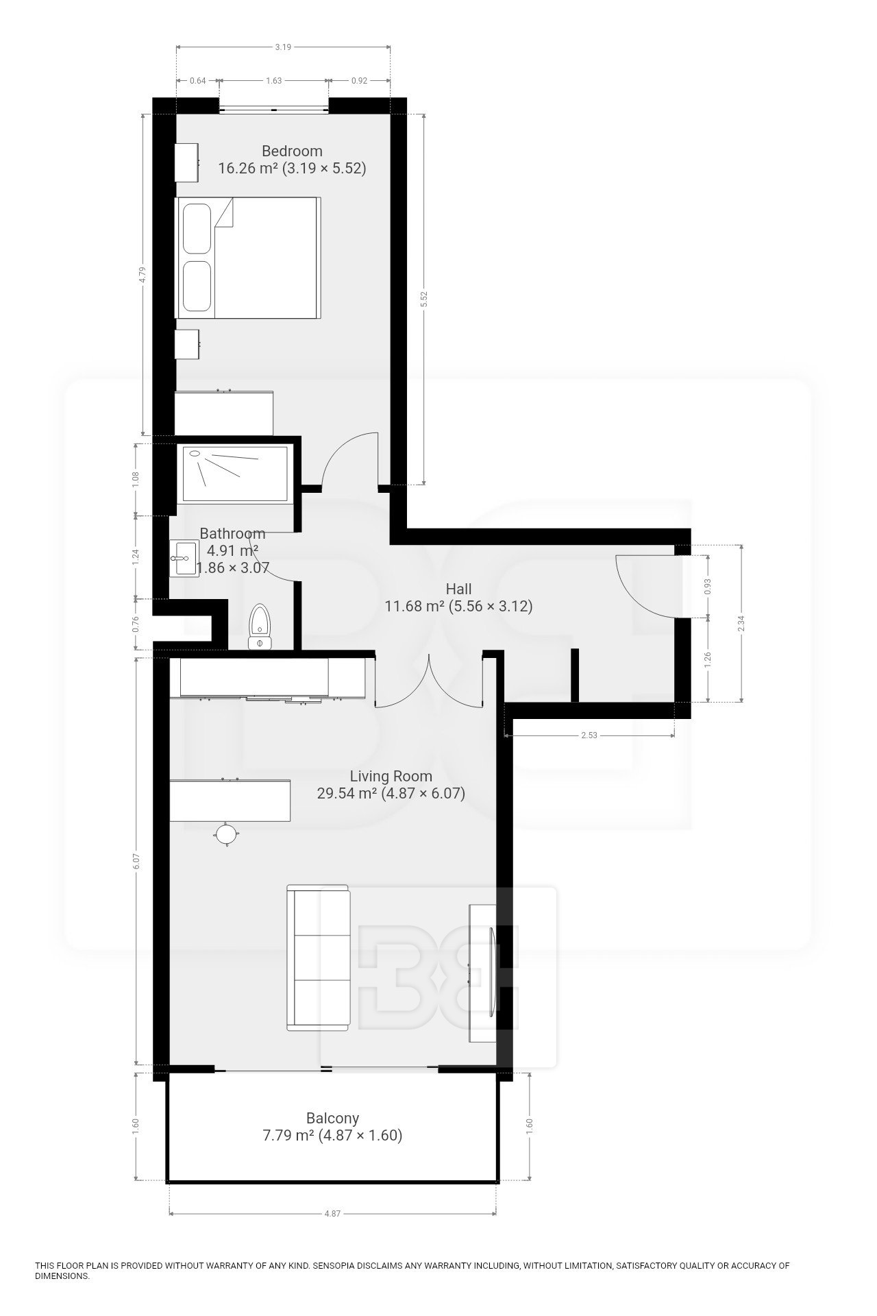
Byt má velmi dobře řešenou dispozici s okny na dvě světové strany, což zajišťuje dostatek denního světla a možnost efektivního větrání.
• Obývací pokoj s lodžií a kuchyňským koutem je orientován na severovýchod
• Ložnice je orientována na jihozápad a nachází se na druhém konci bytu od obývacího pokoje
Součástí bytu je lodžie o výměře 7 m², který není započítán do podlahové plochy bytu. Velkou výhodou balkonu je nízké zastřešení, díky kterému je možné jej komfortně využívat i za nepříznivého počasí, například při dešti.
K bytu dále náleží velmi prostorný sklep o výměře přibližně 11 m², který poskytuje nadstandardní úložný prostor.
Byt je proveden ve vysokém standardu:
• Podlahové vytápění v obývacím pokoji, ložnici a koupelně
• Plovoucí podlahy
• Rekuperace vzduchu
• Trojskla
• Venkovní rolety
• Interiérové dveře se skrytými panty
Byt je prodáván jako nevybavený, součástí je pouze kuchyňská linka IKEA se spotřebiči (myčka, dvouplotýnková varná deska, trouba, lednice s mrazákem) a kuchyňský ostrůvek.
V bytě aktuálně bydlí nájemníci.
Prohlídky jsou možné po předchozí domluvě a s ohledem na jejich časové možnosti.
Veškerý nábytek zobrazený na fotografiích je ve vlastnictví nájemníků a není předmětem prodeje.
V případě zájmu Vám rád pošlu odkaz na virtuální prohlídku, abyste měli úplnou představu o nabízené nemovitosti (360C prohlídka s možností orientace ve videu dle vašich představ).
| Cena: | 14 720 000 Kč |
| Poznámka: | včetně provize a právního servisu |
| Dispozice/podlahová plocha: | 2+kk/63 m² |
| Číslo zakázky: | REALITYMIX-N08896 |
Podrobné informace
- Bezbariérový byt: ano
- Dispozice bytu: 2+kk
- Číslo podlaží v domě: 6
- Počet podlaží objektu: 1
- Celková podlahová plocha: 63 m²
- Druh objektu: skeletová
- Stav objektu: novostavba
- Stáří objektu: 2023
- Vlastnictví: osobní
- Balkon: 7 m²
- Sklep: 12 m²
- Umístění objektu: klidná část obce
- Doprava: vlak, dálnice, MHD, autobus
- Voda: Voda - dálkový vodovod
- Energetická náročnost budovy: B - Velmi úsporná
- Ukazatel energetické náročnosti budovy: 84 kWh/m²
- Energetický ukazatel podle vyhlášky: č. 78/2013 Sb.
Právní rádce
-
Detail
V tomto článku shrneme nejdůležitější věci, které byste si měli promyslet, pokud se chystáte prodat svou nemovitost a chcete, abyste s kupujícím nemusel následně řešit vzniklé problémy.
Jako prodávající nesete rizika spojená nejen se samotným obchodem, ale i se stavem nemovitosti v době prodeje a pro minimalizaci rizik, je dobré se zamyslet nad uvedenými oblastmi.
-
Detail
Realitní makléř má své nezastupitelné místo v realitním obchodu. Realitním makléřem nemyslím nevzdělané jelito, které absolvovalo dvoudenní školení a ví, jak se nahraje inzerát na inzertní portál.
Realitním makléřem, který se Vám skutečně vyplatí, je zkušený profesionál, který je schopen Vám dobře poradit jak prodat za co nejvíc a s nejmenším rizikem a hlavně je Vás schopen obratně provést celým realitním obchodem.