Prodej bytu, 2+kk, 53 m²
Gutova, Praha 10, Strašnice
8 900 000 KčProdej bytu, 2+kk, 53 m²
Gutova, Praha 10, Strašnice
Prodej bytu 2+kk, 53 m2 se společnou předzahrádkou, Praha 10 - Strašnice
Bezbariérový byt se nachází v přízemí v malém bytovém domě kolaudovaném v roce 2008, kde jsou pouze 4 bytové jednotky.
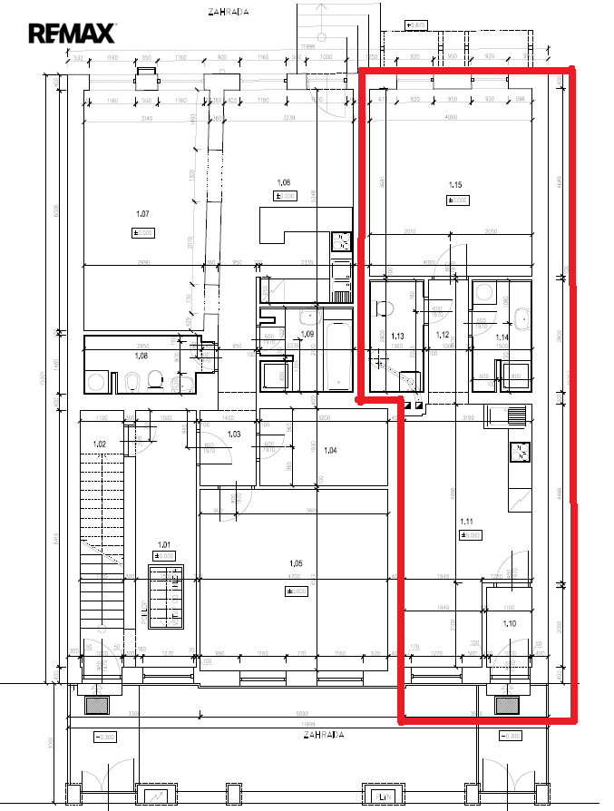
Byt obsahuje vstupní předsíň 2,5 m2, kuchyň s jídelnou 18,22 m2, předsíň 3,1 m2, pokoj 19 m2, koupelnu 4,12 m2 a samostatné WC s umyvadlem a místem na pračku 3,81 m2, výška stropu je cca 3,2 m.
Byt je vybaven kuchyňskou linkou se sklokeramickou vestavěnou deskou a skříněmi v kuchyni. Na podlahách je dlažba a koberec.
Byt má orientaci na dvě světové strany, a to do zcela klidné vnitřní zahrady na jihovýchod a směrem do předzahrádky a klidné ulice na severozápad.
Společný sklep lze využívat pro odkládání sportovních věcí.
Pokud chcete bydlet na klidném místě, a přitom v pěším dosahu s veškerou občanskou vybaveností, tak je tato nemovitost ideální právě pro Vás. V blízkosti jsou školky, školy, gymnázium a široké možnosti sportovního vyžití.
Pár kroků od domu je zastávka tramvaje a cca 7 minut pěšky je vstup do metra Strašnická.
Skvělá nabídka pro vlastní bydlení v širším centru Prahy s možností využití předzahrádky.
Byt je také ideální jako investice k následnému pronájmu. Platí se zde nízké měsíční poplatky, a to cca 2 500,-Kč včetně záloh na vodu, vytápění a elektřinu.
| Cena: | 8 900 000 Kč |
| Poznámka: | cena je včetně provize a veškerého právního servisu |
| Dispozice/podlahová plocha: | 2+kk/53 m² |
| Číslo zakázky: | REALITYMIX-433433 |
Podrobné informace
- Dispozice bytu: 2+kk
- Číslo podlaží v domě: 1
- Počet podlaží objektu: 3
- Užitná plocha: 53 m²
- Celková podlahová plocha: 53 m²
- Druh objektu: cihlová
- Stav objektu: velmi dobrý
- Vlastnictví: osobní
- Vybaveno: ano
- Umístění objektu: klidná část obce
- Elektřina: Elektro - 230 V
- Voda: Voda - dálkový vodovod
- Plyn: Plynovod
- Odpad: Kanalizace
- Energetická náročnost budovy: G - Mimořádně nehospodárná
- Energetický ukazatel podle vyhlášky: č. 264/2020 Sb.
Právní rádce
-
Detail
V tomto článku shrneme nejdůležitější věci, které byste si měli promyslet, pokud se chystáte prodat svou nemovitost a chcete, abyste s kupujícím nemusel následně řešit vzniklé problémy.
Jako prodávající nesete rizika spojená nejen se samotným obchodem, ale i se stavem nemovitosti v době prodeje a pro minimalizaci rizik, je dobré se zamyslet nad uvedenými oblastmi.
-
Detail
Realitní makléř má své nezastupitelné místo v realitním obchodu. Realitním makléřem nemyslím nevzdělané jelito, které absolvovalo dvoudenní školení a ví, jak se nahraje inzerát na inzertní portál.
Realitním makléřem, který se Vám skutečně vyplatí, je zkušený profesionál, který je schopen Vám dobře poradit jak prodat za co nejvíc a s nejmenším rizikem a hlavně je Vás schopen obratně provést celým realitním obchodem.