Hospodářské noviny
Hledat Přihlásit seMůj účet Předplatné
Přihlásit seMůj účet Předplatné
  • Home
  • Byznys
  • Zprávy
  • Názory
  • Tech
  • Reality
  • Investice
  • Podcasty
  • Hry
  • PročNe
  • Archiv
  • Další
  • Jak nastartovat sever
  • Speciály HN
  • Víkend
  • Magazín Stavba
  • Knihy HN
  • Eventy
  • Green Deal
  • Inovátoři roku
  • Top ženy
  • Nej banka / Nej pojišťovna
  • Předplatné
  • Redakce
  • Inzerce
  • Kontakty
  • Newslettery
  • Ekonom
  • Logistika
  • Právní rádce
  • Hry
  • Economia
  • BeNative
  • Nastavení účtu
  • Moje předplatné
  • Odhlásit se

Reality

  • Reality
  • Vyhledávání nemovitostí
  • Top realitní fondy
  • Magazín Stavba
Prodej bytu, 2+1, 57 m²

Prodej bytu, 2+1, 57 m²

U průhonu, Praha 7, Holešovice

9 975 000 Kč
  • RealityMIX
  • Byty
  • Prodej
  • Praha
  • Praha 7
0 z 5 (0 hodnocení)

Prodej bytu, 2+1, 57 m²

U průhonu, Praha 7, Holešovice

9 975 000 Kč
G
Mimořádně nehospodárná
Výpis
Předchozí inzerát Další inzerát
1776864906-mkniiadayc-e2-84-961
1776864923-tqhypjbxar-nz7-0609
1776864933-gbrdpdptei-nz7-0611

Prodej bytu 2+1 57 m²

Nabízím k prodeji světlý byt 2+1 o ploše 56.5 m² v jedné z nejžádanějších lokalit v Praze – Holešovice.

Byt se nachází ve 3. patře cihlového domu s výtahem a nabízí praktické dispoziční řešení s oddělenou kuchyní a dvěma samostatnými pokoji. Díky orientaci bytu je zde dostatek denního světla a příjemná atmosféra.

Součástí je také sklep (cca 3,5 m²) a podíl na společných prostorách (cca 2.5 m²), což poskytuje další úložný prostor.

Lokalita

Holešovice patří mezi nejrychleji rozvíjející se části Prahy a nabízí výbornou kombinaci městského života a klidu.

V bezprostřední blízkosti:

tramvaj a metro (Vltavská / Nádraží Holešovice)
obchody, kavárny, restaurace
parky (Stromovka, Letná)

Výborná dostupnost do centra (cca 5–10 minut).

Výhody bytu

✔ vyhledávaná lokalita Praha 7
✔ praktická dispozice 2+1
✔ vhodné k bydlení i jako investice
✔ sklep součástí
✔ dobrá dostupnost MHD
✔ klidný dům

Cena

Cena: 9 975 000 Kč

Kontakt


Přímý prodej od majitele (bez provize RK).
Realitní kanceláře prosím nevolat.
Kompletní právní servis je zahrnut v ceně.
Pro více informací nebo domluvení prohlídky mě neváhejte kontaktovat. Tato nemovitost je určena výhradně přímým zájemcům o koupi. Na inzerát můžete také reagovat přímo na webu Bezrealitky.
Cena: 9 975 000 Kč  
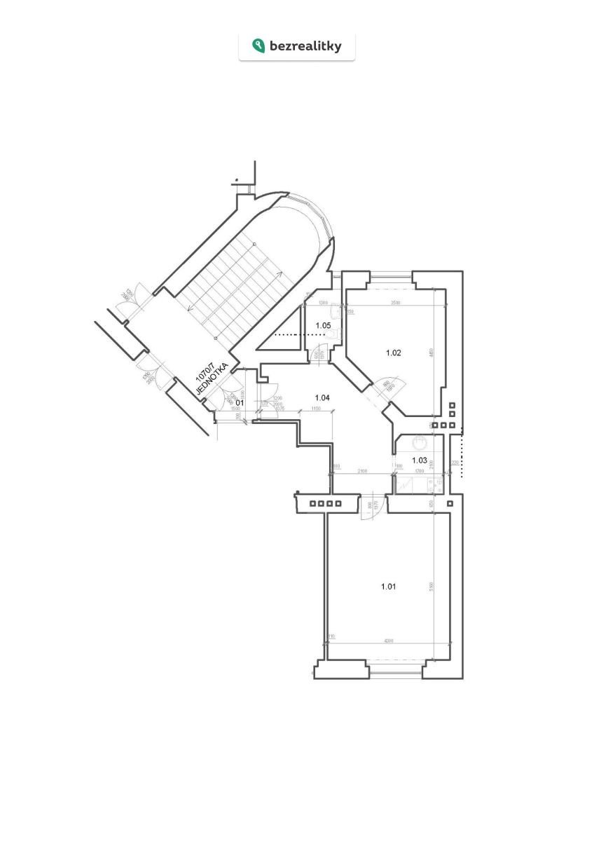
Dispozice/podlahová plocha: 2+1/57 m²
Číslo zakázky: REALITYMIX-1015497

Podrobné informace

  • Dispozice bytu: 2+1
  • Číslo podlaží v domě: 3
  • Počet podlaží objektu: 6
  • Celková podlahová plocha: 57 m²
  • Druh objektu: cihlová
  • Stav objektu: velmi dobrý
  • Vlastnictví: osobní
  • Sklep: 3 m²
  • Vybaveno: ano
  • Umístění objektu: centrum obce
  • Energetická náročnost budovy: G - Mimořádně nehospodárná

Sdílej na:

Facebook     Twitter

Tisk nabídky (pdf)

  • (A4)
  • (A4)
  • (A4)
  • (A4)
  • (A5)

Poslat odkaz:

Právní rádce

Právní rádce
  • V tomto článku shrneme nejdůležitější věci, které byste si měli promyslet, pokud se chystáte prodat svou nemovitost a chcete, abyste s kupujícím nemusel následně řešit vzniklé problémy.

    Jako prodávající nesete rizika spojená nejen se samotným obchodem, ale i se stavem nemovitosti v době prodeje a pro minimalizaci rizik, je dobré se zamyslet nad uvedenými oblastmi.

    Detail
  • Realitní makléř má své nezastupitelné místo v realitním obchodu. Realitním makléřem nemyslím nevzdělané jelito, které absolvovalo dvoudenní školení a ví, jak se nahraje inzerát na inzertní portál.

    Realitním makléřem, který se Vám skutečně vyplatí, je zkušený profesionál, který je schopen Vám dobře poradit jak prodat za co nejvíc a s nejmenším rizikem a hlavně je Vás schopen obratně provést celým realitním obchodem.

    Detail
  • Detail
Chci vědět víc
Právní rádce

Prodáváte nemovitost a potřebujete zjistit její reálnou hodnotu?

Zjistit reálnou cenu

Vývoj průměrné ceny za m2 v lokalitě Praha 7

Ceny uvedené v grafu, jsou průměrnými cenami ze sledované lokality a nezohledňují stav, stáří ani vybavení nemovitosti.
2Q 2022 136064
2Q 2022
Průměrná nabídková cena 136 064 Kč/m²

Aktuální nabídka: 175 000 Kč/m²
3Q 2022 134130
3Q 2022
Průměrná nabídková cena 134 130 Kč/m²

Aktuální nabídka: 175 000 Kč/m²
4Q 2022 132948
4Q 2022
Průměrná nabídková cena 132 948 Kč/m²

Aktuální nabídka: 175 000 Kč/m²
1Q 2023 135985
1Q 2023
Průměrná nabídková cena 135 985 Kč/m²

Aktuální nabídka: 175 000 Kč/m²
2Q 2023 130993
2Q 2023
Průměrná nabídková cena 130 993 Kč/m²

Aktuální nabídka: 175 000 Kč/m²
3Q 2023 129132
3Q 2023
Průměrná nabídková cena 129 132 Kč/m²

Aktuální nabídka: 175 000 Kč/m²
4Q 2023 134608
4Q 2023
Průměrná nabídková cena 134 608 Kč/m²

Aktuální nabídka: 175 000 Kč/m²
1Q 2024 147592
1Q 2024
Průměrná nabídková cena 147 592 Kč/m²

Aktuální nabídka: 175 000 Kč/m²
2Q 2024 156951
2Q 2024
Průměrná nabídková cena 156 951 Kč/m²

Aktuální nabídka: 175 000 Kč/m²
3Q 2024 162945
3Q 2024
Průměrná nabídková cena 162 945 Kč/m²

Aktuální nabídka: 175 000 Kč/m²
4Q 2024 162050
4Q 2024
Průměrná nabídková cena 162 050 Kč/m²

Aktuální nabídka: 175 000 Kč/m²
1Q 2025 177431
1Q 2025
Průměrná nabídková cena 177 431 Kč/m²

Aktuální nabídka: 175 000 Kč/m²
2Q 2025 179489
2Q 2025
Průměrná nabídková cena 179 489 Kč/m²

Aktuální nabídka: 175 000 Kč/m²
3Q 2025 177473
3Q 2025
Průměrná nabídková cena 177 473 Kč/m²

Aktuální nabídka: 175 000 Kč/m²
4Q 2025 175489
4Q 2025
Průměrná nabídková cena 175 489 Kč/m²

Aktuální nabídka: 175 000 Kč/m²
1Q 2026 177865
1Q 2026
Průměrná nabídková cena 177 865 Kč/m²

Aktuální nabídka: 175 000 Kč/m²

Prodáváte nemovitost a potřebujete zjistit její reálnou hodnotu?

Zjistit reálnou cenu

Mapa

* Umístění na mapě je na základě GPS informací dodaných realitní kanceláří.
* Pozice na mapě je pouze orientační.

Souhlas se zpracováním osobních údajů

Uživatel serveru Reality.hn.cz (dále jen „Server“) dostupného na internetové adrese (URL) https://realitymix.hn.cz, který provozuje společnost DALTEN media s.r.o., se sídlem Na Harfě 916/9a, Praha 9, 190 00, IČO: 271 35 306 (dále jen „Správce“) jako provozovateli tohoto Serveru uděluje svůj výslovný souhlas v souladu s ustanovením § 5 zákona č. 101/2000 Sb. O ochraně osobních údajů a o změně některých zákonů, v platném znění (dále jen „zákon o ochraně osobních údajů“), se zpracováním uživatelem poskytnutých osobních údajů a dalších dat.

Uživatel poskytuje Správci osobní údaje v rozsahu: jméno, příjmení, e-mailová adresa, telefonický kontakt a další data, a to z důvodu projeveného zájmu o nemovitost, kde prostřednictvím služby Serveru Správce osloví Uživatel inzerenta uvedeného v detailu nemovitosti - Bezrealitky s.r.o. (IČ 08063168) se zájmem o jeho služby.

Uživatel tyto osobní údaje poskytuje dobrovolně a bere na vědomí, že součástí služeb Správce, které Správce Uživateli poskytuje, je vyhledání všech Uživateli vyhovujících (dle parametrů - cena, typ nemovitosti, lokalita atd.) nemovitostí. Správce za tímto účelem provozuje aplikace Hlídací pes a newsletter. Tyto služby je možné z každého zaslaného emailu odhlásit. Souhlas se zpracováním osobních údajů Uživatel poskytuje Správci na dobu neurčitou s tím, že svůj udělený souhlas může Uživatel kdykoliv na drese správce info@realitymix.cz odvolat. Správce garantuje Uživateli i další práva uvedené v ustanovení §11 a §21 zákoba č. 101/200 Sb. Ve znění pozdějších předpisů. Více informací o zpracování údajů získáte zde (realitymix.cz/zasady-ochrany-osobnich-udaju)

Podobné nemovitosti

Prodej bytu, 2+1, 69 m² obrázek

Prodej bytu, 2+1, 69 m²

Bubenská, Praha 7, Holešovice

9 990 000 Kč
Prodej bytu, 2+1, 56 m² obrázek

Prodej bytu, 2+1, 56 m²

Jateční, Praha 7, Holešovice

9 750 000 Kč
Prodej bytu, 5+kk, 240 m² obrázek

Prodej bytu, 5+kk, 240 m²

Pplk. Sochora, Praha 7, Holešovice

Cena na vyžádání
Prodej bytu, 1+kk, 46 m² obrázek

Prodej bytu, 1+kk, 46 m²

Jateční, Praha 7, Holešovice

9 689 873 Kč

Napsat zprávu prodejci

Prodej bytu, 2+1, 57 m²

Prodej bytu, 2+1, 57 m²

U průhonu, Praha 7, Holešovice

9 975 000 Kč

Hospodářské noviny

© 1996-2026 Economia, a.s.

Hospodářské noviny (print)   ISSN 0862-9587
Hospodářské noviny (online) ISSN 2787-950X

Certifikováno
jti
Sledujte nás
Stáhněte si aplikaci HN
  • Kontakty
  • Tiráž redakce HN
  • Economia
  • Kariéra v HN
  • Ceník inzerce
  • Ochrana osobních údajů
  • Prohlášení o cookies
  • Nastavení soukromí
  • Všeobecné smluvní podmínky
  • Koupit / darovat předplatné
  • Eventy
  • Newslettery
  • RSS kanály
Autorská práva vykonává vydavatel. Bez písemného svolení vydavatele je zakázáno jakékoli užití částí nebo celku díla, zejména rozmnožování a šíření jakýmkoli způsobem, mechanickým nebo elektronickým, v českém nebo jiném jazyce. Bez souhlasu vydavatele je zakázáno též rozmnožování obsahu pro účely automatizované analýzy textů nebo dat podle ustanovení § 39c autorského zákona.