Pronájem bytu, 3+kk, 88 m²
Za Hládkovem, Praha 6, Střešovice
37 000 Kč (za měsíc)Pronájem bytu, 3+kk, 88 m²
Za Hládkovem, Praha 6, Střešovice
37 000 Kč
(za měsíc)
G
Mimořádně nehospodárná
Exkluzivní byt 3+kk s panoramatickým výhledem, výtahem a luxusním vybavením, Za Hládkovem , Střešovi
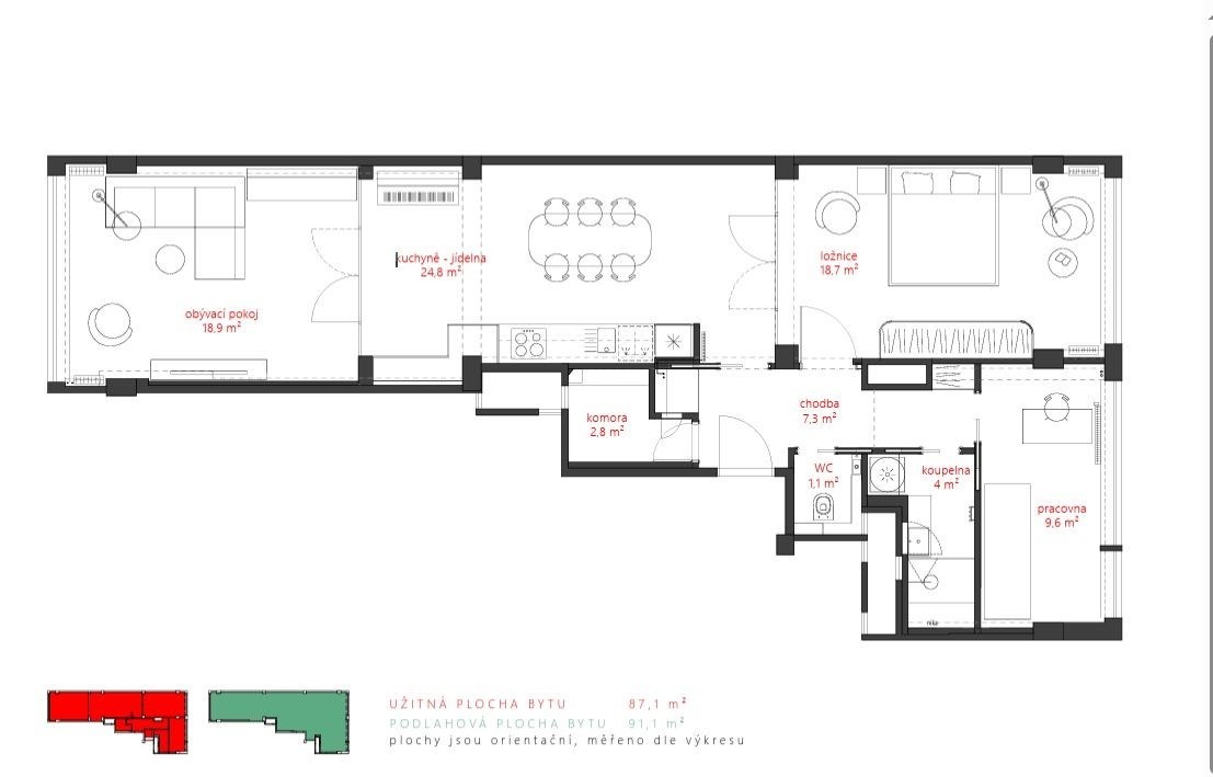
Ve 3. patře elegantního činžovního domu s výtahem, v prestižní a klidné části Prahy 6 – Břevnov, v ulici Za Hládkovem 16, nabízíme k pronájmu luxusní byt o dispozici 3+kk a celkové podlahové ploše 88 m². Byt je částečně zařízený a vybaven kvalitním a stylovým nábytkem, který kombinuje historickou hodnotu s moderním komfortem.
Srdcem bytu je prostorná kuchyně s jídelnou o výměře 24,8 m², která plynule navazuje na světlý obývací pokoj (18,9 m²) s velkoformátovým prosklením orientovaným na jihovýchod. Na opačné straně bytu, směrem na severozápad, se nachází klidná ložnice (18,7 m²) a samostatná pracovna či pokoj pro hosty (9,6 m²). V centrální části bytu je umístěna koupelna (4 m²), samostatné WC (1,1 m²), komora (2,8 m²) a prostorná vstupní chodba (7,3 m²).
Interiér bytu zdobí pečlivě restaurovaný nábytek z 30. let 20. století – jídelní stůl s osmi židlemi, komoda, prosklená skříň s příborníkem, křesla (včetně velkého „ušáku“), prádelník, kulatý konferenční stolek, hranatý stolek s mramorovou deskou, dvě dřevěná přírodní křesílka, klubový stolek s lampou Halabala i původní art deco lustr. V obývací části je nově čalouněná modrobílá sedací souprava (rozkládací pohovka a dvě křesla) a malý barový stolek. Součástí vybavení je také pianino.
Byt je vybaven dvěma klimatizačními jednotkami, vysokorychlostním internetem, centrální WiFi jednotkou pro bezdrátové ovládání topení a dvoudílnou elektrickou roletou v obývací části. Ve všech oknech jsou navíc instalovány žaluzie. Původní dřevěné parkety, vysoké stropy a prosklené interiérové dveře podtrhují atmosféru prostorného a světlého interiéru.
Byt se nachází v jedné z nejhezčích ulic Břevnova, obklopené zelení, jen pár minut pěšky od parku a koupaliště Kajetánka, Petřína či Pražského hradu. Tramvají se snadno dostanete na Malostranskou nebo Hradčanskou, nejbližší zastávky jsou Hládkov a Pohořelec.
Byt je vhodný pro náročného zájemce hledajícího reprezentativní a stylové bydlení s duší.
Srdcem bytu je prostorná kuchyně s jídelnou o výměře 24,8 m², která plynule navazuje na světlý obývací pokoj (18,9 m²) s velkoformátovým prosklením orientovaným na jihovýchod. Na opačné straně bytu, směrem na severozápad, se nachází klidná ložnice (18,7 m²) a samostatná pracovna či pokoj pro hosty (9,6 m²). V centrální části bytu je umístěna koupelna (4 m²), samostatné WC (1,1 m²), komora (2,8 m²) a prostorná vstupní chodba (7,3 m²).
Interiér bytu zdobí pečlivě restaurovaný nábytek z 30. let 20. století – jídelní stůl s osmi židlemi, komoda, prosklená skříň s příborníkem, křesla (včetně velkého „ušáku“), prádelník, kulatý konferenční stolek, hranatý stolek s mramorovou deskou, dvě dřevěná přírodní křesílka, klubový stolek s lampou Halabala i původní art deco lustr. V obývací části je nově čalouněná modrobílá sedací souprava (rozkládací pohovka a dvě křesla) a malý barový stolek. Součástí vybavení je také pianino.
Byt je vybaven dvěma klimatizačními jednotkami, vysokorychlostním internetem, centrální WiFi jednotkou pro bezdrátové ovládání topení a dvoudílnou elektrickou roletou v obývací části. Ve všech oknech jsou navíc instalovány žaluzie. Původní dřevěné parkety, vysoké stropy a prosklené interiérové dveře podtrhují atmosféru prostorného a světlého interiéru.
Byt se nachází v jedné z nejhezčích ulic Břevnova, obklopené zelení, jen pár minut pěšky od parku a koupaliště Kajetánka, Petřína či Pražského hradu. Tramvají se snadno dostanete na Malostranskou nebo Hradčanskou, nejbližší zastávky jsou Hládkov a Pohořelec.
Byt je vhodný pro náročného zájemce hledajícího reprezentativní a stylové bydlení s duší.
| Cena: | 37 000 Kč / (za měsíc) |
| Datum k nastěhování: | 01.08.2025 |
| Dispozice/podlahová plocha: | 3+kk/88 m² |
| Číslo zakázky: | REALITYMIX-973440 |
Podrobné informace
- Dispozice bytu: 3+kk
- Číslo podlaží v domě: 4
- Počet podlaží objektu: 5
- Celková podlahová plocha: 88 m²
- Druh objektu: skeletová
- Stav objektu: velmi dobrý
- Vlastnictví: osobní
- Vybaveno: ano
- Elektřina: Elektro - 230 V
- Voda: Zdroj pro celý objekt, Voda - dálkový vodovod
- Plyn: Plynovod
- Odpad: Kanalizace
- Energetická náročnost budovy: G - Mimořádně nehospodárná
- Popis vybavení: .
Mapa
* Umístění na mapě je na základě GPS informací dodaných realitní kanceláří.
* Pozice na mapě je pouze orientační.
Podobné nemovitosti
Pronájem bytu, 3+kk, 82 m²
Paťanka, Praha 6, Dejvice
34 000 Kč za měsíc
Pronájem bytu, 3+kk, 79 m²
Nad Kajetánkou, Praha 6, Břevnov
31 000 Kč za měsíc
Pronájem bytu, 3+kk, 66 m²
Bolívarova, Praha 6, Břevnov
27 000 Kč za měsíc
Pronájem bytu, 3+kk, 83 m²
Heinemannova, Praha 6, Dejvice
39 000 Kč za měsíc