Prodej bytu, 2+kk, 65 m²
Lucemburská, Praha 3, Žižkov
11 990 000 KčProdej bytu, 2+kk, 65 m²
Lucemburská, Praha 3, Žižkov
Bydlení, kde Vinohrady potkávají Žižkov. Praha 3, 5 minut od metra Flora – S vaším příběhem!x
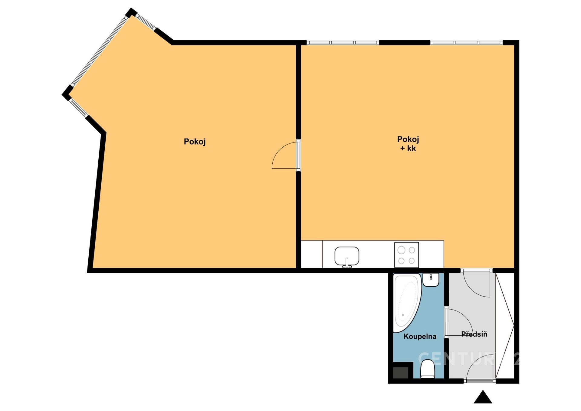
(65 m² + sklep 1,5 m²) v činžovním cihlovém domě z roku cca 1928, který se nachází v klidné ulici na rozhraní Vinohrad a katastrálního území Žižkova – pouhých 5 minut chůze od stanice metra A – Flora.
Byt je situován v 1. patře domu s výtahem.
V domě proběhly průběžné rekonstrukce: v roce 2021 částečná oprava střechy a zavedení optického internetu, v roce 2023 instalace nových digitálních vodoměrů. Dřevěná špaletová okna byla vyměněna zhruba před 10 lety.
Přednosti bytu:
V roce 2006 prošel byt kompletní rekonstrukcí (rozvody vody, elektřiny aj.). Topení a ohřev vody zajišťuje plynový kotel v bytě.
Podlahy tvoří dřevěné parkety a keramická dlažba.
Kuchyňský kout je vybaven spotřebiči: plynový sporák, elektrická trouba, digestoř, lednice s mrazáčkem.
Prostorný obývací pokoj nabízí mimořádné množství denního světla díky rohové poloze v domě a orientaci na jihozápad.
Lokalita:
Vinohrady nabízejí příjemnou atmosféru s množstvím kaváren a restaurací (česká, francouzská, italská, mexická, japonská aj.).
V docházkové vzdálenosti se nachází Riegrovy sady, Mahlerovy sady a Žižkovská věž.
V okolí je kompletní občanská vybavenost – školy, školky, lékaři, banky, obchody.
OC Flora je jen pár minut pěšky, na Jiřím z Poděbrad se pravidelně konají oblíbené farmářské trhy a kulturní akce.
Do centra Prahy se metrem dostanete za 6–7 minut. Jedná se o velmi žádanou lokalitu pro bydlení.
Náklady na bydlení:
Fond oprav 2025: 1 868 Kč
Služby pro jednu osobu: 889 Kč
Celkem: 2 757 Kč / měsíc
Nákup je možné financovat hypotečním úvěrem, se kterým Vám rádi pomůžeme.
Díky výjimečné poloze u širšího centra, blízkosti parků, škol i obchodů představuje byt ideální volbu jak pro vlastní bydlení, tak jako investici.
Pro více informací volejte makléřku:
+420 725 293 228
| Cena: | 11 990 000 Kč |
| Datum k nastěhování: | 01.01.2026 |
| Dispozice/podlahová plocha: | 2+kk/65 m² |
| Číslo zakázky: | REALITYMIX-967286 |
Podrobné informace
- Dispozice bytu: 2+kk
- Číslo podlaží v domě: 2
- Počet podlaží objektu: 7
- Celková podlahová plocha: 65 m²
- Druh objektu: cihlová
- Stav objektu: dobrý
- Vlastnictví: osobní
- Sklep: 2 m²
- Doprava: MHD
- Elektřina: Elektro - 230 V
- Energetická náročnost budovy: E - Nehospodárná
- Energetický ukazatel podle vyhlášky: č. 78/2013 Sb.
Právní rádce
-
Detail
V tomto článku shrneme nejdůležitější věci, které byste si měli promyslet, pokud se chystáte prodat svou nemovitost a chcete, abyste s kupujícím nemusel následně řešit vzniklé problémy.
Jako prodávající nesete rizika spojená nejen se samotným obchodem, ale i se stavem nemovitosti v době prodeje a pro minimalizaci rizik, je dobré se zamyslet nad uvedenými oblastmi.
-
Detail
Realitní makléř má své nezastupitelné místo v realitním obchodu. Realitním makléřem nemyslím nevzdělané jelito, které absolvovalo dvoudenní školení a ví, jak se nahraje inzerát na inzertní portál.
Realitním makléřem, který se Vám skutečně vyplatí, je zkušený profesionál, který je schopen Vám dobře poradit jak prodat za co nejvíc a s nejmenším rizikem a hlavně je Vás schopen obratně provést celým realitním obchodem.