Prodej - dům/vila, 110 m²
Prachovice, Chrudim
5 690 000 KčProdej - dům/vila, 110 m²
Prachovice, Chrudim
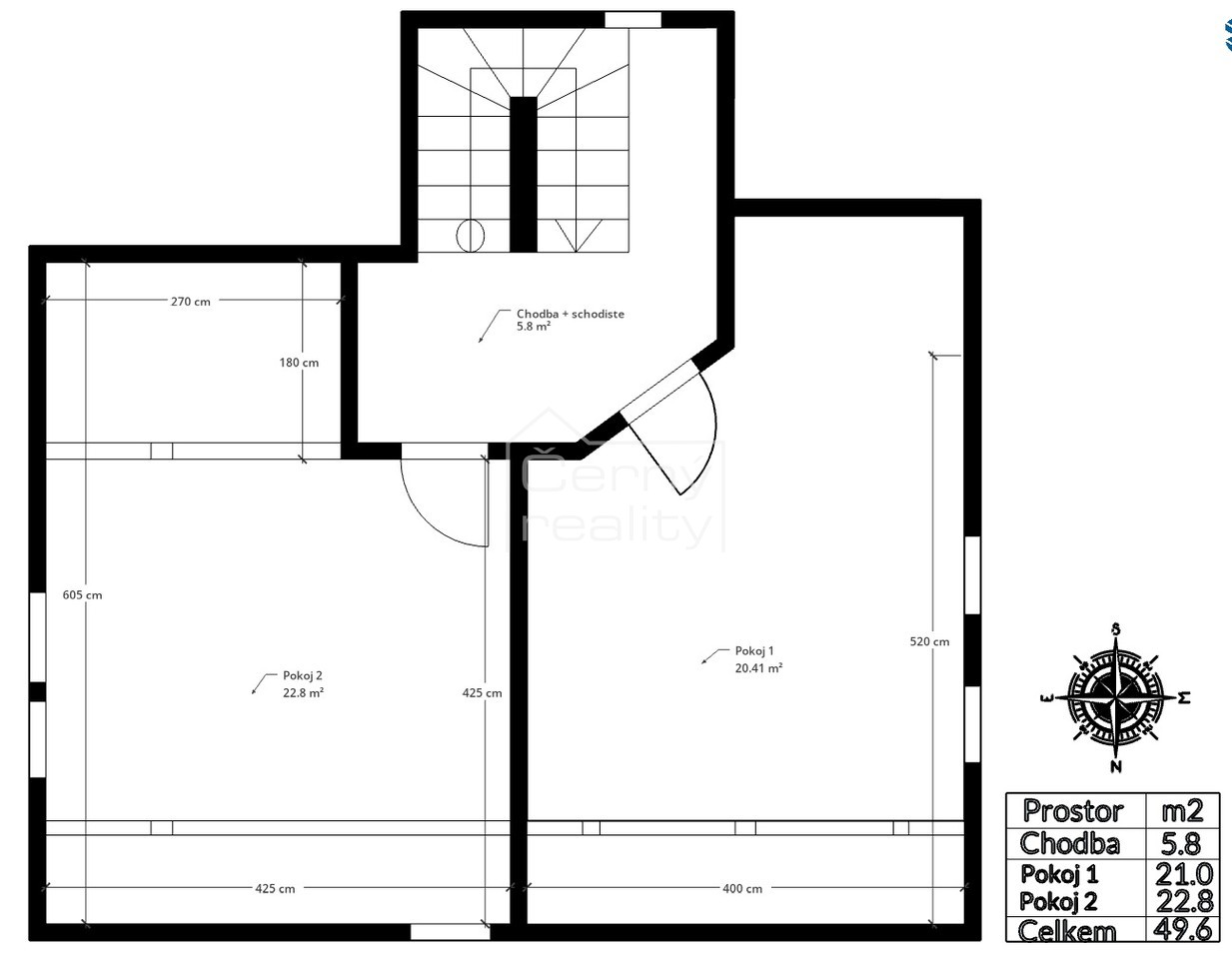
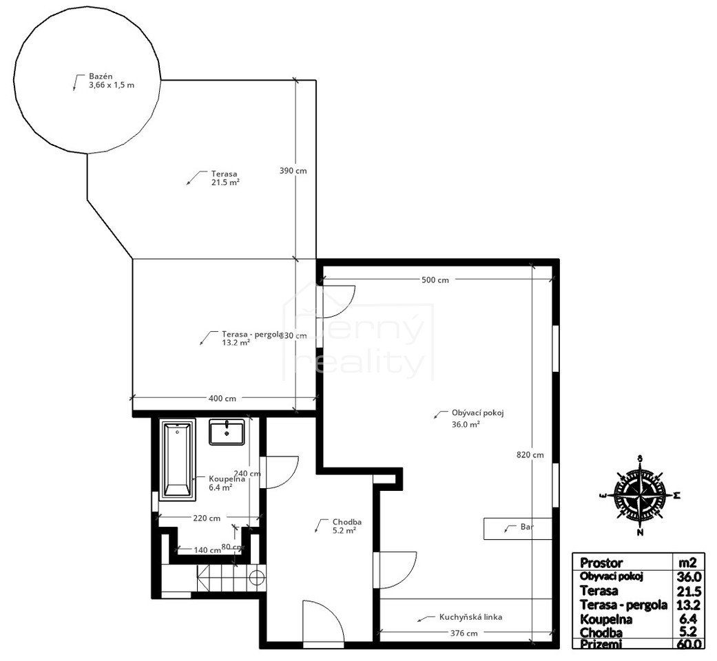
Prodej RD Prachovice 3+1 (110m2) + pergola, terasa, bazén, park.stání, v Prachovicích, CP 840 m2
| Cena: | 5 690 000 Kč |
| Datum k nastěhování: | 01.06.2025 |
| Číslo zakázky: | REALITYMIX-693 |
Podrobné informace
- Poloha objektu: samostatný
- Druh objektu: cihlová
- Stav objektu: velmi dobrý
- Počet podlaží objektu: 2
- Typ domu: patrový
- Zastavěná plocha: 246 m²
- Plocha parcely: 840 m²
- Zahrada: 594 m²
- Užitná plocha: 110 m²
- Terasa: 35 m²
- Ostatní: Bezbarierový přístup, Bazén
- Umístění objektu: klidná část obce
- Doprava: autobus
- Občanská vybavenost: Škola, Školka, Zdravotnická zařízení, Pošta, Kompletní síť obchodů a služeb
- Elektřina: Elektro - 230 V, Elektro - 400 V
- Voda: Zdroj pro celý objekt, Voda - dálkový vodovod, Voda - rozvod studené a teplé vody
- Topení: Lokální - elektrické
- Odpad: Kanalizace
- Energetická náročnost budovy: G - Mimořádně nehospodárná
Právní rádce
-
Detail
V tomto článku shrneme nejdůležitější věci, které byste si měli promyslet, pokud se chystáte prodat svou nemovitost a chcete, abyste s kupujícím nemusel následně řešit vzniklé problémy.
Jako prodávající nesete rizika spojená nejen se samotným obchodem, ale i se stavem nemovitosti v době prodeje a pro minimalizaci rizik, je dobré se zamyslet nad uvedenými oblastmi.
-
Detail
Realitní makléř má své nezastupitelné místo v realitním obchodu. Realitním makléřem nemyslím nevzdělané jelito, které absolvovalo dvoudenní školení a ví, jak se nahraje inzerát na inzertní portál.
Realitním makléřem, který se Vám skutečně vyplatí, je zkušený profesionál, který je schopen Vám dobře poradit jak prodat za co nejvíc a s nejmenším rizikem a hlavně je Vás schopen obratně provést celým realitním obchodem.