Prodej - dům/vila, 95 m²
U Lipového dvora, Prachatice II, Prachatice
7 910 000 KčProdej - dům/vila, 95 m²
U Lipového dvora, Prachatice II, Prachatice
Prodej domu na klíč se zahradou, park. stáním a terasou v Prachaticích
Představte si prostorný domov, kde se snoubí funkčnost s estetikou a každý detail je navržen s ohledem na váš komfort.
ARCHITEKTURA A DISPOZICE
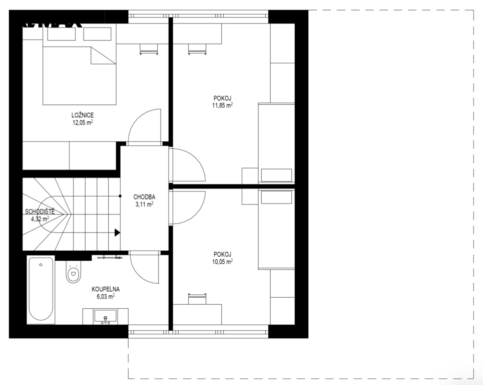
Domy ve spodní části projektu s plochou 95,08 m² a dispozicí 4+kk nabízí vzdušné a harmonické bydlení. Velká okna propojují interiér s přírodou a vpouštějí dovnitř spoustu denního světla. Při vstupu do domu vás přivítá prostorné zádveří, technická místnost a WC. Centrální částí domu je otevřený obývací prostor, propojený s kuchyňským koutem a jídelnou. Dům nabízí přímý vstup na krytou vydlážděnou terasu s nádherným výhledem. Horní patro je oázou klidu a soukromí. Tři neprůchozí pokoje a hlavní koupelna jsou navrženy tak, aby vyhovovaly všem potřebám klientů.
TECHNOLOGIE
Tento mimořádně úsporný dům s energetickou náročností třídy A, vám umožní žít efektivně s nízkými náklady. Vytápění je zajištěno tepelným čerpadlem vzduch/voda, které je spolehlivě doplněno podlahovým topením v přízemí a radiátory v horním patře. Možnost instalace fotovoltaické elektrárny, která vám umožní vyrábět vlastní energii.
INTERIÉR
Interiér domu je promyšlený do posledního detailu. Kvalitní laminátové podlahy, velkoformátová dlažba, moderní dveře. Dubové schodiště se zábradlím propojuje obě patra s elegancí a lehkostí. Součástí vybavení je moderní kuchyňská linka bez spotřebičů, zařízená koupelna – snížená vana, umyvadlo se skříňkou, kulaté podsvícené zrcadlo a WC, zabudované kolejnice na záclony a závěsy. Budoucí majitelé si mohou vybrat ze standardů developera a přizpůsobit si interiér dle svých představ.
EXTERIÉR
Exteriér domu vytváří harmonický dojem, který vás okouzlí svou pečlivě promyšlenou souhrou detailů - předzahrádka ozdobená okrasnou zelení, solitérním stromem, kameny i osvětlením se soumrakovým systémem, dále obložená zeď kameny s dominantní brankou oddělující přední část pozemku od zahrady. Parkovací stání je kryté a vybavené třífázovou zásuvkou. Část pozemku za domem je rovná, zatímco dále se pozemek pozvolna svažuje. Svařovaný antracitový plot na pozemku poskytne nejen soukromí, ale i bezpečí.
LOKALITA
Lokalita projektu vám nabídne něco, co je dnes vzácné – klid a pohodu, přitom jen pár minut od městského života s veškerou občanskou vybaveností na dosah. Tady budete mít prostor pro každodenní radosti, ať už jsou to procházky se psem, chvilky klidu na zahradě nebo víkendové grilování s přáteli.
Vybavení domu se může lišit, prezentujeme vzorový dům.
Dům je připraven k nastěhování. Tyto domy nejsou jen místem k bydlení – je to prostor, kde budete vytvářet své nejkrásnější vzpomínky. Přijďte si ho zažít na vlastní kůži a objevte kouzlo bydlení U Lipového dvora. Prodávající si vyhrazuje právo vybrat kupujícího na základě jím zvolených kritérií.
| Cena: | 7 910 000 Kč |
| Poznámka: | DŮM NA KLÍČ - v ceně zahrnuto zastřešené parkovací stání, dokončený interiér s kuchyňskou linkou, exteriér s okrasnou předzahrádkou a terasa |
| Datum k nastěhování: | 01.04.2026 |
| Číslo zakázky: | REALITYMIX-434800 |
Podrobné informace
- Poloha objektu: samostatný
- Druh objektu: dřevěná
- Stav objektu: novostavba
- Počet podlaží objektu: 2
- Typ domu: patrový
- Zastavěná plocha: 66 m²
- Plocha parcely: 261 m²
- Užitná plocha: 95 m²
- Umístění objektu: okraj obce
- Doprava: vlak, silnice, autobus
- Komunikace: betonová
- Elektřina: Elektro - 230 V
- Voda: Voda - dálkový vodovod
- Odpad: Kanalizace
- Energetická náročnost budovy: A - Mimořádně úsporná
- Energetický ukazatel podle vyhlášky: č. 264/2020 Sb.
Právní rádce
-
Detail
V tomto článku shrneme nejdůležitější věci, které byste si měli promyslet, pokud se chystáte prodat svou nemovitost a chcete, abyste s kupujícím nemusel následně řešit vzniklé problémy.
Jako prodávající nesete rizika spojená nejen se samotným obchodem, ale i se stavem nemovitosti v době prodeje a pro minimalizaci rizik, je dobré se zamyslet nad uvedenými oblastmi.
-
Detail
Realitní makléř má své nezastupitelné místo v realitním obchodu. Realitním makléřem nemyslím nevzdělané jelito, které absolvovalo dvoudenní školení a ví, jak se nahraje inzerát na inzertní portál.
Realitním makléřem, který se Vám skutečně vyplatí, je zkušený profesionál, který je schopen Vám dobře poradit jak prodat za co nejvíc a s nejmenším rizikem a hlavně je Vás schopen obratně provést celým realitním obchodem.