Pronájem - skladovací prostor, 2 513 m²
Hřbitovní, Plzeň 4, Plzeň, Plzeň-město
Cena na vyžádáníPronájem - skladovací prostor, 2 513 m²
Hřbitovní, Plzeň 4, Plzeň, Plzeň-město
Cena na vyžádání
D
Nevyhovující
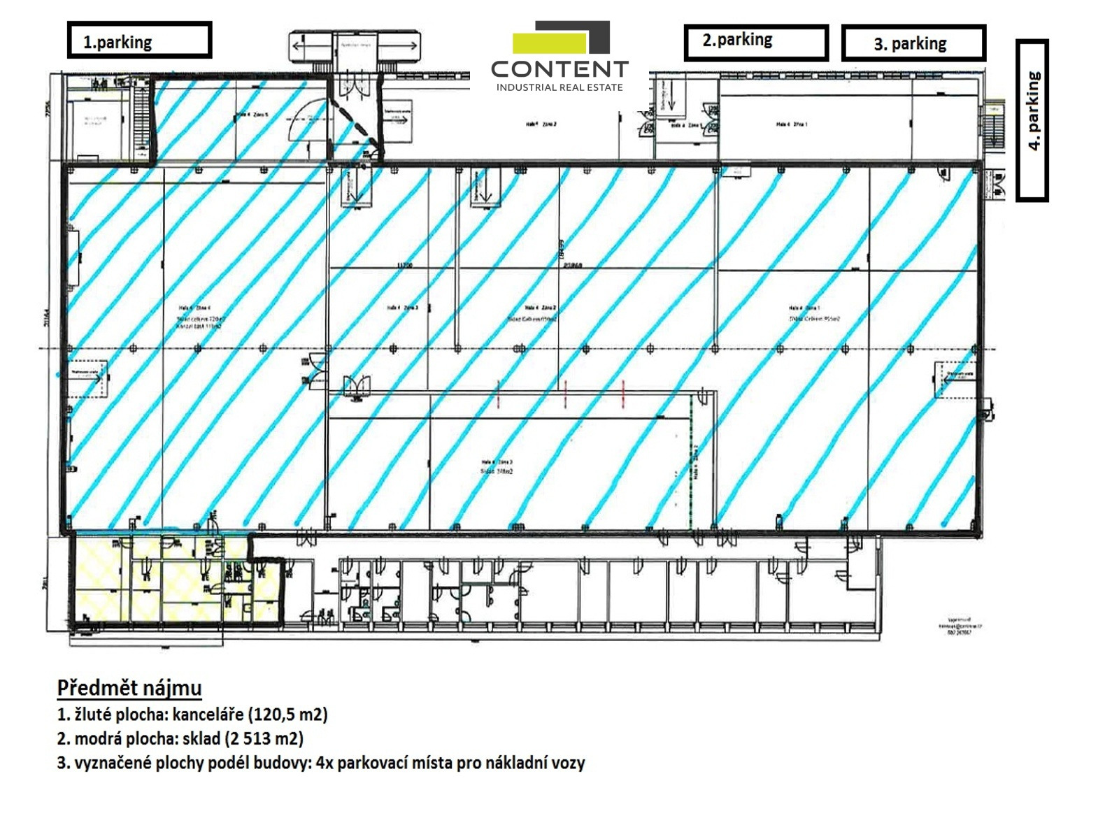
Pronájem skladu nebo výrobních prostor 2513 m², Plzeň - Doubravka
Pronájem skladu, výrobních prostor 2513 m² Plzeň - Doubravka.
V zastoupení majitele a bez provize nabízíme industriální prostory vhodné pro sklad nebo výrobu o velikosti 2513 m², umístěné v průmyslovém areálu, nedaleko dálnice D5, EXIT 67.
- k dispozici od 12/2025 (budova 4),
- nosnost podlahy 5 t/m²,
- výška stropu 5 m,
- vjezdy v úrovni vozovky, vstup z rampy,
- kancelářské a soc. zázemí celkem až 378 m²,
- parkování i manipulace i pro nákladní vozy,
- zastávka MHD, vlakové nádraží v blízkosti,
Cena k jednání: nájemné sklady: 110 Kč/m²/měsíc, nájemné kanceláře: 250 Kč/m²/měsíc + poplatky za údržbu areálu: 19 Kč/m², spotřeba energií dle vlastní spotřeby.
Pro více informací nás kontaktujte, rádi Vám zajistíme prohlídku nemovitosti.
V zastoupení majitele a bez provize nabízíme industriální prostory vhodné pro sklad nebo výrobu o velikosti 2513 m², umístěné v průmyslovém areálu, nedaleko dálnice D5, EXIT 67.
- k dispozici od 12/2025 (budova 4),
- nosnost podlahy 5 t/m²,
- výška stropu 5 m,
- vjezdy v úrovni vozovky, vstup z rampy,
- kancelářské a soc. zázemí celkem až 378 m²,
- parkování i manipulace i pro nákladní vozy,
- zastávka MHD, vlakové nádraží v blízkosti,
Cena k jednání: nájemné sklady: 110 Kč/m²/měsíc, nájemné kanceláře: 250 Kč/m²/měsíc + poplatky za údržbu areálu: 19 Kč/m², spotřeba energií dle vlastní spotřeby.
Pro více informací nás kontaktujte, rádi Vám zajistíme prohlídku nemovitosti.
| Cena: | Cena na vyžádání |
| Poznámka: | Info o ceně v RK |
| Číslo zakázky: | REALITYMIX-6605 |
Podrobné informace
- Celková plocha: 2513 m²
- Druh objektu: skeletová
- Stav objektu: velmi dobrý
- Druh prostor: Skladovací
- Umístění objektu: rušná část obce
- Energetická náročnost budovy: D - Nevyhovující
Mapa
* Umístění na mapě je na základě GPS informací dodaných realitní kanceláří.
* Pozice na mapě je pouze orientační.
Podobné nemovitosti
Pronájem - kanceláře, 15 m²
Slovanská alej, Plzeň 2-Slovany, Plzeň, Plzeň-město
1 940 Kč za měsíc
Pronájem - kanceláře, 35 m²
Skladová, Plzeň 2-Slovany, Plzeň, Plzeň-město
5 000 Kč za měsíc
Pronájem - obchodní prostor, 55 m²
Tylova, Plzeň 3, Plzeň, Plzeň-město
10 500 Kč za měsíc
Pronájem - kanceláře, 1 000 m²
U Nové Hospody, Plzeň 3, Plzeň, Plzeň-město
8,50 € za m2/měsíc