Pronájem - skladovací prostor, 1 100 m²
Jateční, Plzeň 4, Plzeň, Plzeň-město
Cena na vyžádáníPronájem - skladovací prostor, 1 100 m²
Jateční, Plzeň 4, Plzeň, Plzeň-město
Cena na vyžádání
B
Úsporná
Pronájem novostavby skladu, výrobních prostor 1.100 m², Plzeň 4
Pronájem skladu, výrobních prostor 1100 m² Plzeň 4- Jateční ulice.
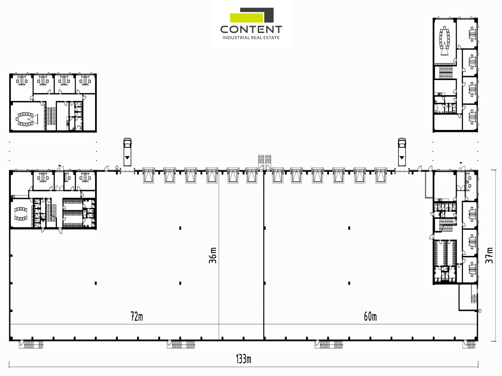
V zastoupení majitele a bez provize nabízíme skladové, výrobní nebo obchodní prostory o celkové výměře 4870 m² v nově vznikajícím areálu Nová Jateční vedle plně obsazeného retail parku Intercora. Areál se nachází vedle frekventované ulice Jateční a zároveň na budoucím východním obchvatu Plzně, což zajišťuje vynikající dopravní dostupnost i obchodní exponovanost.
- 4870 m² dostupných (k dispozici 2Q/2027 – hala B), stavební povolení vydáno
- lze dělit od cca 1100 m²
- výška prostoru 10 m
- kanceláře a sociální zázemí dle požadavků nájemce
- parkovací místa přímo před jednotkou
- bezprašné podlahy s minimální nosností 5 t/m²
- přímý vjezd z úrovně terénu
- hydraulické rampy
- možnost dispozičních úprav podle potřeb klienta
- MHD v docházkové vzdálenosti, v areálu plánované nabíjecí stanice
- příjezd a parkování TIR bezproblémové, manipulační a parkovací plochy
- BREAM Excellent
- možnost instalace FVE
- v areálu jsou k dispozici další skladové a obchodní jednotky o velikosti od 570 m² až po 4870 m²
Cena za pronájem na dotaz.
V případě zájmu nás kontaktujte, rádi zodpovíme Vaše dotazy.
Fotografie jsou ilustrační.
V zastoupení majitele a bez provize nabízíme skladové, výrobní nebo obchodní prostory o celkové výměře 4870 m² v nově vznikajícím areálu Nová Jateční vedle plně obsazeného retail parku Intercora. Areál se nachází vedle frekventované ulice Jateční a zároveň na budoucím východním obchvatu Plzně, což zajišťuje vynikající dopravní dostupnost i obchodní exponovanost.
- 4870 m² dostupných (k dispozici 2Q/2027 – hala B), stavební povolení vydáno
- lze dělit od cca 1100 m²
- výška prostoru 10 m
- kanceláře a sociální zázemí dle požadavků nájemce
- parkovací místa přímo před jednotkou
- bezprašné podlahy s minimální nosností 5 t/m²
- přímý vjezd z úrovně terénu
- hydraulické rampy
- možnost dispozičních úprav podle potřeb klienta
- MHD v docházkové vzdálenosti, v areálu plánované nabíjecí stanice
- příjezd a parkování TIR bezproblémové, manipulační a parkovací plochy
- BREAM Excellent
- možnost instalace FVE
- v areálu jsou k dispozici další skladové a obchodní jednotky o velikosti od 570 m² až po 4870 m²
Cena za pronájem na dotaz.
V případě zájmu nás kontaktujte, rádi zodpovíme Vaše dotazy.
Fotografie jsou ilustrační.
| Cena: | Cena na vyžádání |
| Poznámka: | Info o ceně v RK |
| Číslo zakázky: | REALITYMIX-6814 |
Podrobné informace
- Celková plocha: 1100 m²
- Druh objektu: skeletová
- Stav objektu: novostavba
- Druh prostor: Skladovací
- Umístění objektu: rušná část obce
- Energetická náročnost budovy: B - Úsporná
Mapa
* Umístění na mapě je na základě GPS informací dodaných realitní kanceláří.
* Pozice na mapě je pouze orientační.
Podobné nemovitosti
Pronájem - kanceláře, 15 m²
Slovanská alej, Plzeň 2-Slovany, Plzeň, Plzeň-město
1 940 Kč za měsíc
Pronájem - kanceláře, 35 m²
Skladová, Plzeň 2-Slovany, Plzeň, Plzeň-město
5 000 Kč za měsíc
Pronájem - obchodní prostor, 55 m²
Tylova, Plzeň 3, Plzeň, Plzeň-město
10 500 Kč za měsíc
Pronájem - kanceláře, 1 000 m²
U Nové Hospody, Plzeň 3, Plzeň, Plzeň-město
8,50 € za m2/měsíc