Prodej bytu, 4+kk, 186 m²
Kocínova, Budějovické Předměstí, Písek
18 982 000 KčProdej bytu, 4+kk, 186 m²
Kocínova, Budějovické Předměstí, Písek
Prodej 4+kk 181 m² + terasa 15 m² + parkování
Projekt nabízí komorní rezidenční bydlení s výtahem, promyšlenými a vzdušnými dispozicemi (2+kk – 4+kk) a dostatkem úložných prostor. Každý byt je navržen v luxusním standardu, s důrazem na kvalitu materiálů, funkčnost i estetiku. Samozřejmostí jsou velkorysé sklepy, praktické úložné prostory přímo v bytě a společná kolárna.
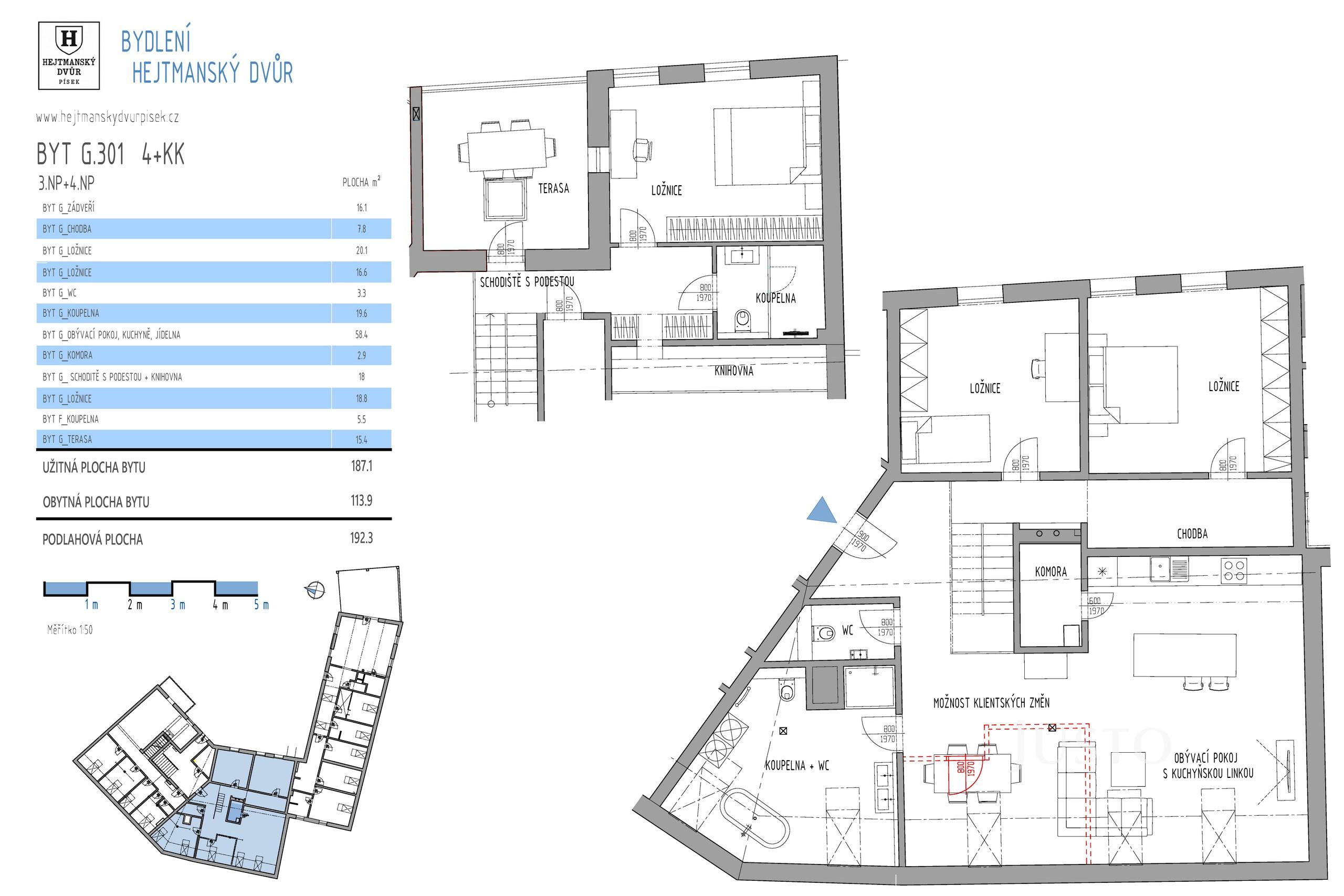
Byt číslo G 301, o dispozici 4+kk je mezonetový byt na 3. a 4. nadzemním podlaží. Tento byt je zcela výjimečný, v přízemí bytu je obývací pokoj s kuchyní, dvě samostatné ložnice, , koupelna s toaletou, samostatná toaleta a komora. V mezonetu je pak další ložnice s vlastní koupelnou a velkorysá terasa.
Plochy bytu:
Podlahová plocha bytu (plocha bytu včetně vnitřních příček, dle vyhlášky č. 366/2013, §2 a §3) je 186 m².
Vnitřní plocha bytu (bez příček, bez balkonu a sklepu) je 181,5 m².
Sklep o výměře 7 m².
Terasa o výměře 15 m²
Koupelna:
Kamenické rohy – bez lišt.
Velkoformátové dlaždice 60×120 cm.
Přesné spáry.
Top zařizovací předměty.
Promyšlené rozvržení a doplňky.
Vybrat si můžete ze dvou nadčasových barevných provedení.
Dveře a podlahy:
Podlahové vytápění, vinylová krytina.
Tři barevná provedení podlah na výběr.
Interiérové dveře s výškou 210 cm ve dvou barevných variantách.
Chytrá domácnost LOXONE:
Ovládání dveří skrze tablet v bytu.
Okamžitá kontrola spotřeby energií za byt.
Ovládání teploty v každé místnosti.
Ovládání předokenních žaluzií.
Ovládání – nabíjení elektromobilu na Wallboxu.
Součástí projektu jsou zastřešená parkovací stání v uzavřeném dvoře, který bude zabezpečen dálkově ovládanými vraty. Ke každému parkovacímu místu je připravena nabíječka pro elektromobil. O komfort a moderní způsob bydlení se stará inteligentní domácnost Loxone, připravenost na klimatizaci a efektivní technické řešení domu – vytápění plynovým kotlem a fotovoltaická elektrárna na střeše, která zajišťuje elektřinu pro společné prostory.
Hejtmanský dvůr představuje harmonii klidu jižních Čech a pohodlí městského života. Elegantní architektura, uzavřený dvůr se zelení a vysoký standard provedení vytvářejí ideální domov pro ty, kteří hledají výjimečné bydlení bez kompromisů – s veškerými službami, kulturou i přírodou na dosah.
Developer realizuje projekt výhradně z vlastních finančních prostředků, takže financování z Vaší strany je velmi jednoduché a bezpečné – na počátku hradíte pouze 10 % z kupní ceny, navíc uložených do advokátní úschovy, přičemž zbývající část kupní ceny se doplácí až po kolaudaci a podpisu kupní smlouvy, což Vám poskytuje dostatečný časový prostor k zajištění financování koupě.
Energetická náročnost budovy je aktuálně uváděna ve třídě D dle projektové dokumentace. Průkaz energetické náročnosti je v současné době přepracováván, neboť původní výpočet nezohledňuje inteligentní řízení domu a bytů systémem Loxone (samostatná regulace teploty v jednotlivých místnostech, meteostanice) ani fotovoltaickou elektrárnu o výkonu cca 10–17 kWp určenou pro denní dohřev teplé vody pro byty.
| Cena: | 18 982 000 Kč |
| Poznámka: | parkovací stání 336 000,-Kč |
| Datum k nastěhování: | 01.07.2027 |
| Dispozice/podlahová plocha: | 4+kk/186 m² |
| Číslo zakázky: | REALITYMIX-J12404 |
Podrobné informace
- Dispozice bytu: 4+kk
- Číslo podlaží v domě: 3
- Počet podlaží objektu: 4
- Užitná plocha: 181 m²
- Celková podlahová plocha: 186 m²
- Druh objektu: cihlová
- Stav objektu: ve výstavbě (hrubá stavba)
- Vlastnictví: osobní
- Sklep: 7 m²
- Terasa: 15 m²
- Umístění objektu: centrum obce
- Topení: Ústřední - plynové
- Energetická náročnost budovy: D - Méně úsporná
- Ukazatel energetické náročnosti budovy: 117.3 kWh/m²
- Energetický ukazatel podle vyhlášky: č. 264/2020 Sb.
Právní rádce
-
Detail
V tomto článku shrneme nejdůležitější věci, které byste si měli promyslet, pokud se chystáte prodat svou nemovitost a chcete, abyste s kupujícím nemusel následně řešit vzniklé problémy.
Jako prodávající nesete rizika spojená nejen se samotným obchodem, ale i se stavem nemovitosti v době prodeje a pro minimalizaci rizik, je dobré se zamyslet nad uvedenými oblastmi.
-
Detail
Realitní makléř má své nezastupitelné místo v realitním obchodu. Realitním makléřem nemyslím nevzdělané jelito, které absolvovalo dvoudenní školení a ví, jak se nahraje inzerát na inzertní portál.
Realitním makléřem, který se Vám skutečně vyplatí, je zkušený profesionál, který je schopen Vám dobře poradit jak prodat za co nejvíc a s nejmenším rizikem a hlavně je Vás schopen obratně provést celým realitním obchodem.