Prodej - dům/vila, 83 m²
Pavlíkov, Rakovník
9 900 000 KčProdej - dům/vila, 83 m²
Pavlíkov, Rakovník
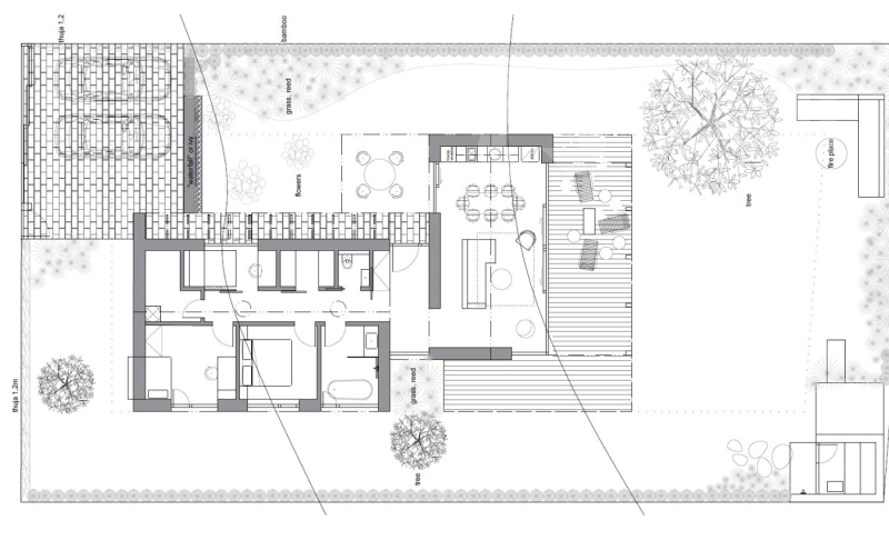
RD 3+kk+pracovna, 84 m2, pozemek 600 m2, Pavlíkov
K domu náleží terasa, okrasná zahrada s automatickou závlahou napojená na retenční nádrž a vlastní studnu. K dispozici jsou 2 parkovací stání na pozemku a dobíjecí stanice pro elektromobil. Nemovitost je z inženýrských sítí napojena na obecní vodovod, kanalizaci a elektřinu.
Dům je ihned k dispozici. Veškerá občanská vybavenost v Pavlíkově nebo v Rakovníku.
Možné financovat pomocí hypotečního úvěru.
| Cena: | 9 900 000 Kč |
| Poznámka: | vč. provize a právního servisu |
| Datum k nastěhování: | 31.10.2025 |
| Číslo zakázky: | REALITYMIX-231826 |
Podrobné informace
- Poloha objektu: samostatný
- Druh objektu: cihlová
- Stav objektu: novostavba
- Počet podlaží objektu: 1
- Typ domu: přízemní
- Zastavěná plocha: 119 m²
- Plocha parcely: 600 m²
- Užitná plocha: 83 m²
- Energetická náročnost budovy: B - Úsporná
Právní rádce
-
Detail
V tomto článku shrneme nejdůležitější věci, které byste si měli promyslet, pokud se chystáte prodat svou nemovitost a chcete, abyste s kupujícím nemusel následně řešit vzniklé problémy.
Jako prodávající nesete rizika spojená nejen se samotným obchodem, ale i se stavem nemovitosti v době prodeje a pro minimalizaci rizik, je dobré se zamyslet nad uvedenými oblastmi.
-
Detail
Realitní makléř má své nezastupitelné místo v realitním obchodu. Realitním makléřem nemyslím nevzdělané jelito, které absolvovalo dvoudenní školení a ví, jak se nahraje inzerát na inzertní portál.
Realitním makléřem, který se Vám skutečně vyplatí, je zkušený profesionál, který je schopen Vám dobře poradit jak prodat za co nejvíc a s nejmenším rizikem a hlavně je Vás schopen obratně provést celým realitním obchodem.