Pronájem - kanceláře, 200 m²
Místecká, Paskov, Frýdek-Místek
20 000 Kč (za měsíc)Pronájem - kanceláře, 200 m²
Místecká, Paskov, Frýdek-Místek
20 000 Kč
(za měsíc)
D
Méně úsporná
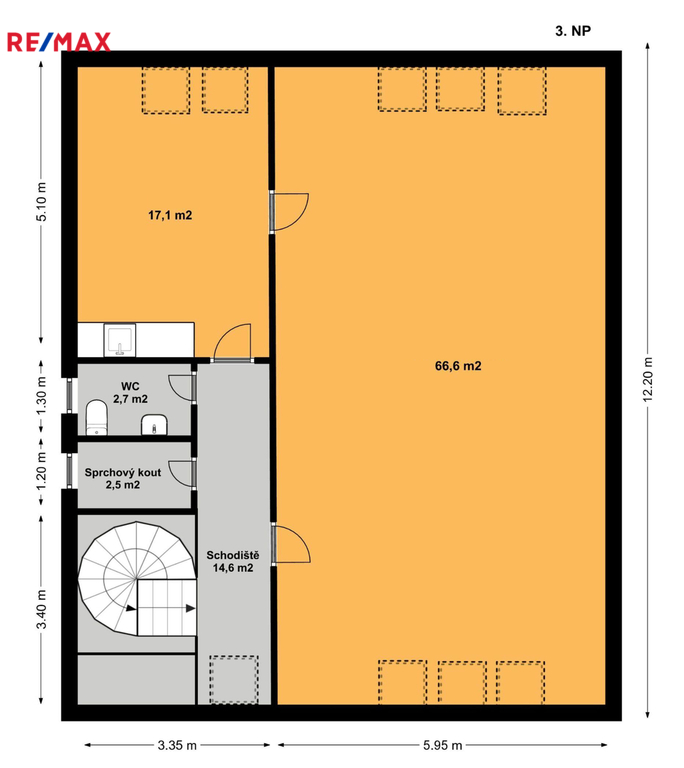
Pronájem kancelářských prostor, 200 m2, Paskov
Nabízíme k pronájmu prostorné kancelářské prostory o celkové výměře 200 m², které se nacházejí ve dvou nadzemních podlažích komerční budovy na ulici Místecká v Paskově. Budova se nachází v atraktivní a strategicky výhodné lokalitě s výbornou dopravní dostupností – v blízkosti dálnice D56, která zajišťuje rychlé spojení do Ostravy, Frýdku-Místku i dalších okolních měst.
Prostory jsou vhodné pro zřízení kanceláří, sídla firmy nebo administrativního zázemí společnosti. Nabízejí dostatek prostoru pro pohodlné a funkční pracovní prostředí.
Požadované měsíční nájemné činí 20 000 Kč + DPH. Při podpisu nájemní smlouvy se skládá kauce ve výši dvou měsíčních nájmů. Elektřina bude nájemci účtována dvakrát ročně dle skutečné spotřeby.
Pokud hledáte reprezentativní kancelářské prostory na dobře dostupném místě v Paskově, neváhejte nás kontaktovat pro více informací nebo domluvení osobní prohlídky.
Prostory jsou vhodné pro zřízení kanceláří, sídla firmy nebo administrativního zázemí společnosti. Nabízejí dostatek prostoru pro pohodlné a funkční pracovní prostředí.
Požadované měsíční nájemné činí 20 000 Kč + DPH. Při podpisu nájemní smlouvy se skládá kauce ve výši dvou měsíčních nájmů. Elektřina bude nájemci účtována dvakrát ročně dle skutečné spotřeby.
Pokud hledáte reprezentativní kancelářské prostory na dobře dostupném místě v Paskově, neváhejte nás kontaktovat pro více informací nebo domluvení osobní prohlídky.
| Cena: | 20 000 Kč / (za měsíc) |
| Datum k nastěhování: | 10.10.2025 |
| Číslo zakázky: | REALITYMIX-424966 |
Podrobné informace
- Plocha kanceláří: 200 m²
- Druh objektu: cihlová
- Stav objektu: velmi dobrý
- Druh prostor: Kanceláře
- Voda: Voda - dálkový vodovod
- Odpad: Kanalizace
- Energetická náročnost budovy: D - Méně úsporná
- Ukazatel energetické náročnosti budovy: 65 kWh/m²
- Energetický ukazatel podle vyhlášky: č. 264/2020 Sb.
Mapa
* Umístění na mapě je na základě GPS informací dodaných realitní kanceláří.
* Pozice na mapě je pouze orientační.
Podobné nemovitosti
Pronájem - kanceláře, 61 m²
1. máje, Staré Město, Frýdek-Místek
14 140 Kč za měsíc
Pronájem - kanceláře, 61 m²
1. máje, Staré Město, Frýdek-Místek
15 250 Kč za měsíc
Pronájem - kanceláře, 74 m²
Poštovní, Staré Město, Frýdek-Místek
14 000 Kč za měsíc
Pronájem - kanceláře, 66 m²
Plk. Velebnovského, Jablunkov, Frýdek-Místek
15 000 Kč za měsíc