Prodej - dům/vila, 93 m²
Obecní, Ovčáry, Kolín
9 290 000 KčProdej - dům/vila, 93 m²
Obecní, Ovčáry, Kolín
Prodej rodinného domu 93 m², Ovčáry
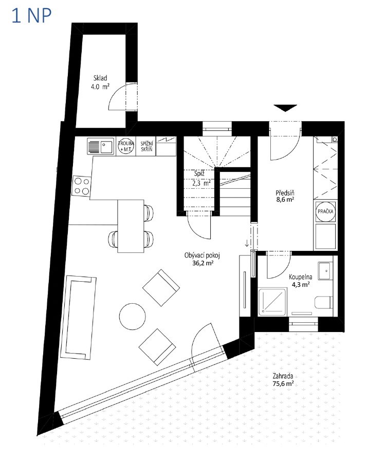
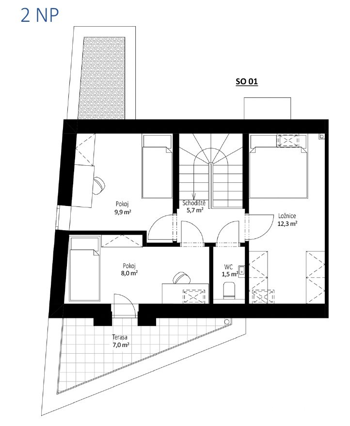
Dům je součástí tří samostatných řadových rodinných domů, přičemž každý z nich stojí na vlastním pozemku a má vlastní přípojky elektřiny, vodovodu i kanalizace. Nabízen je pouze jeden z těchto domů, což z něj činí zajímavou a omezenou příležitost. Dispozice 4+kk nabízí ideální rozložení prostoru pro rodinné bydlení, kdy v přízemí dominuje prostorný obývací pokoj s kuchyňským koutem o velikosti 36,2 m² s přímým vstupem na zahradu, dále zde najdete předsíň, koupelnu, praktickou spíž a samostatný sklad. V patře se nachází ložnice, dva další pokoje, samostatné WC a vstup na terasu.
Celková užitná plocha domu činí 92,8 m², podlahová plocha 99,2 m², k domu náleží zahrada o velikosti 75,6 m² a terasa 7,0 m². Celková plocha pozemku je 192 m². Samozřejmostí jsou dvě parkovací stání přímo u domu.
Dům bude dokončen ve vysokém standardu, který zahrnuje například cihlové pásky Klinker na fasádě, falcovanou střešní krytinu v antracitové barvě, moderní silikonovou omítku a okna s izolačním trojsklem. Interiér nabídne kvalitní vinylové podlahy značky Karndean, interiérové dveře Sapeli, plastová okna Vekra a moderně řešenou koupelnu s velkoformátovými obklady, sprchovým koutem, závěsným WC a kvalitní sanitou. Vytápění zajištěno tepelným čerpadlem a podlahovým topením.
Obec Ovčáry jsou ideálním místem pro ty, kteří chtějí bydlet v klidu menší obce, a přitom mít město na dosah. Najdete zde školu, školku, dětské i fotbalové hřiště, knihovnu a kulturní zázemí. Milovníci přírody ocení blízké jezero Mlejnek, turistické stezky i cyklotrasy vedoucí malebnou krajinou. Díky výbornému autobusovému spojení jste během chvilky v Kolíně a díky napojení na dálnici i rychle v Praze. Tento dům je skvělou volbou pro rodinu, která hledá moderní, úsporné bydlení s atmosférou domova a klidem venkova.
V případě zájmu nebo bližší informace se neváhejte ozvat.
| Cena: | 9 290 000 Kč |
| Číslo zakázky: | REALITYMIX-25299 |
Podrobné informace
- Poloha objektu: řadový
- Druh objektu: cihlová
- Stav objektu: novostavba
- Počet podlaží objektu: 1
- Typ domu: patrový
- Zastavěná plocha: 93 m²
- Plocha parcely: 192 m²
- Užitná plocha: 93 m²
- Terasa: 7 m²
- Ostatní: Parkoviště
- Umístění objektu: klidná část obce
- Doprava: silnice, autobus
- Komunikace: asfaltová
- Elektřina: Elektro - 230 V, Elektro - 400 V
- Voda: Voda - dálkový vodovod
- Odpad: Kanalizace
- Energetická náročnost budovy: B - Velmi úsporná
- Ukazatel energetické náročnosti budovy: 72 kWh/m²
- Energetický ukazatel podle vyhlášky: č. 264/2020 Sb.
Právní rádce
-
Detail
V tomto článku shrneme nejdůležitější věci, které byste si měli promyslet, pokud se chystáte prodat svou nemovitost a chcete, abyste s kupujícím nemusel následně řešit vzniklé problémy.
Jako prodávající nesete rizika spojená nejen se samotným obchodem, ale i se stavem nemovitosti v době prodeje a pro minimalizaci rizik, je dobré se zamyslet nad uvedenými oblastmi.
-
Detail
Realitní makléř má své nezastupitelné místo v realitním obchodu. Realitním makléřem nemyslím nevzdělané jelito, které absolvovalo dvoudenní školení a ví, jak se nahraje inzerát na inzertní portál.
Realitním makléřem, který se Vám skutečně vyplatí, je zkušený profesionál, který je schopen Vám dobře poradit jak prodat za co nejvíc a s nejmenším rizikem a hlavně je Vás schopen obratně provést celým realitním obchodem.