Prodej - dům/vila, 90 m²
Na Františku, Ovčáry, Kolín
7 990 000 KčProdej - dům/vila, 90 m²
Na Františku, Ovčáry, Kolín
Prodej novostavby řadového rodinného domu 4+kk s pozemkem 365m2 v Ovčárech u Kolína
Dům stojí v klidné lokalitě obce Ovčáry jen 4 km od Kolína v ulici na Františku čp 327.
Jedná se o novostavbu kolaudovanou v roce 2024, dům je napojen na kanalizaci, vodovod a elektřinu.
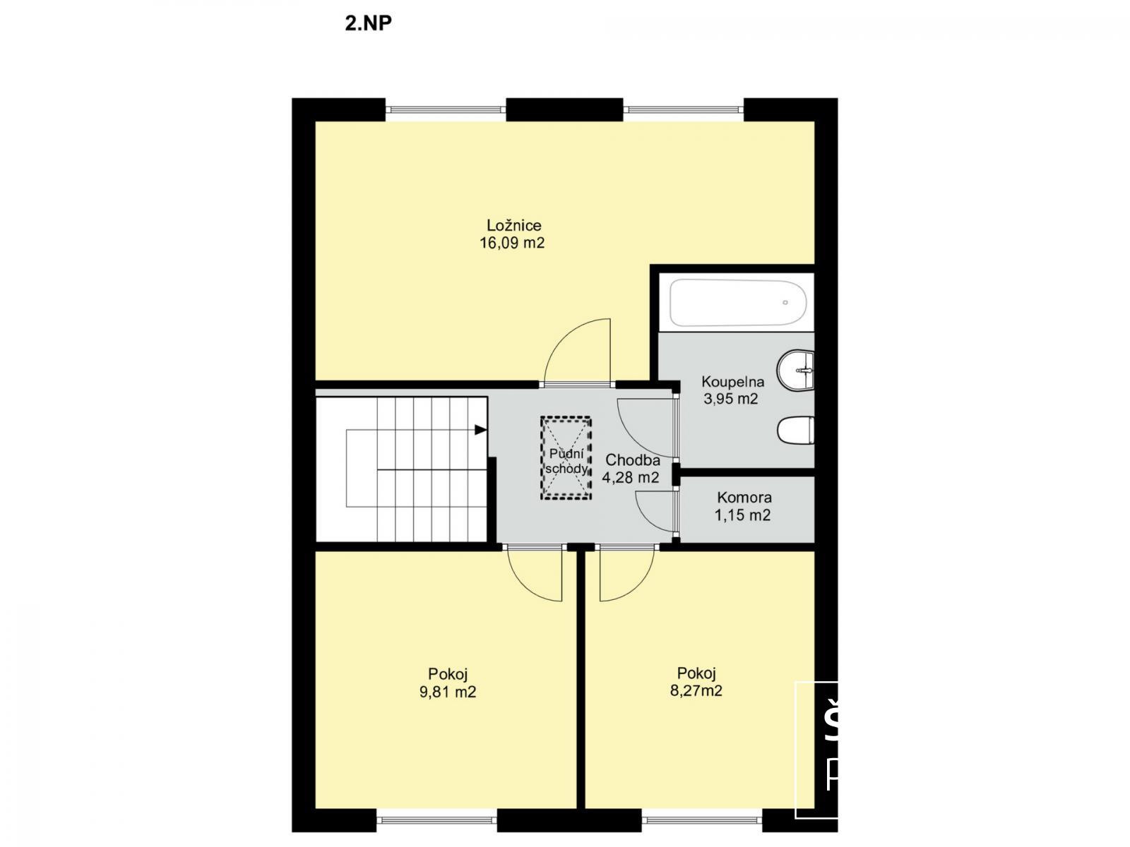
Rodinný dům s promyšlenou dispozicí nabídne 3 samostatné ložnice, obývací pokoj s kuchyňským koutem, dvě koupelny, v přízemí se sprchovým koutem + WC a v 1.patře s vanou + WC. Důraz byl kladen na maximalizaci úložných prostor, vznikla zde tak například i malá půda, v patře komora, v přízemí spíž a technická místnost kde je umístěn kotel a zásobník na teplou vodu, pračka i sušička. Kuchyně je vybavena opravdu komfortní kuchyňskou linkou s vestavěnými spotřebiči - myčkou, indukční deskou, digestoří, elektrickou a mikrovlnou troubou.
Při výstavbě domu jsou použity kvalitní materiály - vyzděno ze zdiva Porotherm, zatepleno, trojskla, elektrokotel značky Protherm Ray, teplovodní podlahové vytápění, PENB B, vinylové podlahy a zařizovací předměty Richter and Frenzel, v ložnicích usazeny předokenní žaluzie. Dům je navržen tak, aby nabídl dostatek pohodlí a komfortu.
Pozemek je vlastní stavbou domu rozdělen na přední a zadní část, přední část slouží především pro přístup a příjezd domů, je z větší části zpevněna a pohodlně zde zaparkujete 2 vozidla, příjezd na pozemek je uzavřen vjezdovými vraty a vstupní brankou. Zadní část pozemku slouží jako zahrada, je zde připravena terasa, vystavěn zahradní domek, který je nyní natažen tzv. do lepidla.. Tato část zahrady disponuje samostatnými vjezdovými vraty, snadno tak zajistíte pravidelnou údržbu zahrady, pohodlně sem umístíte např. bazén apod. Pozemek je oplocen po celém svém obvodu.
Tato výstavba řadových domů je neobvyklá tím, že vnitřním domům, který je předmětem této nabídky, byl vyhrazen největší pozemek a také zajištěn přístup a příjezd na obě části zahrady.
Obec Ovčáry se výrazně změnila díky výstavbě velké průmyslové zóny u Kolína na západně od Ovčár a dnes představuje moderní vesnici s řadou možností pro podnikání, sportovní a kulturní vyžití. Občané mají k dispozici kulturní místnost, knihovnu, nově zrekonstruovanou základní a mateřskou školu, služby (pedikúru, dovážku obědů, masáže), prodejnu s potravinami, pohostinství.
Autobusové spojení s okolními obcemi a nedalekým Kolínem je vynikající.
Hledáte-li pro svou rodinu nové bydlení s nízkými provozními náklady a se snadnou dostupností plné občanské vybavenosti města, preferujete novostavbu a zároveň chcete získat dům za lepších cenových podmínek než přímo v Kolíně, doporučuji Vám prohlídku.
| Cena: | 7 990 000 Kč |
| Poznámka: | Cena uvedena vč. právních služeb a provize RK |
| Číslo zakázky: | REALITYMIX-995 |
Podrobné informace
- Poloha objektu: řadový
- Druh objektu: cihlová
- Stav objektu: novostavba
- Počet podlaží objektu: 2
- Typ domu: patrový
- Zastavěná plocha: 60 m²
- Plocha parcely: 365 m²
- Užitná plocha: 90 m²
- Umístění objektu: okraj obce
- Doprava: vlak, dálnice, silnice, MHD, autobus
- Elektřina: Elektro - 230 V, Elektro - 400 V
- Voda: Zdroj pro celý objekt
- Telekomunikace: Internet
- Topení: Ústřední - elektrické
- Odpad: Kanalizace
- Energetická náročnost budovy: B - Úsporná
Právní rádce
-
Detail
V tomto článku shrneme nejdůležitější věci, které byste si měli promyslet, pokud se chystáte prodat svou nemovitost a chcete, abyste s kupujícím nemusel následně řešit vzniklé problémy.
Jako prodávající nesete rizika spojená nejen se samotným obchodem, ale i se stavem nemovitosti v době prodeje a pro minimalizaci rizik, je dobré se zamyslet nad uvedenými oblastmi.
-
Detail
Realitní makléř má své nezastupitelné místo v realitním obchodu. Realitním makléřem nemyslím nevzdělané jelito, které absolvovalo dvoudenní školení a ví, jak se nahraje inzerát na inzertní portál.
Realitním makléřem, který se Vám skutečně vyplatí, je zkušený profesionál, který je schopen Vám dobře poradit jak prodat za co nejvíc a s nejmenším rizikem a hlavně je Vás schopen obratně provést celým realitním obchodem.