Prodej - dům/vila, 134 m²
Dolní Ostrovec, Písek
1 790 000 KčProdej - dům/vila, 134 m²
Dolní Ostrovec, Písek
Prodej domu s pozemkem 1480m, Dolní Ostrovec - Písek
která leží v krásném a klidném prostředí jihočeské přírody nedaleko Písku. Obec je obklopena lesy a
loukami, ideální pro milovníky klidu, turistiky a cyklistiky. Díky zastávce Českých drah v obci je zajištěna
pohodlná dopravní dostupnost i bez vlastního automobilu.
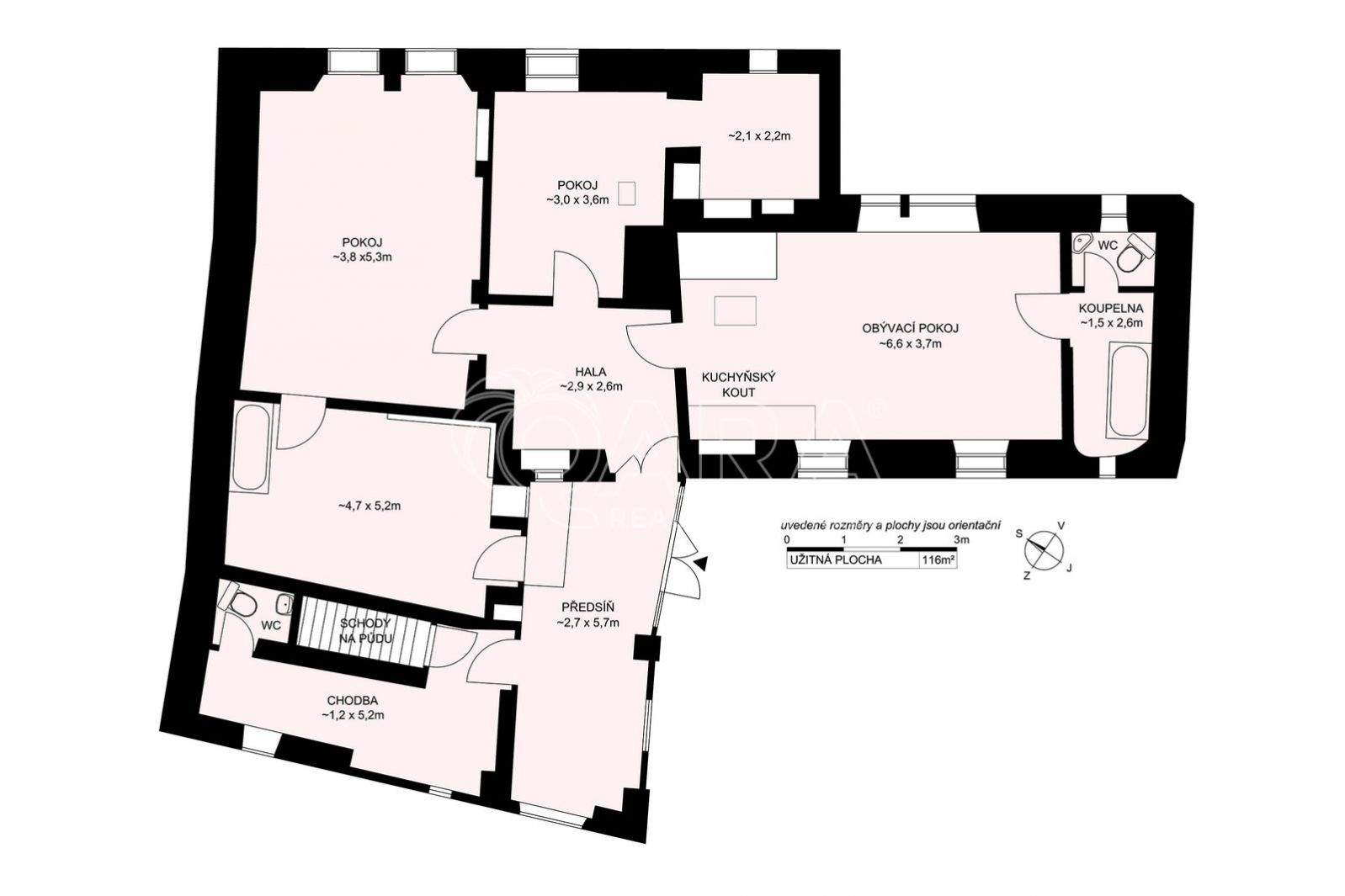
Doporučuji zhlédnutí virtuální prohlídky a plánku, umístěné v galerii.
Chalupa se nachází na pozemku o celkové výměře 1 480 m, z čehož 292 m tvoří zastavěná plocha a
nádvoří a 1 188 m přiléhající zahrada s travním porostem, kam se prochází kolem domu. Objekt nabízí tři
obytné místnosti, halu, koupelnu s vanou a WC, samostatné WC a nebytový prostor bývalou prádelnu.
Dílna se samostatným vchodem.
V domě je zavedena voda z veřejného řádu, užitková voda ve studni, odpady jsou svedeny do jímky.
Vytápění je řešeno lokálně na tuhá paliva v jednotlivých místnostech.
Ohřev vody zajišťuje bojler.
Financování Vám rádi zajistíme.
U dvou snímků byla použita vizualizace pro představu možného stavu po rekonstrukci.
Uvedené výměry jsou orientační. V případě více zájemců bude nemovitost prodána nejlepší nabídce a majitel si vyhrazuje právo vybrat kupujícího na základě jim zvolených kritérií. Veškeré zveřejněné údaje obsažené v tomto inzerátu mají pouze informativní charakter a nejsou nabídkou ve smyslu § 1731 nebo § 1732 občanského zákoníku, ani se nejedná o veřejný příslib dle § 1733 občanského zákoníku
Pro další informace a prohlídku kontaktujte makléřku zakázky Markétu Jenčíkovou.
| Cena: | 1 790 000 Kč |
| Číslo zakázky: | REALITYMIX-18284 |
Podrobné informace
- Poloha objektu: samostatný
- Druh objektu: smíšená
- Stav objektu: před rekonstrukcí
- Počet podlaží objektu: 1
- Typ domu: přízemní
- Zastavěná plocha: 189 m²
- Plocha parcely: 324 m²
- Užitná plocha: 134 m²
- Umístění objektu: klidná část obce
- Energetická náročnost budovy: G - Mimořádně nehospodárná
Právní rádce
-
Detail
V tomto článku shrneme nejdůležitější věci, které byste si měli promyslet, pokud se chystáte prodat svou nemovitost a chcete, abyste s kupujícím nemusel následně řešit vzniklé problémy.
Jako prodávající nesete rizika spojená nejen se samotným obchodem, ale i se stavem nemovitosti v době prodeje a pro minimalizaci rizik, je dobré se zamyslet nad uvedenými oblastmi.
-
Detail
Realitní makléř má své nezastupitelné místo v realitním obchodu. Realitním makléřem nemyslím nevzdělané jelito, které absolvovalo dvoudenní školení a ví, jak se nahraje inzerát na inzertní portál.
Realitním makléřem, který se Vám skutečně vyplatí, je zkušený profesionál, který je schopen Vám dobře poradit jak prodat za co nejvíc a s nejmenším rizikem a hlavně je Vás schopen obratně provést celým realitním obchodem.