Pronájem - skladovací prostor, 940 m²
U Studia, Ostrava-Jih, Ostrava, Ostrava-město
120 000 Kč (za měsíc)Pronájem - skladovací prostor, 940 m²
U Studia, Ostrava-Jih, Ostrava, Ostrava-město
120 000 Kč
(za měsíc)
G
Mimořádně nehospodárná
Pronájem skladovací haly, U Studia ul., Ostrava - Zábřeh
Nabízíme pronájem skladovací haly v komerčním areálu na ulici U Studia v Ostravě – Zábřehu, naproti jednoho z největších nákupního center v Moravskoslezském kraji - Avion Shopping Parku.
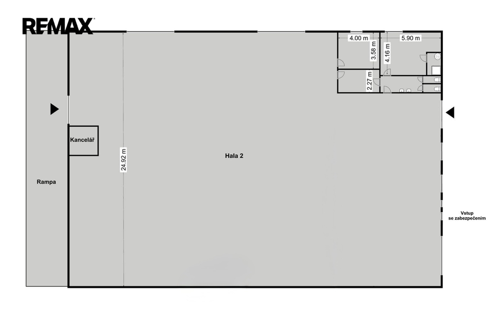
Hala o zastavěná ploše 940 m² disponuje světlou výškou 3,35 m (měřeno ke spodní hraně příruby nosníku). Hala se skládá ze skladovacího prostoru 845 m², malé kanceláře u hlavního vstupu a zázemím s šatnami (3 šatny, koupelna se sprchovým koutem a WC).
Hala má dvoje vrata pro zásobování – vrata hlavní vstup 2,8 m x 2,77 m s výškou rampy 0,38 m, roletová vrata zadní vstup 2,92m x 2,24 m s výškou plošiny 1,2 m.
Hala má kolaudaci pro skladování zábavní pyrotechniky.
Výborná dopravní dostupnost areálu (exit 354 dálnice D1 vzdálen 3km), veškerá městská infastruktura v bezprostřední blízkosti, zastávka MHD 4 min chůze.
Požadovaná výše nájemného je 120 000 Kč/měsíc + DPH, energie budou účtovány měsíčně dle skutečné spotřeby, vratná jistota ve výši dvou měsíčních nájmů. Cena k jednání.
Pro více informací mne neváhejte kontaktovat. Pronajímající si vyhrazuje právo vybrat nájemce na základě jím zvolených kritérií.
Hala o zastavěná ploše 940 m² disponuje světlou výškou 3,35 m (měřeno ke spodní hraně příruby nosníku). Hala se skládá ze skladovacího prostoru 845 m², malé kanceláře u hlavního vstupu a zázemím s šatnami (3 šatny, koupelna se sprchovým koutem a WC).
Hala má dvoje vrata pro zásobování – vrata hlavní vstup 2,8 m x 2,77 m s výškou rampy 0,38 m, roletová vrata zadní vstup 2,92m x 2,24 m s výškou plošiny 1,2 m.
Hala má kolaudaci pro skladování zábavní pyrotechniky.
Výborná dopravní dostupnost areálu (exit 354 dálnice D1 vzdálen 3km), veškerá městská infastruktura v bezprostřední blízkosti, zastávka MHD 4 min chůze.
Požadovaná výše nájemného je 120 000 Kč/měsíc + DPH, energie budou účtovány měsíčně dle skutečné spotřeby, vratná jistota ve výši dvou měsíčních nájmů. Cena k jednání.
Pro více informací mne neváhejte kontaktovat. Pronajímající si vyhrazuje právo vybrat nájemce na základě jím zvolených kritérií.
| Cena: | 120 000 Kč / (za měsíc) |
| Poznámka: | + energie a služby. Výše nájemného je k jednání. |
| Datum k nastěhování: | 08.04.2025 |
| Číslo zakázky: | REALITYMIX-411627 |
Podrobné informace
- Celková plocha: 940 m²
- Plocha parcely: 940 m²
- Druh objektu: smíšená
- Stav objektu: velmi dobrý
- Druh prostor: Skladovací
- Umístění objektu: rušná část obce
- Energetická náročnost budovy: G - Mimořádně nehospodárná
- Energetický ukazatel podle vyhlášky: č. 264/2020 Sb.
Mapa
* Umístění na mapě je na základě GPS informací dodaných realitní kanceláří.
* Pozice na mapě je pouze orientační.
Podobné nemovitosti
Pronájem - kanceláře, 806 m²
Hornopolní, Moravská Ostrava a Přívoz, Ostrava, Ostrava-město
320 Kč za m2/měsíc
Pronájem - kanceláře, 3 000 m²
28. října, Moravská Ostrava a Přívoz, Ostrava, Ostrava-město
13,00 € za m2/měsíc
Pronájem - kanceláře, 43 m²
Dlouhá, Moravská Ostrava a Přívoz, Ostrava, Ostrava-město
5 982 Kč za měsíc
Pronájem - kanceláře, 212 m²
Velká, Moravská Ostrava a Přívoz, Ostrava, Ostrava-město
19 600 Kč za měsíc