Prodej - komerční objekt, jiný, 123 m²
U Staré elektrárny, Slezská Ostrava, Ostrava, Ostrava-město
6 300 000 KčProdej - komerční objekt, jiný, 123 m²
U Staré elektrárny, Slezská Ostrava, Ostrava, Ostrava-město
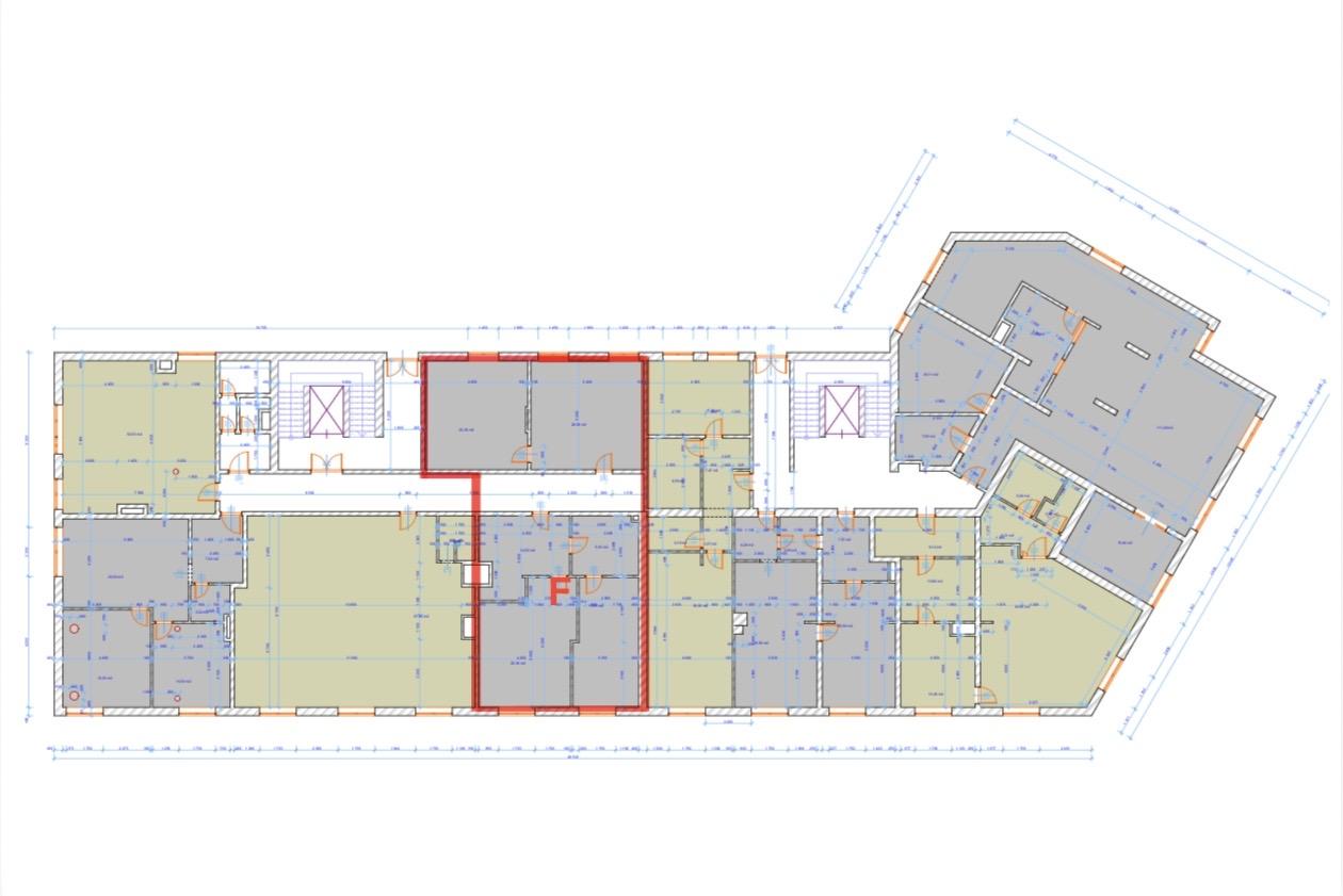
Obchodní /administrativní prostor Slezská Ostrava - F - 123 m2
Koupě těchto prostor představuje výbornou investiční příležitost, jsou vhodné pro sídlo firmy, kanceláře, ordinace, showroom či obchodní provoz.
Parkování je zajištěno na vlastním pozemku přímo v areálu - k této jednotce jsou vyhrazená 2 parkovací stání + lze parkovat také přímo před jednotlivými obchodními jednotkami.
Zde se jedná o prostor pod písmenem F- 123 m2.
Dispozice a výměry jednotlivých jednotek, které je možno koupit:
1. nadzemní podlaží (1. NP):
- jednotka A 57 m2
- jednotka B 63 m2
- jednotka C 108 m2
- jednotka D 61 m2
- jednotka E 121 m2
2. nadzemní podlaží (2.NP)
- jednotka F 123 m2 (tuto nebytovou jednotku je možno změnit na bytovou jednotku)
Technický stav a vybavení:
- v celém objektu jsou hliníková okna a dveře
- podlahové krytiny (dlažba, PVC)
- objekt je udržovaný s možností okamžitého využití
- vytápění pomocí elektrických přímotopů
Další výhody:
- výborná dostupnost do centra Ostravy
- možnost rozdělení prostor pro více nájemců
- vhodné pro kombinaci podnikání a bydlení
Cena a prohlídky:
Pro více informací či sjednání osobní prohlídky kontaktujte naši realitní makléřku, která Vám ráda poskytne veškeré podrobnosti.
Rádi Vám pomůžeme také s financováním této nemovitosti zajistíme pro Vás výhodné hypoteční nebo úvěrové podmínky a kompletní servis.
Majitel si vyhrazuje právo vybrat kupujícího na základě jím zvolených kritérií. Veškeré zveřejněné údaje obsažené v tomto inzerátu mají pouze informativní charakter a nejsou nabídkou ve smyslu § 1731 nebo § 1732 občanského zákoníku, ani se nejedná o veřejný příslib dle § 1733 občanského zákoníku.
| Cena: | 6 300 000 Kč |
| Plocha: | 123 m² |
| Číslo zakázky: | REALITYMIX-304 |
Podrobné informace
- Celková plocha: 123 m²
- Druh objektu: cihlová
- Stav objektu: velmi dobrý
- Účel budovy: Jiný
- Umístění objektu: centrum obce
- Topení: Lokální - elektrické
- Energetická náročnost budovy: B - Úsporná
Právní rádce
-
Detail
V tomto článku shrneme nejdůležitější věci, které byste si měli promyslet, pokud se chystáte prodat svou nemovitost a chcete, abyste s kupujícím nemusel následně řešit vzniklé problémy.
Jako prodávající nesete rizika spojená nejen se samotným obchodem, ale i se stavem nemovitosti v době prodeje a pro minimalizaci rizik, je dobré se zamyslet nad uvedenými oblastmi.
-
Detail
Realitní makléř má své nezastupitelné místo v realitním obchodu. Realitním makléřem nemyslím nevzdělané jelito, které absolvovalo dvoudenní školení a ví, jak se nahraje inzerát na inzertní portál.
Realitním makléřem, který se Vám skutečně vyplatí, je zkušený profesionál, který je schopen Vám dobře poradit jak prodat za co nejvíc a s nejmenším rizikem a hlavně je Vás schopen obratně provést celým realitním obchodem.
Mapa
Podobné nemovitosti
Prodej - komerční objekt, administrativní budova, 470 m²
28. října, Moravská Ostrava a Přívoz, Ostrava, Ostrava-město
Cena na vyžádání
Prodej - komerční objekt, jiný, 1 620 m²
Rovná, Moravská Ostrava a Přívoz, Ostrava, Ostrava-město
Cena na vyžádání
Prodej - komerční objekt, jiný, 61 m²
U Staré elektrárny, Slezská Ostrava, Ostrava, Ostrava-město
2 440 000 Kč
Prodej - komerční objekt, administrativní budova, 292 m²
Olbrachtova, Slezská Ostrava, Ostrava, Ostrava-město
15 900 000 Kč