Prodej bytu, 2+kk, 54 m²
Loudova, Olomouc
6 535 000 KčProdej bytu, 2+kk, 54 m²
Loudova, Olomouc
Prodej novostavby bytu 2+kk, Olomouc - Loudova, dům B1
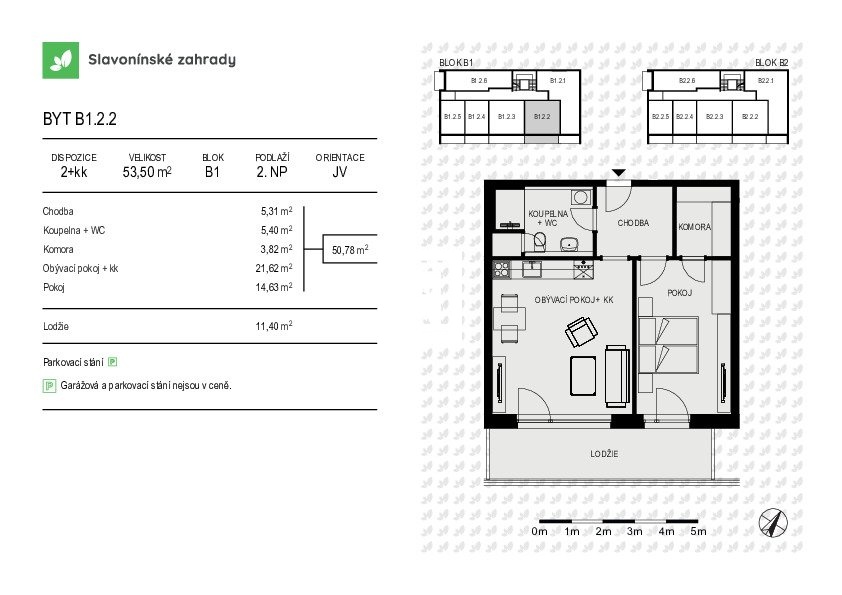
Byt B1.2.2 o dispozici 2+kk má podlahovou plochu 53,5 m² a terasa o velikosti 11,4 m² se nachází ve 2.NP bytového domu s nízkým počtem bytových jednotek.
Velkou předností lokality je dostatek zeleně, odpočinková zóna kolem přírodního rybníku Hamrys, cyklistická stezka, to vše pro čas odpočinku. Skvělá občanská vybavenost, vynikající dostupnost MHD včetně nově prodloužené tramvajové tratě, a bezproblémový výjezd na dálnici naopak usnadní pracovní část dne.
Vysoký komfort bydlení je zajištěn moderním standardním vybavením: podlahové vytápění po celé ploše jednotek, obložkové zárubně, vinylové podlahy, keramické obklady - vše dle volby klienta a také základní příprava pro venkovní žaluzie. Garážová stání a komory k dokoupení jsou samozřejmostí. Vyberte si své vysněné bydlení včas!
Klient hradí nad rámec kupní ceny poplatek za právní a administrativní servis.
| Cena: | 6 535 000 Kč |
| Dispozice/podlahová plocha: | 2+kk/54 m² |
| Číslo zakázky: | REALITYMIX-00870 |
| Součástí developerského projektu: | Detail projektu |
| Zobrazit všechny jednotky z projektu: | Zobrazit |
Podrobné informace
- Bezbariérový byt: ano
- Dispozice bytu: 2+kk
- Číslo podlaží v domě: 2
- Počet podlaží objektu: 4
- Celková podlahová plocha: 54 m²
- Druh objektu: cihlová
- Stav objektu: novostavba
- Vlastnictví: osobní
- Terasa: 11 m²
- Umístění objektu: klidná část obce
- Doprava: vlak, dálnice, silnice, MHD, autobus
- Elektřina: Elektro - 230 V
- Voda: Voda - dálkový vodovod
- Odpad: Kanalizace
- Energetická náročnost budovy: B - Velmi úsporná
- Ukazatel energetické náročnosti budovy: 143 kWh/m²
- Energetický ukazatel podle vyhlášky: č. 78/2013 Sb.
Právní rádce
-
Detail
V tomto článku shrneme nejdůležitější věci, které byste si měli promyslet, pokud se chystáte prodat svou nemovitost a chcete, abyste s kupujícím nemusel následně řešit vzniklé problémy.
Jako prodávající nesete rizika spojená nejen se samotným obchodem, ale i se stavem nemovitosti v době prodeje a pro minimalizaci rizik, je dobré se zamyslet nad uvedenými oblastmi.
-
Detail
Realitní makléř má své nezastupitelné místo v realitním obchodu. Realitním makléřem nemyslím nevzdělané jelito, které absolvovalo dvoudenní školení a ví, jak se nahraje inzerát na inzertní portál.
Realitním makléřem, který se Vám skutečně vyplatí, je zkušený profesionál, který je schopen Vám dobře poradit jak prodat za co nejvíc a s nejmenším rizikem a hlavně je Vás schopen obratně provést celým realitním obchodem.