Prodej bytu, 2+1, 45 m²
Fischerova, Nové Sady, Olomouc
5 150 000 KčProdej bytu, 2+1, 45 m²
Fischerova, Nové Sady, Olomouc
Prodej bytu 2+1, Fischerova, Olomouc
Byt v posledních měsících prošel rozsáhlou rekonstrukcí, během které bylo modernizováno zděné bytové jádro, dále byly vyměněny podlahy a povrchy, vyměněna byla také elektroinstalace v bytě a zárubně včetně interiérových a vstupních dveří. Dále byla vyměněna kuchyňská linka, která nyní disponuje vestavnými spotřebiči (kombinovaná lednice s mrazákem, myčka, elektrická trouba, plynová varná deska, digestoř, mikrovlnná trouba) a nabízí také prostor pro umístění pračky. Koupelna je vybavena sprchovým koutem a není oddělená od toalety.
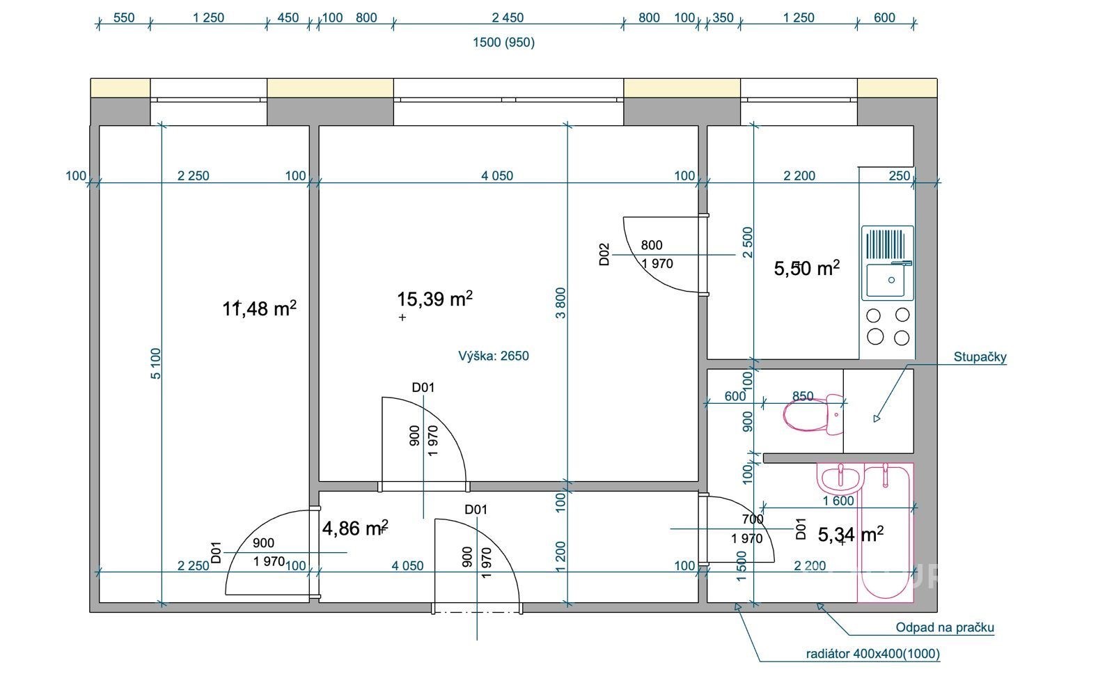
Dispozice bytu se skládá z centrální vstupní chodby (5,8 m2), odkud vede vstup do koupelny s toaletou (4,8 m2), obývacího pokoje (16,1 m2) a ložnice (11,3 m2). Z obývacího pokoje vede dále vstup do kuchyně (5,6 m2). Orientace bytu je na jihozápad a díky umístění ve vyšším patře tak nabízí nerušený výhled.
Topení a ohřev vody je zajištěno centrálně dálkově. Dle aktuálního předpisu plateb činí platby spojené s bytem částku 5.269 Kč (872 Kč příspěvek do fondu oprav, 3.690 Kč teplo a ohřev TUV, 132 Kč vodné stočné, 145 Kč úklid a 430 Kč ostatní náklady). K tomu se platí dle spotřeby záloha 800 Kč za elektřinu a 300 Kč za plyn (na vaření). Měsíční předpis záloh vychází při obsazení bytu dvěma osobami ve značném přeplatku, který za poslední období činil přes 30.000 Kč. Společenství vlastníků jednotek hospodaří stabilně bez úvěrového zatížení s více než 11.000.000 Kč ve fondu oprav a dlouhodobě kladným hospodářským výsledkem.
Jak bylo popsáno v úvodu, díky provedené rekonstrukci se jedná se o byt, který je připravený okamžitě sloužit jak na vlastní bydlení, tak k pronájmu. Po rekonstrukci je byt zatím nevyužívaný, takže můžete být první, kdo bude v bytě bydlet. Pro více informací nebo osobní prohlídku se na nás neváhejte obrátit. Prohlídkový den proběhne v úterý 13. 1., konkrétní čas prohlídky je možné rezervovat telefonicky.
| Cena: | 5 150 000 Kč |
| Poznámka: | včetně provize RK |
| Datum k nastěhování: | 15.01.2026 |
| Dispozice/podlahová plocha: | 2+1/45 m² |
| Číslo zakázky: | REALITYMIX-972672 |
Podrobné informace
- Dispozice bytu: 2+1
- Číslo podlaží v domě: 8
- Počet podlaží objektu: 8
- Celková podlahová plocha: 45 m²
- Druh objektu: panelová
- Stav objektu: velmi dobrý
- Vlastnictví: osobní
- Sklep: 1 m²
- Elektřina: Elektro - 230 V
- Voda: Zdroj pro celý objekt, Voda - dálkový vodovod
- Plyn: Plynovod
- Energetická náročnost budovy: C - Vyhovující
Právní rádce
-
Detail
V tomto článku shrneme nejdůležitější věci, které byste si měli promyslet, pokud se chystáte prodat svou nemovitost a chcete, abyste s kupujícím nemusel následně řešit vzniklé problémy.
Jako prodávající nesete rizika spojená nejen se samotným obchodem, ale i se stavem nemovitosti v době prodeje a pro minimalizaci rizik, je dobré se zamyslet nad uvedenými oblastmi.
-
Detail
Realitní makléř má své nezastupitelné místo v realitním obchodu. Realitním makléřem nemyslím nevzdělané jelito, které absolvovalo dvoudenní školení a ví, jak se nahraje inzerát na inzertní portál.
Realitním makléřem, který se Vám skutečně vyplatí, je zkušený profesionál, který je schopen Vám dobře poradit jak prodat za co nejvíc a s nejmenším rizikem a hlavně je Vás schopen obratně provést celým realitním obchodem.