Prodej - pozemek pro bydlení, 1 610 m²
Povodňová, Obříství, Mělník
8 000 000 KčProdej - pozemek pro bydlení, 1 610 m²
Povodňová, Obříství, Mělník
Pozemek se stavebním povolením - Obříství
Oplocený pozemek o velikosti 1610 m2 je napojen na elektřinu a obecní vodovod, příprava na tlakovou kanalizaci, funkční studna s čerpadlem.
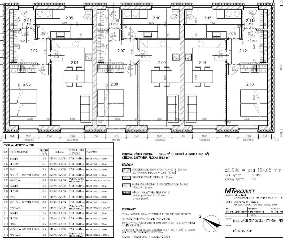
Stavební povolení pro rodinný dům s nebytovými prostory - obsahující v 1. NP 2 nebytové prostory - kanceláře se zázemím a garáž užívanou výhradně pro byty a v 2. NP 3 byty 2+kk s příslušenstvím. Na žádost zašlu stavební podklady včetně Povolení ke stavbě ze dne 15.4.2025.
Budoucí stavba geodeticky vyměřena, na pozemku zbytky materiálů a stavební bouda, které budou s prodejem odstraněny.
Vhodné pro investory, kteří chtějí hned stavět. Více informací na níže uvedeném kontaktu.
| Cena: | 8 000 000 Kč |
| Plocha: | 1610 m² |
| Číslo zakázky: | REALITYMIX-18308 |
Podrobné informace
- Celková plocha: 1610 m²
- Druh pozemku: pro bydlení
- Inženýrské sítě: vodovod, kanalizace
- Umístění objektu: klidná část obce
- Doprava: silnice, MHD, autobus
- Komunikace: dlážděná
- Energetický ukazatel podle vyhlášky: č. 264/2020 Sb.
Právní rádce
-
Detail
V tomto článku shrneme nejdůležitější věci, které byste si měli promyslet, pokud se chystáte prodat svou nemovitost a chcete, abyste s kupujícím nemusel následně řešit vzniklé problémy.
Jako prodávající nesete rizika spojená nejen se samotným obchodem, ale i se stavem nemovitosti v době prodeje a pro minimalizaci rizik, je dobré se zamyslet nad uvedenými oblastmi.
-
Detail
Realitní makléř má své nezastupitelné místo v realitním obchodu. Realitním makléřem nemyslím nevzdělané jelito, které absolvovalo dvoudenní školení a ví, jak se nahraje inzerát na inzertní portál.
Realitním makléřem, který se Vám skutečně vyplatí, je zkušený profesionál, který je schopen Vám dobře poradit jak prodat za co nejvíc a s nejmenším rizikem a hlavně je Vás schopen obratně provést celým realitním obchodem.
Mapa
Podobné nemovitosti
Prodej - pozemek pro bydlení, 500 m²
Čelakovského, Veltrusy, Mělník
5 700 000 Kč
Prodej - pozemek pro bydlení, 2 471 m²
Chvatěruby, Mělník
6 500 000 Kč
Prodej - pozemek pro bydlení, 1 281 m²
K Bažantnici, Obříství, Mělník
7 686 000 Kč
Prodej - pozemek pro bydlení, 1 029 m²
Mikovice, Mělník
5 999 999 Kč