Prodej bytu, 3+kk, 76 m²
Inspektorská, Nymburk
RezervovánoProdej bytu, 3+kk, 76 m²
Inspektorská, Nymburk
Prodej bytu 3+kk s garážovým stáním, ul. Inspektorská, Nymburk
Díky dispozici bytu a přítomnosti výtahu bych bydlení doporučil všem bez věkového omezení s maximálním počtem 4 lidí včetně dětí. Bonusem je garážové stání a vlakové nádraží. Díky tomu je ideální pro ty, kteří jezdí pravidelně pracovat do Prahy nebo do jiného výše zmíněného města.
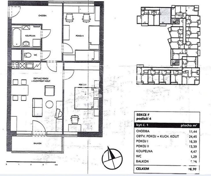
Byt se nachází ve 4. nadzemním podlaží (3. patro), kde Vás nebude rušit ruch ze společných prostor. Přivítá vás prostorná chodba do tvaru L a z ní se dostanete do obývacího pokoje s kuchyní, do prvního pokoje, do koupelny s vanou a umyvadlem a na toaletu. Z obývacího pokoje se dostanete do druhého pokoje a také na balkón. Okna směřují na JV a SZ. Dům je napojen na elektřinu, vodovod a kanalizaci. Teplá voda a topení je zajištěna dálkovým rozvodem. Tedy maximální pohodlí bez námahy. Dům není starý ani 20 let, tudíž v bytě nebyla nutná žádná větší rekonstrukce. Vnitřní rozvody domu jsou ve velmi dobrém stavu a opravována byla pouze střecha.
Měsíční poplatky činí 6 453 Kč bez elektřiny. Za garážové stání zaplatíte měsíčně 1550 Kč.
K bytu náleží i kóje pro uložení méně potřebných věcí.
Nymburk jako okresní město nabídne veškerou občanskou vybavenost. V centru města se pravidelně po celý rok pořádá spoustu akcí pro veřejnost a velmi romantické je například populární letní kino pod hradbami. Cyklostezka u Labe je skvělým místem pro sport i relaxaci například u Staré rybárny.
Pokud vás nabídka zaujala rád vám zprostředkuji prohlídku a v případě financování hypotékou poradím jak na to.
Budu se těšit.
Uvedené metráže jsou obdržené od SVJ.
| Cena: | Rezervováno |
| Dispozice/podlahová plocha: | 3+kk/76 m² |
| Číslo zakázky: | REALITYMIX-2045 |
Podrobné informace
- Dispozice bytu: 3+kk
- Číslo podlaží v domě: 3
- Počet podlaží objektu: 4
- Užitná plocha: 71 m²
- Celková podlahová plocha: 76 m²
- Druh objektu: smíšená
- Stav objektu: velmi dobrý
- Vlastnictví: osobní
- Balkon: 5 m²
- Umístění objektu: klidná část obce
- Plyn: Plynovod
- Odpad: Kanalizace
- Energetický ukazatel podle vyhlášky: č. 264/2020 Sb.
Právní rádce
-
Detail
V tomto článku shrneme nejdůležitější věci, které byste si měli promyslet, pokud se chystáte prodat svou nemovitost a chcete, abyste s kupujícím nemusel následně řešit vzniklé problémy.
Jako prodávající nesete rizika spojená nejen se samotným obchodem, ale i se stavem nemovitosti v době prodeje a pro minimalizaci rizik, je dobré se zamyslet nad uvedenými oblastmi.
-
Detail
Realitní makléř má své nezastupitelné místo v realitním obchodu. Realitním makléřem nemyslím nevzdělané jelito, které absolvovalo dvoudenní školení a ví, jak se nahraje inzerát na inzertní portál.
Realitním makléřem, který se Vám skutečně vyplatí, je zkušený profesionál, který je schopen Vám dobře poradit jak prodat za co nejvíc a s nejmenším rizikem a hlavně je Vás schopen obratně provést celým realitním obchodem.