Prodej bytu, 3+1, 78 m²
Zbožská, Nymburk
5 100 000 KčProdej bytu, 3+1, 78 m²
Zbožská, Nymburk
Prodej bytu 3+1/L, Nymburk, okr. Nymburk
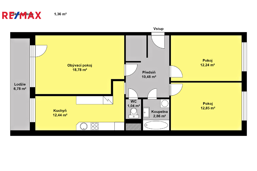
Bytová jednotka o celkové ploše 78,83 m² (užitná plocha 70,69 m²) se nachází ve 3. patře osmipodlažního panelového domu, který prošel celkovou revitalizací a je v dobrém stavu.
Součástí bytové jednotky je chodba, kde je efektivně využit prostor, zahrnuje šatnu, tři pokoje, samostatnou kuchyň s jídelním koutem, který je nyní využíván, jako pracovna, dále zděné jádro s novou koupelnou, samostatné WC a zasklenou lodžii, která poskytuje ideální místo pro relaxaci a užívání si výhledu do zeleně.
Byt disponuje centrálním dálkovým vytápěním a ohřevem vody. Budova je napojena na veškeré inženýrské sítě, včetně kanalizace.
K bytové jednotce patří sklep o velikosti 1,36 m² a možnost užívání kolárny/kočárkárny a sušárny.
Celkové měsíční zálohy na služby a energie činí 6.700, Kč.
Veškerá občanská vybavenost s možností využití volného času je v bezprostředním okolí (supermarket, restaurace, bankomat, poliklinika, škola, školka, dětské hřiště, MHD). Centrum města je v dosahu 10 minut.
Díky umístění se tato bytová jednotka stává ideálním místem pro bydlení rodiny s dětmi.
Nymburk je okresní město ve Středočeském kraji, vzdálené 45 km od Prahy, 30 km od Mladé Boleslavi a 25 km od Kolína.
Neváhejte mi zavolat, ráda Vás nemovitostí provedu.
| Cena: | 5 100 000 Kč |
| Datum k nastěhování: | 01.03.2025 |
| Dispozice/podlahová plocha: | 3+1/78 m² |
| Číslo zakázky: | REALITYMIX-429160 |
Podrobné informace
- Dispozice bytu: 3+1
- Číslo podlaží v domě: 3
- Počet podlaží objektu: 8
- Užitná plocha: 70 m²
- Celková podlahová plocha: 78 m²
- Druh objektu: skeletová
- Stav objektu: dobrý
- Vlastnictví: osobní
- Lodžie: 6 m²
- Sklep: 1 m²
- Vybaveno: ano
- Umístění objektu: sídliště
- Doprava: vlak, dálnice, silnice, MHD, autobus
- Elektřina: Elektro - 230 V
- Voda: Voda - dálkový vodovod
- Telekomunikace: Internet
- Odpad: Kanalizace
- Ostatní rozvody: Kabelové rozvody
- Energetická náročnost budovy: D - Méně úsporná
- Ukazatel energetické náročnosti budovy: 640.026 kWh/m²
- Energetický ukazatel podle vyhlášky: č. 78/2013 Sb.
Právní rádce
-
Detail
V tomto článku shrneme nejdůležitější věci, které byste si měli promyslet, pokud se chystáte prodat svou nemovitost a chcete, abyste s kupujícím nemusel následně řešit vzniklé problémy.
Jako prodávající nesete rizika spojená nejen se samotným obchodem, ale i se stavem nemovitosti v době prodeje a pro minimalizaci rizik, je dobré se zamyslet nad uvedenými oblastmi.
-
Detail
Realitní makléř má své nezastupitelné místo v realitním obchodu. Realitním makléřem nemyslím nevzdělané jelito, které absolvovalo dvoudenní školení a ví, jak se nahraje inzerát na inzertní portál.
Realitním makléřem, který se Vám skutečně vyplatí, je zkušený profesionál, který je schopen Vám dobře poradit jak prodat za co nejvíc a s nejmenším rizikem a hlavně je Vás schopen obratně provést celým realitním obchodem.