Prodej - dům/vila, 120 m²
Praha-východ
10 459 990 KčProdej - dům/vila, 120 m²
Praha-východ
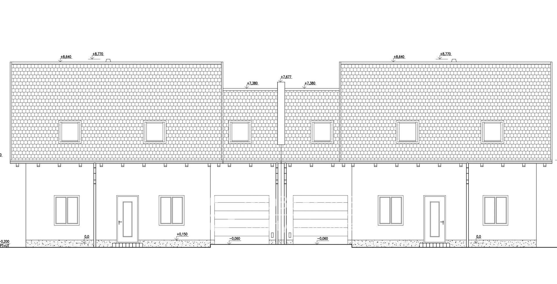
Novostavba rodinného domu 5+kk 120m2, pozemek 410m2 Nehvizdy
Tento moderní dům bude součástí nové zástavby rodinných domů, což zaručuje příjemné, klidné bydlení a zároveň dobrou dostupnost do Prahy, nebo okolních měst.
Zděný dům bude prodáván jako hrubá stavba, s novými kvalitními okny a vstupními dveřmi, to vám umožní přizpůsobit interiér podle vašich představ. Fasáda a interiér domu bude k dokončení po dohodě s realizující firmou, nebo si můžete vybrat stavební firmu podle vlastního uvážení.
Tímto způsobem získáte možnost vytvořit si domov přesně podle svých potřeb a vkusu.
Dům bude připojen na veškeré dostupné sítě – elektřinu, plyn, vodu, kanalizaci a optiku.
Pozemek bude v zadní části oplocen, pro zajištění potřebného soukromí a bezpečnosti. Vjezdová brána není součástí dodávky a tím budete mít možnost zvolit si vlastní řešení. Dokončení hrubé stavby je plánováno na léto 2026, termín vám dává dostatek času na přípravu a plánování vašeho nového bydlení.
Tato nemovitost představuje skvělou investici do budoucnosti, ať už hledáte rodinný dům pro sebe, nebo zajímavou příležitost na trhu s nemovitostmi.
Neváhejte nás kontaktovat pro více informací.
| Cena: | 10 459 990 Kč |
| Poznámka: | včetně právního a hypotečního servisu |
| Číslo zakázky: | REALITYMIX-00220 |
Podrobné informace
- Poloha objektu: v bloku
- Druh objektu: cihlová
- Stav objektu: ve výstavbě (hrubá stavba)
- Počet podlaží objektu: 1
- Typ domu: patrový
- Zastavěná plocha: 120 m²
- Plocha parcely: 410 m²
- Užitná plocha: 120 m²
- Ostatní: Parkoviště
- Umístění objektu: klidná část obce
- Doprava: dálnice, silnice, MHD, autobus
- Komunikace: dlážděná
- Elektřina: Elektro - 230 V, Elektro - 400 V
- Voda: Voda - dálkový vodovod
- Plyn: Plynovod
- Odpad: Kanalizace
- Energetická náročnost budovy: G - Mimořádně nehospodárná
Právní rádce
-
Detail
V tomto článku shrneme nejdůležitější věci, které byste si měli promyslet, pokud se chystáte prodat svou nemovitost a chcete, abyste s kupujícím nemusel následně řešit vzniklé problémy.
Jako prodávající nesete rizika spojená nejen se samotným obchodem, ale i se stavem nemovitosti v době prodeje a pro minimalizaci rizik, je dobré se zamyslet nad uvedenými oblastmi.
-
Detail
Realitní makléř má své nezastupitelné místo v realitním obchodu. Realitním makléřem nemyslím nevzdělané jelito, které absolvovalo dvoudenní školení a ví, jak se nahraje inzerát na inzertní portál.
Realitním makléřem, který se Vám skutečně vyplatí, je zkušený profesionál, který je schopen Vám dobře poradit jak prodat za co nejvíc a s nejmenším rizikem a hlavně je Vás schopen obratně provést celým realitním obchodem.
Mapa
Podobné nemovitosti
Prodej - dům/vila, 138 m²
Petra Jilemnického, Brandýs nad Labem, Praha-východ
8 900 000 Kč
Prodej - dům/vila, 183 m²
Výletní, Brandýs nad Labem, Praha-východ
11 500 000 Kč
Prodej - dům/vila, 275 m²
Chomutovice, Popovičky, Praha-východ
9 950 000 Kč
Prodej - dům/vila, 224 m²
Štiřínská, Želivec, Praha-východ
11 000 000 Kč