Prodej - dům/vila, 135 m²
Palackého, Nechanice, Hradec Králové
4 700 000 KčProdej - dům/vila, 135 m²
Palackého, Nechanice, Hradec Králové
Prodej rodinného domu 135 m2 s pozemkem 1127 m2 v Nechanicích
Tento rodinný dům stojí v klidné části obce na krásném, prostorném pozemku o velikosti 1 127 m² a nabízí dostatek prostoru pro rodinný život, zahradu i vaše koníčky. Velkou výhodou je také přístup na zahradu nejen od domu, ale i z vedlejšího obecního pozemku, což oceníte například při údržbě zahrady, parkování nebo plánování budoucích úprav.
Kromě samotného domu zde najdete také garáž, dílnu a menší zahradní domek, takže místa je tu opravdu dost – ať už pro práci, odpočinek nebo uskladnění všeho potřebného.
Dalším benefitem je, že v domě lze ihned normálně bydlet a případnou rekonstrukci řešit postupně, podle vašich možností a představ. Nemusíte tedy vše řešit najednou – dům si můžete upravovat krok za krokem a přizpůsobovat ho přesně svému stylu a potřebám.
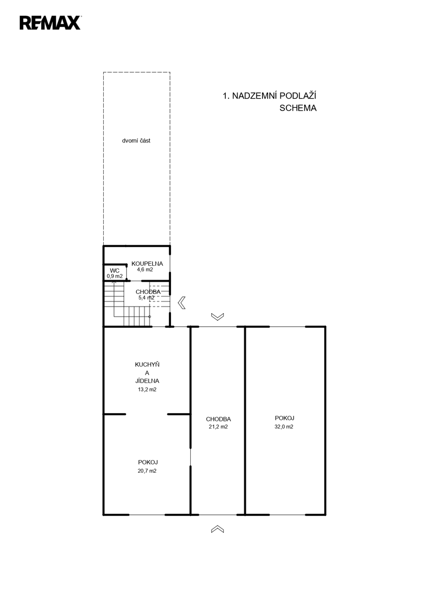
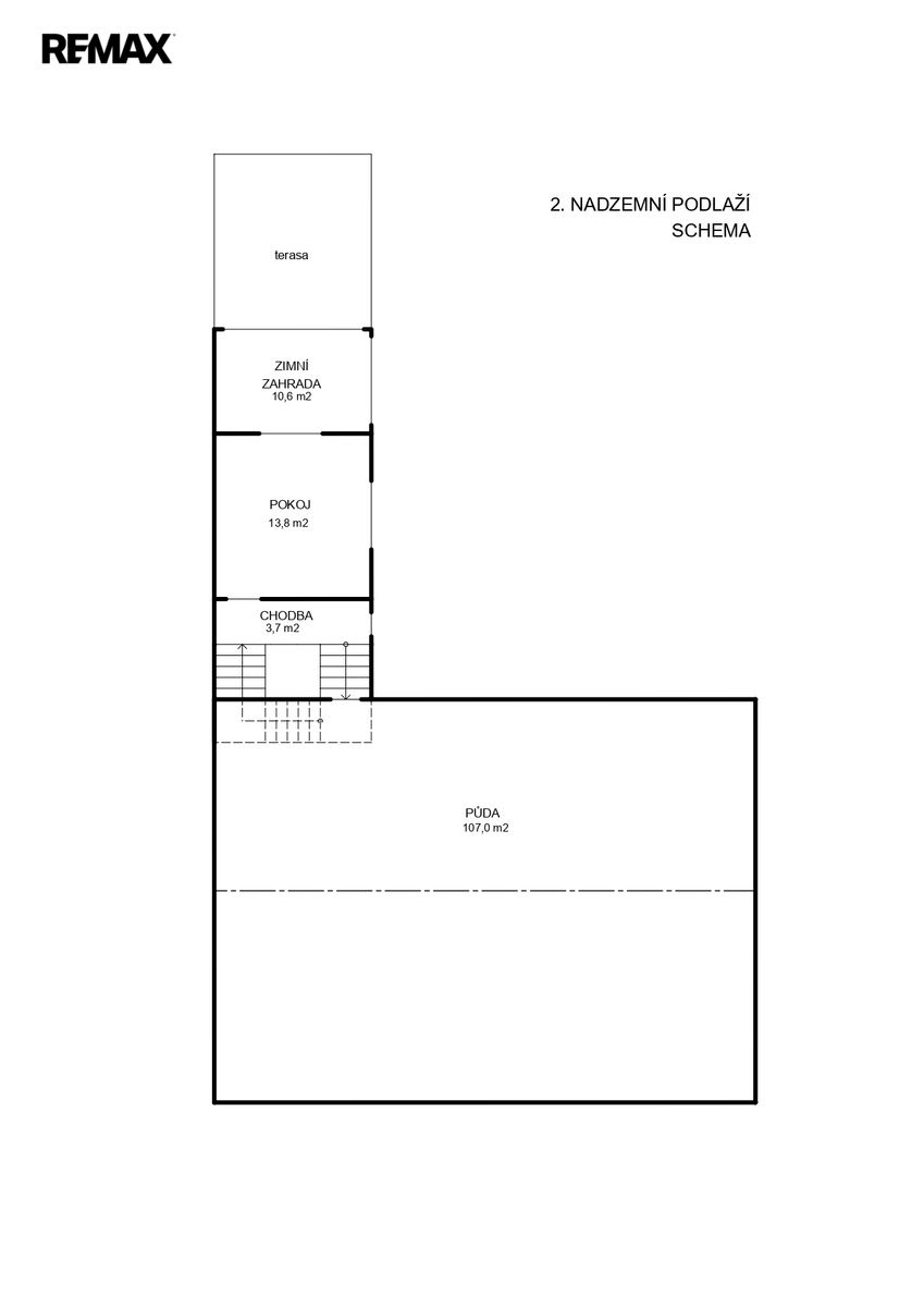
Velký potenciál nabízí také půdní prostor o výměře přibližně 107 m², který přímo vybízí k půdní vestavbě. Díky tomu může dům výrazně zvětšit obytnou plochu a přizpůsobit se i vícegeneračnímu bydlení.
Nemovitost tak může být nejen skvělým rodinným domovem, ale také zajímavou investiční příležitostí. Dispozice i velikost domu umožňují uvažovat o vybudování více bytových jednotek – například pro pronájem nebo kombinaci vlastního bydlení a investice.
Nechanice nabízí kompletní občanskou vybavenost – najdete zde školu, školku, lékaře, obchody, restaurace i další služby pro pohodlný každodenní život. Do Hradce Králové se navíc dostanete během pár minut autem nebo autobusem, takže máte město na dosah a přitom klidné bydlení mimo jeho ruch.
Pokud budete potřebovat pomoc s financováním koupě i následných úprav, rádi vám zajistíme výhodné řešení na míru.
Zaujala vás představa domu, který nabízí prostor, klid a velký potenciál? Ozvěte se a domluvme si osobní prohlídku. Rád vám dům ukážu.
| Cena: | 4 700 000 Kč |
| Číslo zakázky: | REALITYMIX-420304 |
Podrobné informace
- Poloha objektu: řadový
- Druh objektu: cihlová
- Stav objektu: dobrý
- Počet podlaží objektu: 3
- Typ domu: patrový
- Zastavěná plocha: 135 m²
- Plocha parcely: 1127 m²
- Užitná plocha: 135 m²
- Ostatní: Bezbarierový přístup
- Doprava: silnice, autobus
- Komunikace: asfaltová
- Elektřina: Elektro - 230 V, Elektro - 400 V
- Odpad: Kanalizace
- Energetická náročnost budovy: G - Mimořádně nehospodárná
- Energetický ukazatel podle vyhlášky: č. 264/2020 Sb.
Právní rádce
-
Detail
V tomto článku shrneme nejdůležitější věci, které byste si měli promyslet, pokud se chystáte prodat svou nemovitost a chcete, abyste s kupujícím nemusel následně řešit vzniklé problémy.
Jako prodávající nesete rizika spojená nejen se samotným obchodem, ale i se stavem nemovitosti v době prodeje a pro minimalizaci rizik, je dobré se zamyslet nad uvedenými oblastmi.
-
Detail
Realitní makléř má své nezastupitelné místo v realitním obchodu. Realitním makléřem nemyslím nevzdělané jelito, které absolvovalo dvoudenní školení a ví, jak se nahraje inzerát na inzertní portál.
Realitním makléřem, který se Vám skutečně vyplatí, je zkušený profesionál, který je schopen Vám dobře poradit jak prodat za co nejvíc a s nejmenším rizikem a hlavně je Vás schopen obratně provést celým realitním obchodem.