Pronájem bytu, 4+kk, 127 m²
Mokrá, Mokrá-Horákov, Brno-venkov
39 000 Kč (za měsíc)Pronájem bytu, 4+kk, 127 m²
Mokrá, Mokrá-Horákov, Brno-venkov
39 000 Kč
(za měsíc)
B
Úsporná
Pronájem domu 4+kk, Mokrá, Mokrá u Brna, 39.000 Kč/měs, 114 m2
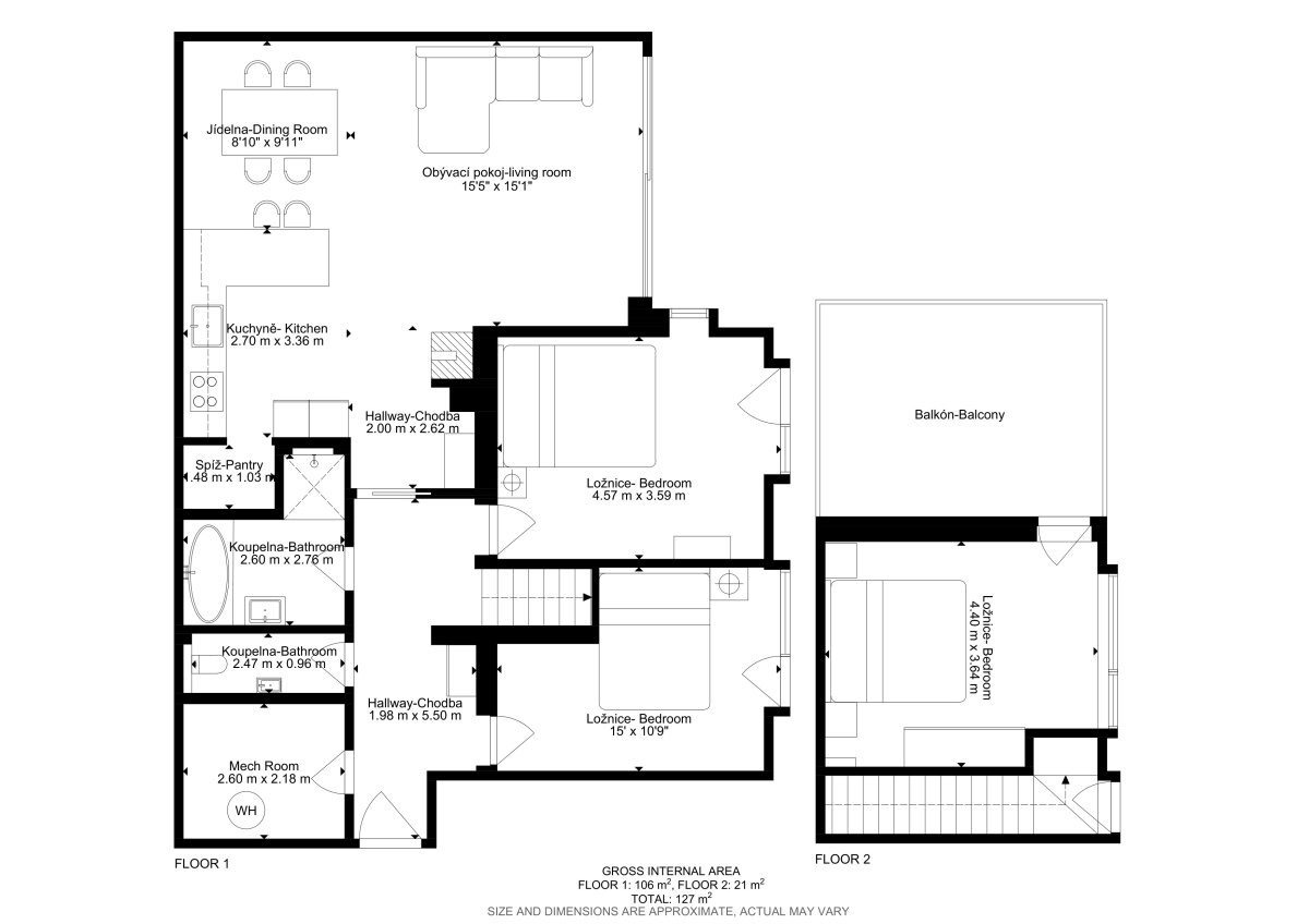
K dlouhodobému pronájmu nabízíme luxusní byt o celkové užitné ploše [127 m²] s prostornou terasou a zahradou o velikosti přibližně [250 m²]. Dům má dvě podlaží a k dispozici jsou také dvě parkovací stání přímo u nemovitosti. Nemovitost je částečně vybavená dle fotografií a nabízí velmi komfortní bydlení v klidném prostředí nedaleko Brna.
V prvním patře se nachází prostorný obývací pokoj propojený s kuchyňským koutem, jehož součástí je také sedací souprava. Kuchyňská linka je plně vybavena spotřebiči včetně myčky nádobí. Dále je zde koupelna s vanou a toaletou, technická místnost a dva samostatné pokoje vhodné například jako ložnice, dětský pokoj či pracovna. Ve druhém patře se nachází další pokoj a velká terasa, která poskytuje příjemné místo k relaxaci i posezení.
Dům se nachází v krásné a klidné lokalitě v blízkosti Brna s velmi dobrou dostupností do centra města. Autem se do centra dostanete přibližně za 15 minut, veřejnou dopravou (autobus a MHD) přibližně za 40 minut. V okolí je k dispozici základní občanská vybavenost, například pošta, mateřská škola, knihovna, koupaliště a další služby.
Dům je k dispozici od 1. 5. 2026.
Byt pronajímá Ideální nájemce – služba, se kterou budete bydlet bezstarostně a za férových podmínek. Když se něco přihodí, k dispozici jsou správci, kteří s vámi vše vyřeší. Pomůžeme s veškerou administrativou, s nastavením plateb a zajistíme vám speciální pojištění. Pojďte bydlet s námi!
V prvním patře se nachází prostorný obývací pokoj propojený s kuchyňským koutem, jehož součástí je také sedací souprava. Kuchyňská linka je plně vybavena spotřebiči včetně myčky nádobí. Dále je zde koupelna s vanou a toaletou, technická místnost a dva samostatné pokoje vhodné například jako ložnice, dětský pokoj či pracovna. Ve druhém patře se nachází další pokoj a velká terasa, která poskytuje příjemné místo k relaxaci i posezení.
Dům se nachází v krásné a klidné lokalitě v blízkosti Brna s velmi dobrou dostupností do centra města. Autem se do centra dostanete přibližně za 15 minut, veřejnou dopravou (autobus a MHD) přibližně za 40 minut. V okolí je k dispozici základní občanská vybavenost, například pošta, mateřská škola, knihovna, koupaliště a další služby.
Dům je k dispozici od 1. 5. 2026.
Byt pronajímá Ideální nájemce – služba, se kterou budete bydlet bezstarostně a za férových podmínek. Když se něco přihodí, k dispozici jsou správci, kteří s vámi vše vyřeší. Pomůžeme s veškerou administrativou, s nastavením plateb a zajistíme vám speciální pojištění. Pojďte bydlet s námi!
| Cena: | 39 000 Kč / (za měsíc) |
| Poznámka: | vratná jistota , náklady na bydlení 4727 Kč, poplatek za podnájem |
| Dispozice/podlahová plocha: | 4+kk/127 m² |
| Číslo zakázky: | REALITYMIX-6099 |
Podrobné informace
- Dispozice bytu: 4+kk
- Číslo podlaží v domě: 1
- Počet podlaží objektu: 2
- Celková podlahová plocha: 127 m²
- Druh objektu: cihlová
- Stav objektu: velmi dobrý
- Vlastnictví: osobní
- Umístění objektu: klidná část obce
- Elektřina: Elektro - 230 V
- Energetická náročnost budovy: B - Úsporná
Mapa
* Umístění na mapě je na základě GPS informací dodaných realitní kanceláří.
* Pozice na mapě je pouze orientační.