Prodej - dům/vila, 150 m²
Mikulášovice, Děčín
2 350 000 KčProdej - dům/vila, 150 m²
Mikulášovice, Děčín
Historický rodinný dům
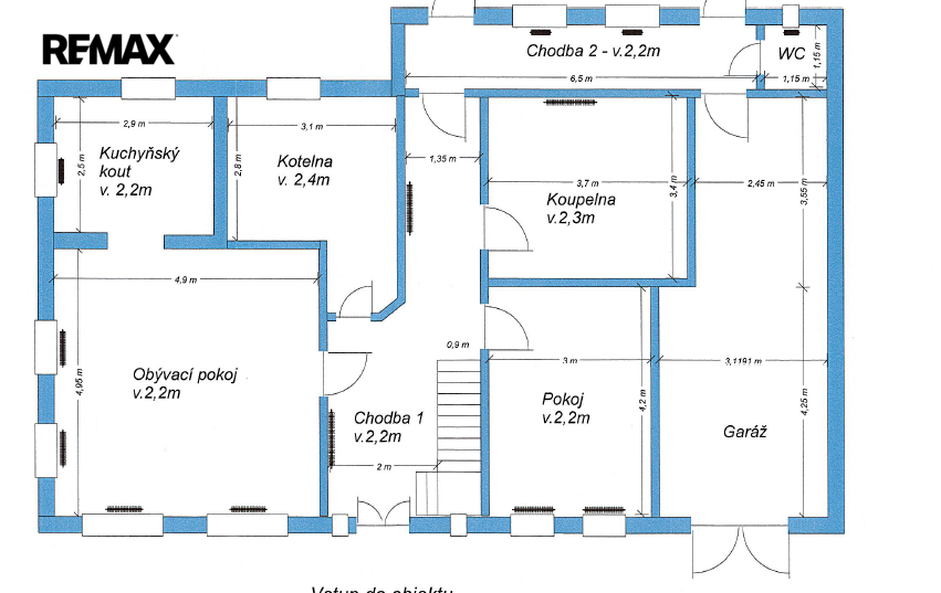
Celková podlahová plocha domu činí 217 m² a velkým benefitem jsou také krásné půdní prostory o výměře přibližně 140 m², které dávají možnost vybudovat další pokoje, pracovnu, ateliér nebo zázemí pro hosty – vše podle vlastních představ a potřeb nového majitele.
Na dům navazuje rovinatý, oplocený pozemek o velikosti 628 m², který je ideální pro rodinné využití, odpočinek na zahradě i drobné pěstování. Příjemné posezení nabízí nová terasa, praktickým bonusem je také garáž.
Dům svým uspořádáním a možnostmi úprav nabízí potenciál i pro dvougenerační bydlení, což může být zajímavým řešením pro širší rodinu, případně pro kombinaci bydlení a podnikání.
Současná dispozice přízemí po úpravách umožní komfortní bydlení ve dvou pokojích se samostatnou kuchyní, koupelnou, WC a technickou místností.
Je však potřeba počítat s tím, že interiér domu je v současné době určen k rozsáhlejší rekonstrukci. Právě to ale může být pro nového majitele velkou příležitostí vytvořit si bydlení přesně podle vlastního vkusu.
Nemovitost je napojena na elektřinu a veřejnou kanalizaci. Ohřev teplé vody zajišťuje elektrický bojler. Vytápění je aktuálně řešeno elektrickými přímotopy a lokálními kamny. Do budoucna bude pravděpodobně vhodné zvážit modernizaci způsobu vytápění dle preferencí nového majitele. Součástí domu je také vlastní studna s pitnou vodou, která přináší větší míru soběstačnosti. Výhodou do budoucna je i možnost kvalitního internetového připojení, což oceníte například při práci z domova.
Mikulášovicemi protéká Mikulášovický potok a samotné město s přibližně 2 000 obyvateli nabízí základní občanskou vybavenost pro běžný život – obchod, školu, školku i autobusovou dopravu, vše bez nutnosti dlouhého dojíždění. Okolní krajina vybízí k výletům, procházkám a aktivnímu odpočinku. V průběhu roku se zde konají také různé kulturní a společenské akce, koncerty a komunitní setkání, které dodávají místu příjemnou atmosféru.
Tato nemovitost je ideální pro někoho, kdo nehledá hotové řešení, ale dům s příběhem a prostorem pro vlastní realizaci.
Pokud hledáte místo s charakterem a potenciálem, právě tady může začít váš nový projekt nebo nový domov.
PENB: V současné době je uvedena energetická třída G (průkaz energetické náročnosti budovy se zpracovává). Prodávající si vyhrazuje právo vybrat kupujícího na základě jím zvolených kritérií.
| Cena: | 2 350 000 Kč |
| Číslo zakázky: | REALITYMIX-430344 |
Podrobné informace
- Poloha objektu: samostatný
- Druh objektu: smíšená
- Stav objektu: před rekonstrukcí
- Počet podlaží objektu: 2
- Typ domu: patrový
- Zastavěná plocha: 144 m²
- Plocha parcely: 620 m²
- Zahrada: 470 m²
- Užitná plocha: 150 m²
- Umístění objektu: klidná část obce
- Doprava: silnice, autobus
- Elektřina: Elektro - 230 V
- Telekomunikace: Telefon
- Odpad: Kanalizace
- Energetická náročnost budovy: G - Mimořádně nehospodárná
- Energetický ukazatel podle vyhlášky: č. 264/2020 Sb.
Právní rádce
-
Detail
V tomto článku shrneme nejdůležitější věci, které byste si měli promyslet, pokud se chystáte prodat svou nemovitost a chcete, abyste s kupujícím nemusel následně řešit vzniklé problémy.
Jako prodávající nesete rizika spojená nejen se samotným obchodem, ale i se stavem nemovitosti v době prodeje a pro minimalizaci rizik, je dobré se zamyslet nad uvedenými oblastmi.
-
Detail
Realitní makléř má své nezastupitelné místo v realitním obchodu. Realitním makléřem nemyslím nevzdělané jelito, které absolvovalo dvoudenní školení a ví, jak se nahraje inzerát na inzertní portál.
Realitním makléřem, který se Vám skutečně vyplatí, je zkušený profesionál, který je schopen Vám dobře poradit jak prodat za co nejvíc a s nejmenším rizikem a hlavně je Vás schopen obratně provést celým realitním obchodem.