Prodej - dům/vila, 246 m²
Na Vyhlídce, Měchenice, Praha-západ
20 900 000 KčProdej - dům/vila, 246 m²
Na Vyhlídce, Měchenice, Praha-západ
Prodej rodinného domu v Měchenicích u Davle
Nabízíme Vám k prodeji krásný rodinný dům, který se nachází ve stráni nad Vltavou ul. Na Vyhlídce II, v malebné lokalitě Měchenic u Davle. Tento dům, situovaný v naprosto klidné lokalitě, nabízí nádherný výhled do okolní krajiny, což z něj činí ideální místo pro rodinné bydlení nebo rekreaci.
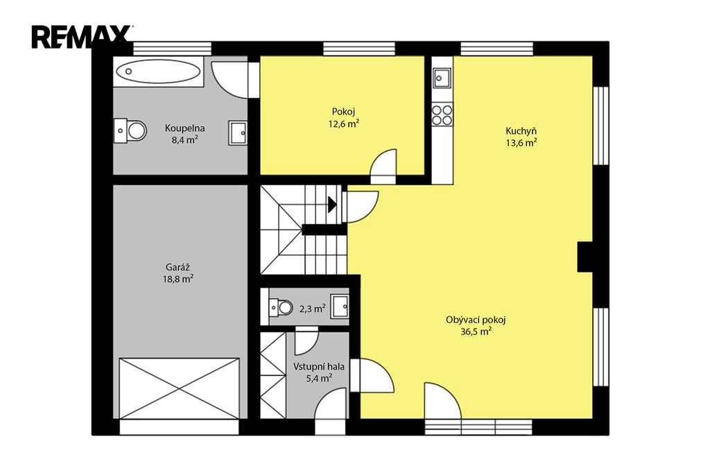
Základní informace:
• Plocha pozemku: 846 m2
• Zastavěná plocha: 128 m2
• Dispozice: 3 nadzemní podlaží
• Počet koupelen: 3
Tento dům je navržen tak, aby byl ideální pro dvougenerační bydlení, s dostatečným soukromím pro každou generaci.
1.NP – možnost samostatného bytu 2+ kk s koupelnou s WC
2. NP – hlavní vstup do domu, pokoj pro hosty s koupelnou s WC, další samostatné WC, velký obývací pokoj s kuchyní a krbem, z obývacího pokoje je přístup do zimní zahrady, která umožňuje užívat si příjemné chvíle v každém ročním období.
3.NP 4x pokoj ze kterých s je možný vstup na terasy, koupena s WC
Ohřev vody a topení zajišťuje tepelné čerpadlo, což přispívá k nízkým nákladům na energie.
Na pozemku se nachází vířivka a sauna, které zajišťují dokonalý relax a odpočinek po náročném dni. Na pozemku je montovaný domek na uskladnění spousty dalších věcí.
Součástí zahrady je letní kuchyň, která je ideálním místem pro vaření a přípravu jídel v teplých letních dnech. Tato kuchyň je perfektní pro rodinné grilování nebo posezení s přáteli,
Pokud hledáte místo, které nabízí jak komfortní bydlení, tak i únik do přírody, je tento dům v Měchenicích ideální volbou.
K domu je kompletní projektová dokumentace – možno vidět na vyžádání.
| Cena: | 20 900 000 Kč |
| Číslo zakázky: | REALITYMIX-410684 |
Podrobné informace
- Poloha objektu: samostatný
- Druh objektu: cihlová
- Stav objektu: velmi dobrý
- Počet podlaží objektu: 3
- Typ domu: patrový
- Zastavěná plocha: 128 m²
- Plocha parcely: 128 m²
- Zahrada: 724 m²
- Užitná plocha: 246 m²
- Umístění objektu: klidná část obce
- Doprava: vlak, silnice, autobus
- Komunikace: dlážděná
- Elektřina: Elektro - 230 V, Elektro - 400 V
- Voda: Voda - dálkový vodovod
- Telekomunikace: Telefon, Internet
- Odpad: Kanalizace
- Ostatní rozvody: Kabelové rozvody
- Energetická náročnost budovy: D - Méně úsporná
- Energetický ukazatel podle vyhlášky: č. 264/2020 Sb.
Právní rádce
-
Detail
V tomto článku shrneme nejdůležitější věci, které byste si měli promyslet, pokud se chystáte prodat svou nemovitost a chcete, abyste s kupujícím nemusel následně řešit vzniklé problémy.
Jako prodávající nesete rizika spojená nejen se samotným obchodem, ale i se stavem nemovitosti v době prodeje a pro minimalizaci rizik, je dobré se zamyslet nad uvedenými oblastmi.
-
Detail
Realitní makléř má své nezastupitelné místo v realitním obchodu. Realitním makléřem nemyslím nevzdělané jelito, které absolvovalo dvoudenní školení a ví, jak se nahraje inzerát na inzertní portál.
Realitním makléřem, který se Vám skutečně vyplatí, je zkušený profesionál, který je schopen Vám dobře poradit jak prodat za co nejvíc a s nejmenším rizikem a hlavně je Vás schopen obratně provést celým realitním obchodem.