Prodej - dům/vila, 91 m²
Malovice, Prachatice
7 921 000 KčProdej - dům/vila, 91 m²
Malovice, Prachatice
Prodej domu na klíč se zahradou, 3 park. stáními a terasou v Malovicích, 15 min od ČB
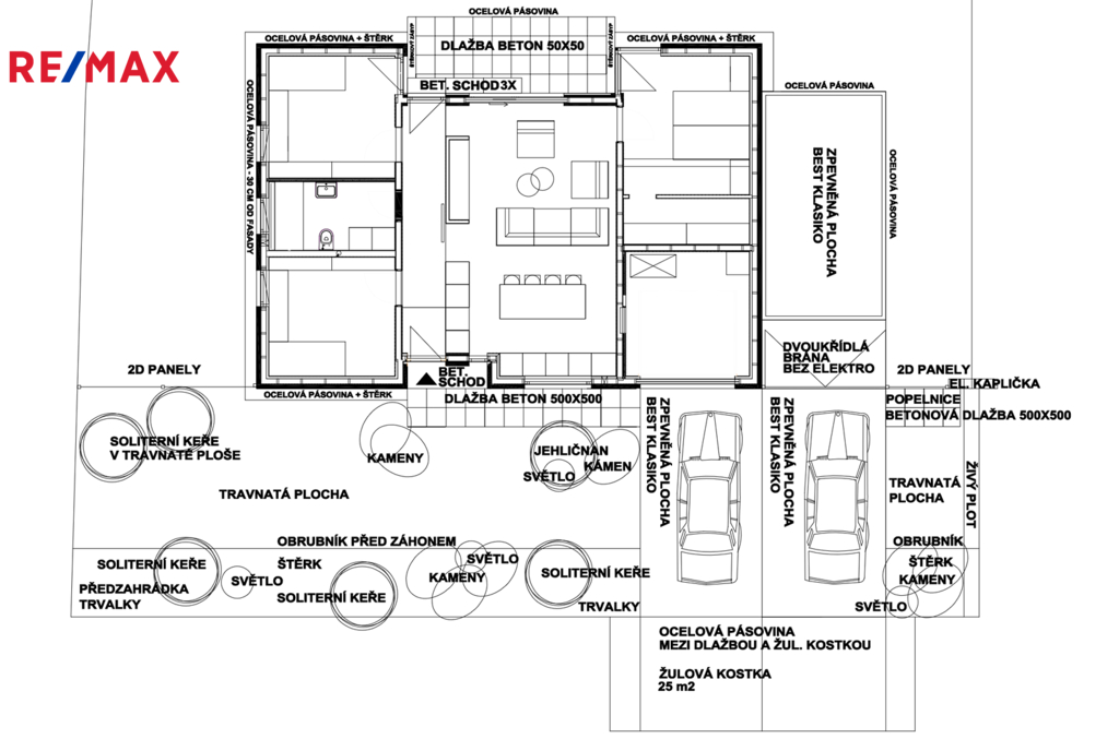
ARCHITEKTURA A DISPOZICE:
Každý domov by měl být místem, kde se člověk cítí dobře – a právě s tímto záměrem byly tyto domy navrženy. Dispozice je promyšlená tak, aby poskytovala dostatek soukromí každému členovi rodiny, ale zároveň vytvářela prostor pro společné chvíle.
Vstup je řešen zádveřím s čistící zónou a vestavěnou skříní. V levé části domu jsou 2 neprůchozí místnosti, mezi kterými se nachází koupelna. Srdcem domu je obývací pokoj propojený s kuchyní a jídelním koutem. Tento prostor navazuje na terasu se zahradou, která dává domovu další rozměr volnosti a propojení s přírodou. V pravé části domu se nachází ložnice s vlastní šatnou a vstupem na terasu.
Technická místnost se sekčními vraty má vstup z přední části zahrady. Dům disponuje pochozí půdou 10m2.
TECHNOLOGIE:
Domy jsou mimořádně úsporné s energetickým štítkem A, což zajišťuje nízké náklady na energie. Vytápění je řešeno tepelným čerpadlem vzduch/voda v kombinaci s podlahovým topením. Možnost instalace fotovoltaické elektrárny, která vám umožní vyrábět vlastní energii.
INTERIER:
Interiér domu je promyšlený do posledního detailu. Kvalitní laminátové podlahy, velkoformátová dlažba, moderní dveře. Součástí vybavení je moderní kuchyňská linka bez spotřebičů a zařízená koupelna – snížená vana, umyvadlo se skříňkou, kulaté podsvícené zrcadlo a WC, zabudované kolejnice na záclony a závěsy. El. příprava na předokenní žaluzie. Interiér domu se může lišit dle standardu developera, doporučujeme osobní prohlídku nemovitosti.
EXTERIER:
Exteriér domu působí harmonickým dojmem díky pečlivě promyšlené souhře detailů.
Vjezd tvořen ocelovou pásovinou a žulovými kostkami. 2 park. stání pokrytá betonovou dlažbou, předzahrádka ozdobená okrasnou zelení, solitérním stromem, kameny i osvětlením se soumrakovým systémem, vyhrazená plocha pro popelnice. 3. park. stání, které je zastřešené a vybavené třífázovou zásuvkou pro nabíjení elektromobilu. Tento prostor je chráněn dvoukřídlou bránou.
Přední část pozemku je chráněna antracitovými panely, zadní je oplocena svařovaným pletivem. Vstup do domu je řešen chodníkem a vstupní výklenek pískovaným betonovým schodem.
LOKALITA:
Dům se nachází v klidné obci Malovice, kde najdete školku, autobus. spojení, úřad, hřiště a krásnou přírodu s rybníky.
Dům leží na hlavní trase mezi ČB (15 min), Pískem (20 min) a Prahou.
Dům je již k nastěhování.
Přijďte a objevte, jaké to je žít v harmonii s přírodou a užívat si klid a pohodu Malovic.
| Cena: | 7 921 000 Kč |
| Poznámka: | DŮM NA KLÍČ - v ceně zahrnuté 3 parkovací stání (z toho jedno zastřešené), dokončený interiér, exteriér s okrasnou předzahrádkou a terasa |
| Datum k nastěhování: | 01.02.2025 |
| Číslo zakázky: | REALITYMIX-397664 |
Podrobné informace
- Poloha objektu: samostatný
- Druh objektu: dřevěná
- Stav objektu: novostavba
- Počet podlaží objektu: 1
- Typ domu: přízemní
- Zastavěná plocha: 120 m²
- Plocha parcely: 800 m²
- Užitná plocha: 91 m²
- Umístění objektu: okraj obce
- Doprava: silnice, autobus
- Komunikace: dlážděná
- Elektřina: Elektro - 230 V
- Voda: Voda - dálkový vodovod
- Odpad: Kanalizace
- Energetická náročnost budovy: A - Mimořádně úsporná
- Energetický ukazatel podle vyhlášky: č. 264/2020 Sb.
Právní rádce
-
Detail
V tomto článku shrneme nejdůležitější věci, které byste si měli promyslet, pokud se chystáte prodat svou nemovitost a chcete, abyste s kupujícím nemusel následně řešit vzniklé problémy.
Jako prodávající nesete rizika spojená nejen se samotným obchodem, ale i se stavem nemovitosti v době prodeje a pro minimalizaci rizik, je dobré se zamyslet nad uvedenými oblastmi.
-
Detail
Realitní makléř má své nezastupitelné místo v realitním obchodu. Realitním makléřem nemyslím nevzdělané jelito, které absolvovalo dvoudenní školení a ví, jak se nahraje inzerát na inzertní portál.
Realitním makléřem, který se Vám skutečně vyplatí, je zkušený profesionál, který je schopen Vám dobře poradit jak prodat za co nejvíc a s nejmenším rizikem a hlavně je Vás schopen obratně provést celým realitním obchodem.