Prodej - dům/vila, 197 m²
Na Kopaninách, Ludgeřovice, Opava
Cena na vyžádáníProdej - dům/vila, 197 m²
Na Kopaninách, Ludgeřovice, Opava
Prodej rodinného domu
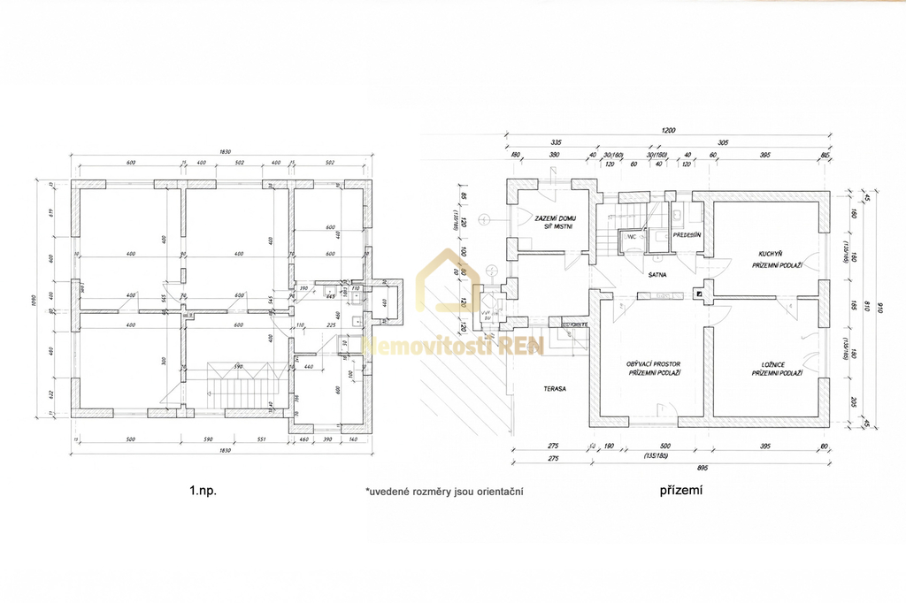
Dům je podsklepený a má dvě nadzemní podlaží. Dispozičně je řešen jako dvě samostatné bytové jednotky 3+1 , což umožňuje vícegenerační bydlení nebo kombinaci vlastního bydlení s pronájmem.
Dispozice:
1.PP – sklepní prostory
1.NP – byt 3+1 (83 m²)
2.NP – byt 3+1 (84 m²)
celková užitná plocha cca 197 m²
Dům je zděný, vytápění zajišťuje plynový kotel, ohřev vody bojlerem. Objekt je napojen na vodu, kanalizaci, plyn i elektřinu. Přístup je z veřejné komunikace.
Nemovitost je v původním, technicky zhoršeném stavu a je určena k rekonstrukci – ideální příležitost pro realizaci vlastních představ o bydlení.
Lokalita nabízí výbornou dostupnost do Ostravy, zastávka MHD cca 650 m, kompletní občanská vybavenost v docházkové vzdálenosti.
Pro více informací či sjednání prohlídky mě neváhejte kontaktovat.
Upozornění: Veškeré zveřejněné údaje obsažené v tomto inzerátu mají pouze informativní charakter a nepředstavují nabídku ve smyslu § 1731 nebo § 1732 občanského zákoníku ani veřejný příslib podle § 1733 občanského zákoníku.
| Cena: | Cena na vyžádání |
| Poznámka: | Cena k jednání |
| Číslo zakázky: | REALITYMIX-0019 |
Podrobné informace
- Poloha objektu: samostatný
- Druh objektu: cihlová
- Stav objektu: velmi dobrý
- Počet podlaží objektu: 3
- Typ domu: patrový
- Zastavěná plocha: 251 m²
- Plocha parcely: 395 m²
- Zahrada: 144 m²
- Užitná plocha: 197 m²
- Sklep: 30 m²
- Umístění objektu: klidná část obce
- Doprava: silnice, MHD, autobus
- Komunikace: asfaltová
- Elektřina: Elektro - 230 V
- Voda: Zdroj pro celý objekt
- Plyn: Plynovod
- Odpad: Kanalizace
- Energetická náročnost budovy: G - Mimořádně nehospodárná
- Energetický ukazatel podle vyhlášky: č. 264/2020 Sb.
Právní rádce
-
Detail
V tomto článku shrneme nejdůležitější věci, které byste si měli promyslet, pokud se chystáte prodat svou nemovitost a chcete, abyste s kupujícím nemusel následně řešit vzniklé problémy.
Jako prodávající nesete rizika spojená nejen se samotným obchodem, ale i se stavem nemovitosti v době prodeje a pro minimalizaci rizik, je dobré se zamyslet nad uvedenými oblastmi.
-
Detail
Realitní makléř má své nezastupitelné místo v realitním obchodu. Realitním makléřem nemyslím nevzdělané jelito, které absolvovalo dvoudenní školení a ví, jak se nahraje inzerát na inzertní portál.
Realitním makléřem, který se Vám skutečně vyplatí, je zkušený profesionál, který je schopen Vám dobře poradit jak prodat za co nejvíc a s nejmenším rizikem a hlavně je Vás schopen obratně provést celým realitním obchodem.