Prodej bytu, 2+1, 69 m²
Vrchlického, Předměstí, Litoměřice
4 450 000 KčProdej bytu, 2+1, 69 m²
Vrchlického, Předměstí, Litoměřice
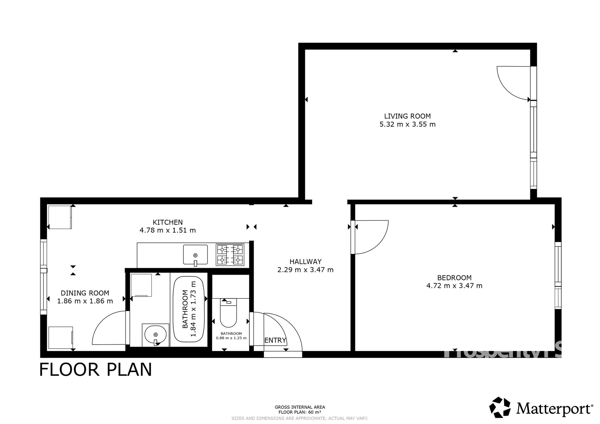
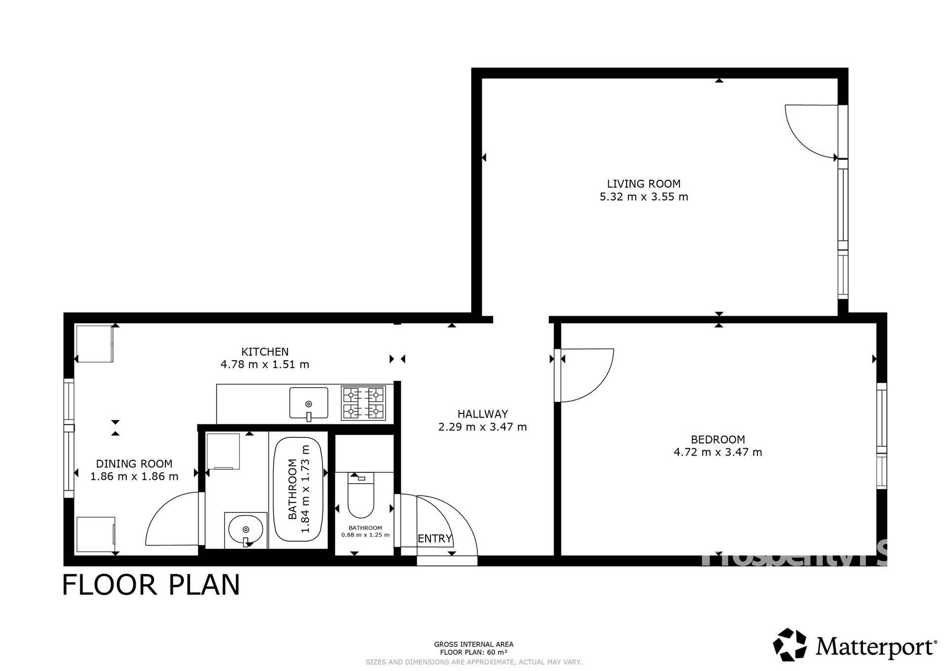
Prodej bytu 2+1, 64 m², Litoměřice - Předměstí
Byt prošel rekonstrukcí a nabízí praktické a funkční řešení dispozice. Velkou výhodou je zděné jádro, oddělená toaleta a koupelna, což zvyšuje komfort každodenního bydlení. Obývací pokoj je prostorný a díky velkým oknům velmi světlý, s přímým vstupem na lodžii, která poskytuje příjemné místo k odpočinku.
Další místnosti jsou dobře využitelné jak pro rodinné bydlení, tak i jako pracovna či dětský pokoj. Byt působí vzdušně a udržovaně, připravený k okamžitému nastěhování bez nutnosti dalších větších investic.
Velkým benefitem jsou nadstandardní úložné prostory – k dispozici je sklepní kóje a zároveň další úložný prostor v suterénu domu. Praktické je také umístění úložných prostor přímo na stejném podlaží jako byt.
Dům je udržovaný a nachází se v klidné lokalitě s dostatkem zeleně. V okolí najdete kompletní občanskou vybavenost – školy, školky, sportoviště i obchody. Výhodou je také pěší dostupnost historického centra Litoměřic během několika minut.
Měsíční náklady na provoz bytu činí přibližně 5 100 Kč dle předpisu .
Tato nemovitost je ideální jak pro vlastní bydlení, tak i jako investiční příležitost díky kombinaci dispozice, stavu a lokality.
K této nabídce máme připravenou kompletní dokumentaci, kterou vám rádi představíme ještě před prohlídkou.
Navíc se můžete projít bytem pomocí virtuální prohlídky z pohodlí vašeho domova.
Kontaktujte nás pro sjednání termínu prohlídky.
| Cena: | 4 450 000 Kč |
| Dispozice/podlahová plocha: | 2+1/69 m² |
| Číslo zakázky: | REALITYMIX-100595 |
Podrobné informace
- Dispozice bytu: 2+1
- Číslo podlaží v domě: 2
- Počet podlaží objektu: 5
- Celková podlahová plocha: 69 m²
- Druh objektu: panelová
- Stav objektu: velmi dobrý
- Vlastnictví: osobní
- Umístění objektu: sídliště
- Doprava: vlak, dálnice, silnice, MHD, autobus
- Elektřina: Elektro - 230 V
- Voda: Voda - dálkový vodovod
- Telekomunikace: Internet
- Plyn: Plynovod
- Topení: Ústřední - dálkové
- Energetická náročnost budovy: D - Méně úsporná
- Ukazatel energetické náročnosti budovy: 130 kWh/m²
- Energetický ukazatel podle vyhlášky: č. 264/2020 Sb.
Právní rádce
-
Detail
V tomto článku shrneme nejdůležitější věci, které byste si měli promyslet, pokud se chystáte prodat svou nemovitost a chcete, abyste s kupujícím nemusel následně řešit vzniklé problémy.
Jako prodávající nesete rizika spojená nejen se samotným obchodem, ale i se stavem nemovitosti v době prodeje a pro minimalizaci rizik, je dobré se zamyslet nad uvedenými oblastmi.
-
Detail
Realitní makléř má své nezastupitelné místo v realitním obchodu. Realitním makléřem nemyslím nevzdělané jelito, které absolvovalo dvoudenní školení a ví, jak se nahraje inzerát na inzertní portál.
Realitním makléřem, který se Vám skutečně vyplatí, je zkušený profesionál, který je schopen Vám dobře poradit jak prodat za co nejvíc a s nejmenším rizikem a hlavně je Vás schopen obratně provést celým realitním obchodem.