Prodej - dům/vila, 60 m²
Lipník, Mladá Boleslav
9 900 000 KčProdej - dům/vila, 60 m²
Lipník, Mladá Boleslav
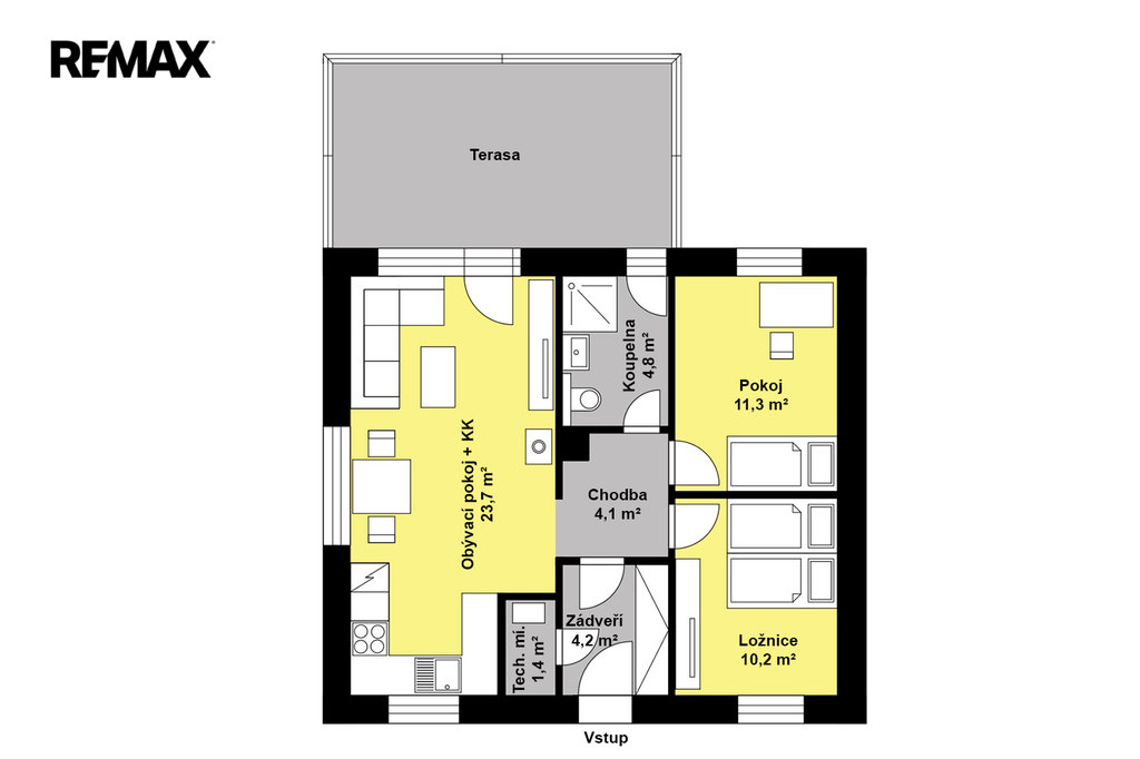
Prodej domu 3+kk se zastavěnou plochou 78 m2 na pozemku 862 m2 v obci Lipník
Dům je řešen jako přízemní s dispozicí 3+kk. Zastavěná plocha činí 78 m² a celková výměra pozemku je 862 m² včetně zastavěné plochy, což poskytuje dostatek prostoru pro zahradu i relaxaci.
Dominantou domu je světlý obývací pokoj s kuchyňským koutem, kde se nachází krb na tuhá paliva, který dodává interiéru útulnou atmosféru. Z obývací části je přímý vstup do zimní zahrady.
Velkým benefitem je zastřešená terasa řešená jako zimní zahrada s posuvným systémem – prostor lze kompletně uzavřít nebo otevřít a propojit se zahradou. Díky tomu ji můžete využívat po celý rok.
Na zahradě se nachází také stylová pergola ve stejném designu, která nabízí další příjemné místo pro posezení nebo relaxaci.
Vytápění domu je řešeno elektricky v kombinaci s tepelným čerpadlem vzduch–vzduch (klimatizační jednotky), které slouží jak k vytápění, tak i k chlazení v letních měsících. V koupelně je k dispozici elektrický žebřík pro zvýšení komfortu.
Součástí nemovitosti jsou zpevněné plochy pro parkování přímo na pozemku.
Dům je novostavba, takže vás nečekají žádné zásadní investice – stačí se nastěhovat a bydlet. Prodávající si vyhrazuje právo vybrat kupujícího na základě jím zvolených kritérií.
| Cena: | 9 900 000 Kč |
| Poznámka: | cena včetně provize a právního servisu |
| Datum k nastěhování: | 16.04.2026 |
| Číslo zakázky: | REALITYMIX-437335 |
Podrobné informace
- Poloha objektu: samostatný
- Druh objektu: cihlová
- Stav objektu: novostavba
- Počet podlaží objektu: 1
- Typ domu: přízemní
- Zastavěná plocha: 78 m²
- Plocha parcely: 78 m²
- Užitná plocha: 60 m²
- Umístění objektu: okraj obce
- Doprava: dálnice, MHD, autobus
- Elektřina: Elektro - 230 V, Elektro - 400 V
- Voda: Zdroj pro celý objekt
- Plyn: Plynovod
- Odpad: Kanalizace
- Energetická náročnost budovy: C - Úsporná
- Energetický ukazatel podle vyhlášky: č. 264/2020 Sb.
Právní rádce
-
Detail
V tomto článku shrneme nejdůležitější věci, které byste si měli promyslet, pokud se chystáte prodat svou nemovitost a chcete, abyste s kupujícím nemusel následně řešit vzniklé problémy.
Jako prodávající nesete rizika spojená nejen se samotným obchodem, ale i se stavem nemovitosti v době prodeje a pro minimalizaci rizik, je dobré se zamyslet nad uvedenými oblastmi.
-
Detail
Realitní makléř má své nezastupitelné místo v realitním obchodu. Realitním makléřem nemyslím nevzdělané jelito, které absolvovalo dvoudenní školení a ví, jak se nahraje inzerát na inzertní portál.
Realitním makléřem, který se Vám skutečně vyplatí, je zkušený profesionál, který je schopen Vám dobře poradit jak prodat za co nejvíc a s nejmenším rizikem a hlavně je Vás schopen obratně provést celým realitním obchodem.