Prodej - chata/rekreační objekt, 62 m²
Lašovice, Rakovník
2 698 000 KčProdej - chata/rekreační objekt, 62 m²
Lašovice, Rakovník
Prodej chalupy 62 m and sup2;, pozemek 417 m and sup2; Lašovice
Dům z roku 1919 je před rekonstrukcí a právě to je jeho velká příležitost. Můžete si ho upravit bez kompromisů.
Co je hotové a co Vám ušetří starosti:
- cca před 8 lety proběhla rekonstrukce střechy,
- vyměněn kotel na tuhá paliva,
- instalován elektrický kombinovaný bojler,
- nové plastové vchodové dveře.
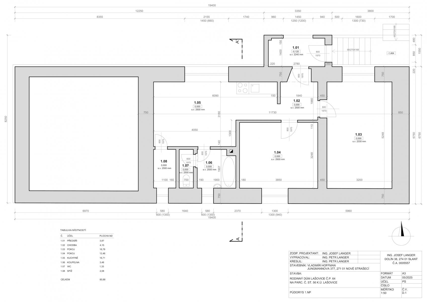
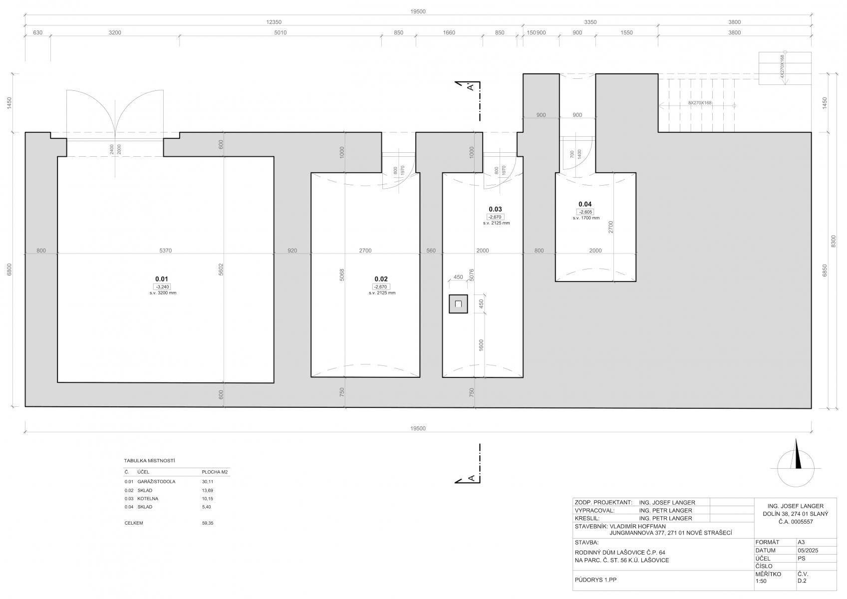
Dům je napojen na elektřinu, vodovod a jímku. Elektroinstalace je původní, v hliníku. Obytná plocha činí 62 m and sup2;, k tomu dva sklepy o celkové výměře 27 m and sup2; a garáž 30 m and sup2;. Pokud budete chtít, lze dům poměrně snadno rozšířit o další místnosti.
Pozemek má 417 m and sup2; a kolem něj navazuje obecní plocha 337 m and sup2;, kterou lze bez problémů užívat ideální například pro zahradu, posezení, nebo prostor pro děti.
Lašovice leží ve Středočeském kraji, jen pár minut od města Rakovník a na dosah ikonického hradu Křivoklát. Obec se nachází na západním okraji CHKO Křivoklátsko, v malebném údolí Lašovického potoka. S pouhými 134 obyvateli nabízí skutečný klid a soukromí.
Možné financování:
Financování úvěrem je možné, s jeho vyřízením Vám rád pomohu.
Pokud hledáte nemovitost s potenciálem, která se může proměnit přesně podle Vašich představ, tenhle dům stojí za vidění.
Těším se na osobní setkání na prohlídce.
| Cena: | 2 698 000 Kč |
| Poznámka: | včetně provize a právního servisu |
| Číslo zakázky: | REALITYMIX-5 |
Podrobné informace
- Zastavěná plocha: 144 m²
- Užitná plocha: 62 m²
- Plocha parcely: 417 m²
- Druh objektu: smíšená
- Stav objektu: před rekonstrukcí
- Počet podlaží objektu: 1
- Umístění objektu: klidná část obce
- Doprava: vlak, silnice, autobus
- Elektřina: Elektro - 400 V
- Topení: Ústřední - tuhá paliva
- Odpad: Kanalizace
- Energetická náročnost budovy: G - Mimořádně nehospodárná
Právní rádce
-
Detail
V tomto článku shrneme nejdůležitější věci, které byste si měli promyslet, pokud se chystáte prodat svou nemovitost a chcete, abyste s kupujícím nemusel následně řešit vzniklé problémy.
Jako prodávající nesete rizika spojená nejen se samotným obchodem, ale i se stavem nemovitosti v době prodeje a pro minimalizaci rizik, je dobré se zamyslet nad uvedenými oblastmi.
-
Detail
Realitní makléř má své nezastupitelné místo v realitním obchodu. Realitním makléřem nemyslím nevzdělané jelito, které absolvovalo dvoudenní školení a ví, jak se nahraje inzerát na inzertní portál.
Realitním makléřem, který se Vám skutečně vyplatí, je zkušený profesionál, který je schopen Vám dobře poradit jak prodat za co nejvíc a s nejmenším rizikem a hlavně je Vás schopen obratně provést celým realitním obchodem.