Prodej - pozemek pro bydlení, 1 381 m²
Jihlava
3 300 Kč (za m2)Prodej - pozemek pro bydlení, 1 381 m²
Jihlava
Prodej stavebního pozemku 1381 m2, Kozlov
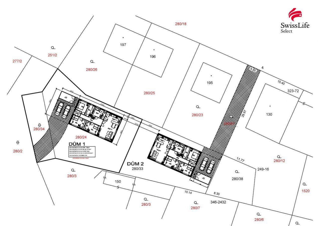
Nabízíme k prodeji rovinatý pozemek v obci Kozlov u Jihlavy. Jedná se o velmi atraktivní lokalitu, která kombinuje klid venkovského prostředí s výbornou dostupností do krajského města Jihlava, kam se pohodlně dostanete během několika minut jízdy. To samé platí i o nájezdu na dálnici D1. Pozemek se nachází v obci s funkčním zázemím najdete zde mateřskou a základní školu, hospodu, obchod nebo sportovní areál.
Veškeré inženýrské sítě se nacházejí na hranici pozemku, což výrazně usnadňuje napojení a snižuje náklady na budoucí výstavbu. Samotný pozemek je rovinatý, s kvalitní půdou a nabízí ideální podmínky pro výstavbu rodinného domu. Možností je také na již rozděleném pozemku postavit dva rodinné domy s tím, že každý by měl svoje napojení na sítě a svůj příjezd, jak je patrno z mapky a přiložené studie.
Na pozemku je k dispozici dřevěná kůlna k uložení nářadí, což se na stavbě vždy hodí.
Kozlov je vyhledávanou lokalitou díky své poloze, příjemné atmosféře a okolní přírodě. Místo je ideální pro ty, kteří hledají klidné bydlení s veškerým komfortem a rychlým spojením do města.
Pro více informací nebo sjednání prohlídky nás neváhejte kontaktovat. Rádi Vám poskytneme veškeré detaily a pomůžeme i s kompletním právním a finančním servisem.
| Cena: | 3 300 Kč / (za m2) |
| Plocha: | 1381 m² |
| Číslo zakázky: | REALITYMIX-24653 |
Podrobné informace
- Celková plocha: 1381 m²
- Druh pozemku: pro bydlení
Právní rádce
-
Detail
V tomto článku shrneme nejdůležitější věci, které byste si měli promyslet, pokud se chystáte prodat svou nemovitost a chcete, abyste s kupujícím nemusel následně řešit vzniklé problémy.
Jako prodávající nesete rizika spojená nejen se samotným obchodem, ale i se stavem nemovitosti v době prodeje a pro minimalizaci rizik, je dobré se zamyslet nad uvedenými oblastmi.
-
Detail
Realitní makléř má své nezastupitelné místo v realitním obchodu. Realitním makléřem nemyslím nevzdělané jelito, které absolvovalo dvoudenní školení a ví, jak se nahraje inzerát na inzertní portál.
Realitním makléřem, který se Vám skutečně vyplatí, je zkušený profesionál, který je schopen Vám dobře poradit jak prodat za co nejvíc a s nejmenším rizikem a hlavně je Vás schopen obratně provést celým realitním obchodem.