Prodej - dům/vila, 250 m²
Pražská, Kostelec nad Černými lesy, Praha-východ
6 950 000 KčProdej - dům/vila, 250 m²
Pražská, Kostelec nad Černými lesy, Praha-východ
Prodej komerčního objektu Kostelec nad Černými lesy
V přízemí se nyní nachází večerka, zadní část přízemí je momentálně nevyužívána – lze využít jako skladovací prostor, nebo případně zvětšit a rozšířit stávající prodejnu. V horní části domu se nachází dvě bytové jednotky – jedna je obývána majiteli večerky, druhá bytová jednotka je prázdná. Každý z bytů má samostatný odběr elektřiny i samostatný vchod. V půdních prostorech se nachází bývalý ateliér a půda. Dům je podsklepený, ve sklepě je vlastní studna. Zaparkovat lze bezproblémově za domem.
Objekt vyžaduje rekonstrukci včetně střechy. Budoucího majitele čekají stavební úpravy, které se však rychle mohou díky potenciálu domu zúročit.
Objekt je napojen na kanalizaci a obecní vodovod.
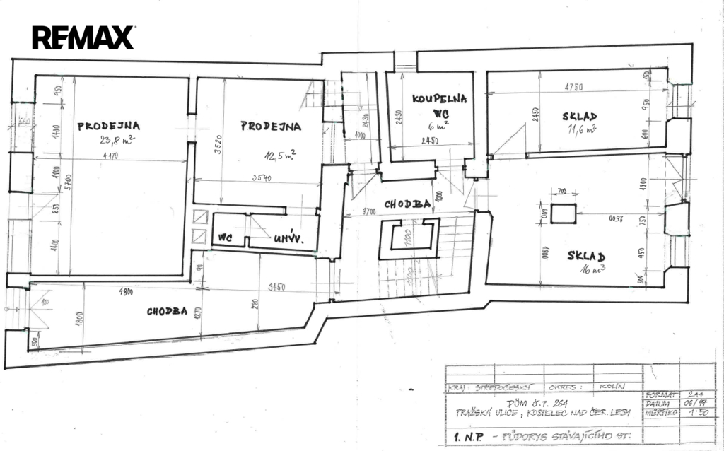
Dispoziční řešení:
Přízemí: Prodejna, chodba, sklad k prodejně, sociální zařízení, koupelna
1. Patro Byt 1: Kuchyň, obývací pokoj, pokoj, ložnice
Byt 2: Kuchyň, obývací pokoj, pokoj, koupelna
+ sklep a půdní prostory. Výměra vnitřních prostor je orientační, překreslené půdorysy budou do inzerátu ještě dodatečně vloženy.
Lokalita Kostelce nad Černými lesy je vyhledávaná pro svou plnou občanskou vybavenost, která zahrnuje školy, obchody, restaurace a další služby. Díky skvělému dopravnímu spojení do Prahy, Kolína a Kutné Hory je tato nemovitost ideální pro podnikatelské záměry s možností vlastního bydlení.
Nemovitost není zatížena hypotečním úvěrem ani jiným právním omezením.
V případě zájmu o prohlídku mě neváhejte kontaktovat. Prodávající si vyhrazuje právo vybrat kupujícího na základě jím zvolených kritérií.
| Cena: | 6 950 000 Kč |
| Datum k nastěhování: | 03.06.2025 |
| Číslo zakázky: | REALITYMIX-420689 |
Podrobné informace
- Poloha objektu: řadový
- Druh objektu: cihlová
- Stav objektu: před rekonstrukcí
- Počet podlaží objektu: 1
- Typ domu: přízemní
- Zastavěná plocha: 156 m²
- Plocha parcely: 156 m²
- Užitná plocha: 250 m²
- Umístění objektu: centrum obce
- Elektřina: Elektro - 230 V
- Odpad: Kanalizace
- Energetická náročnost budovy: G - Mimořádně nehospodárná
- Energetický ukazatel podle vyhlášky: č. 264/2020 Sb.
Právní rádce
-
Detail
V tomto článku shrneme nejdůležitější věci, které byste si měli promyslet, pokud se chystáte prodat svou nemovitost a chcete, abyste s kupujícím nemusel následně řešit vzniklé problémy.
Jako prodávající nesete rizika spojená nejen se samotným obchodem, ale i se stavem nemovitosti v době prodeje a pro minimalizaci rizik, je dobré se zamyslet nad uvedenými oblastmi.
-
Detail
Realitní makléř má své nezastupitelné místo v realitním obchodu. Realitním makléřem nemyslím nevzdělané jelito, které absolvovalo dvoudenní školení a ví, jak se nahraje inzerát na inzertní portál.
Realitním makléřem, který se Vám skutečně vyplatí, je zkušený profesionál, který je schopen Vám dobře poradit jak prodat za co nejvíc a s nejmenším rizikem a hlavně je Vás schopen obratně provést celým realitním obchodem.
Mapa
Podobné nemovitosti
Prodej - dům/vila, 300 m²
Vlkančice, Praha-východ
5 990 000 Kč
Prodej - dům/vila, 141 m²
Krátká, Třemblat, Praha-východ
7 290 000 Kč
Prodej - dům/vila, 90 m²
Černokostelecká, Černé Voděrady, Praha-východ
6 300 000 Kč
Prodej - dům/vila, 149 m²
Na Krásné vyhlídce, Kostelec nad Černými lesy, Praha-východ
6 900 000 Kč