Prodej - obchodní prostor, 250 m²
Pražská, Kostelec nad Černými lesy, Praha-východ
6 950 000 KčProdej - obchodní prostor, 250 m²
Pražská, Kostelec nad Černými lesy, Praha-východ
Prodej komerčního objektu Kostelec nad Černými lesy
V přízemí se nyní nachází večerka, zadní část přízemí je momentálně nevyužívána – lze využít jako skladovací prostor, nebo případně zvětšit a rozšířit stávající prodejnu. V horní části domu se nachází dvě bytové jednotky – jedna je obývána majiteli večerky, druhá bytová jednotka je prázdná. Každý z bytů má samostatný odběr elektřiny i samostatný vchod. V půdních prostorech se nachází bývalý ateliér a půda. Dům je podsklepený, ve sklepě je vlastní studna. Zaparkovat lze bezproblémově za domem.
Objekt vyžaduje rekonstrukci včetně střechy. Budoucího majitele čekají stavební úpravy, které se však rychle mohou díky potenciálu domu zúročit.
Objekt je napojen na kanalizaci a obecní vodovod.
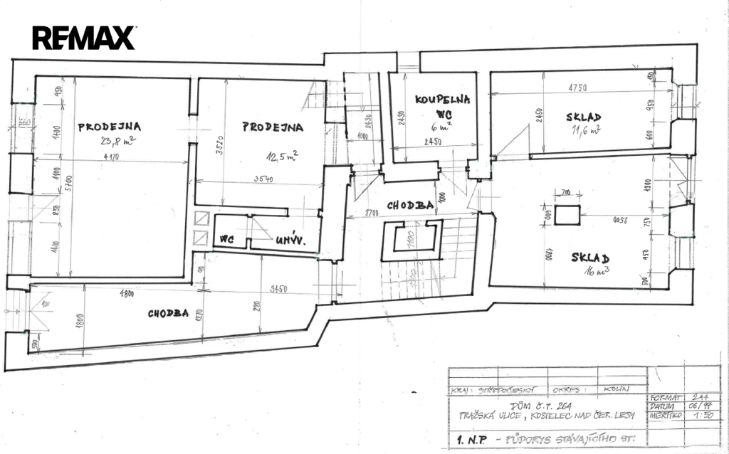
Dispoziční řešení:
Přízemí: Prodejna, chodba, sklad k prodejně, sociální zařízení, koupelna
1. Patro Byt 1: Kuchyň, obývací pokoj, pokoj, ložnice
Byt 2: Kuchyň, obývací pokoj, pokoj, koupelna
+ sklep a půdní prostory. Výměra vnitřních prostor je orientační, překreslené půdorysy budou do inzerátu ještě dodatečně vloženy.
Lokalita Kostelce nad Černými lesy je vyhledávaná pro svou plnou občanskou vybavenost, která zahrnuje školy, obchody, restaurace a další služby. Díky skvělému dopravnímu spojení do Prahy, Kolína a Kutné Hory je tato nemovitost ideální pro podnikatelské záměry s možností vlastního bydlení.
Nemovitost není zatížena hypotečním úvěrem ani jiným právním omezením.
V případě zájmu o prohlídku mě neváhejte kontaktovat. Prodávající si vyhrazuje právo vybrat kupujícího na základě jím zvolených kritérií.
| Cena: | 6 950 000 Kč |
| Datum k nastěhování: | 03.06.2025 |
| Číslo zakázky: | REALITYMIX-415768 |
Podrobné informace
- Plocha kanceláří: 250 m²
- Plocha parcely: 156 m²
- Druh objektu: cihlová
- Stav objektu: před rekonstrukcí
- Druh prostor: Obchodní
- Umístění objektu: centrum obce
- Elektřina: Elektro - 230 V
- Odpad: Kanalizace
- Energetická náročnost budovy: G - Mimořádně nehospodárná
- Energetický ukazatel podle vyhlášky: č. 264/2020 Sb.
Právní rádce
-
Detail
V tomto článku shrneme nejdůležitější věci, které byste si měli promyslet, pokud se chystáte prodat svou nemovitost a chcete, abyste s kupujícím nemusel následně řešit vzniklé problémy.
Jako prodávající nesete rizika spojená nejen se samotným obchodem, ale i se stavem nemovitosti v době prodeje a pro minimalizaci rizik, je dobré se zamyslet nad uvedenými oblastmi.
-
Detail
Realitní makléř má své nezastupitelné místo v realitním obchodu. Realitním makléřem nemyslím nevzdělané jelito, které absolvovalo dvoudenní školení a ví, jak se nahraje inzerát na inzertní portál.
Realitním makléřem, který se Vám skutečně vyplatí, je zkušený profesionál, který je schopen Vám dobře poradit jak prodat za co nejvíc a s nejmenším rizikem a hlavně je Vás schopen obratně provést celým realitním obchodem.
Mapa
Podobné nemovitosti
Prodej - skladovací prostor, 726 m²
Kolodějská, Stupice, Praha-východ
Cena na vyžádání
Prodej - jiné, 237 m²
Glücksmannova, Úvaly, Praha-východ
19 990 000 Kč
Prodej - obchodní prostor, 110 m²
V Zahradách, Světice, Praha-východ
30 000 000 Kč
Prodej - výrobní prostor, 2 325 m²
Praha-východ
69 500 000 Kč