Prodej - dům/vila, 157 m²
Ládví, Praha-východ
26 900 000 KčProdej - dům/vila, 157 m²
Ládví, Praha-východ
Prodej letní vily v Kamenici-Ládví
CO VÁS ZAUJME NA 1. POHLED
• Historická vila z roku 1938 s dochovanými architektonickými prvky a pestrou historií – v roce 1966 ji obývala osobnost zařazená mezi 100 nejvlivnějších lidí 20. století dle časopisu Time
• Pozemek 5 174 m² – vzrostlý lesopark, výjimečné soukromí, klid
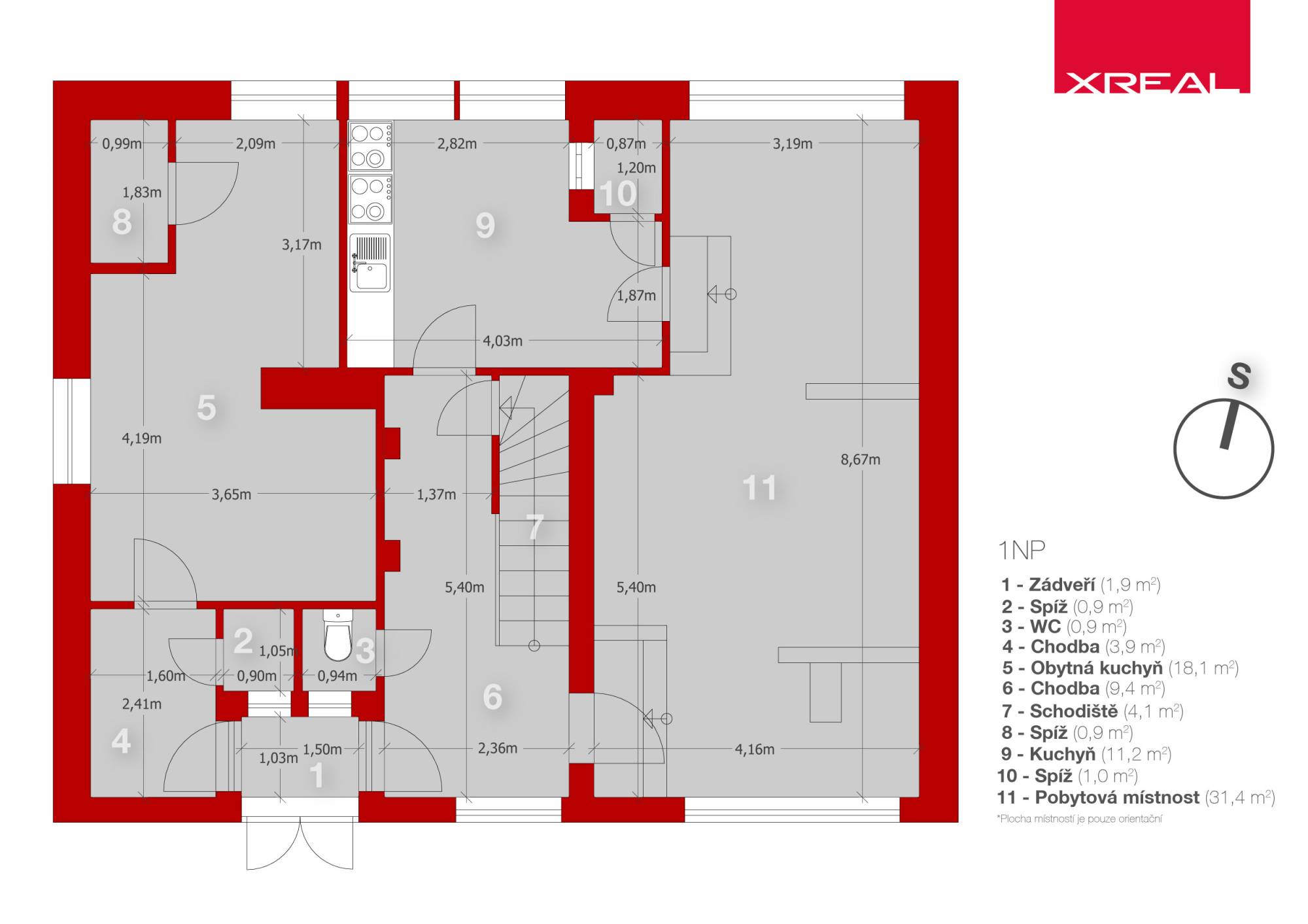
• Užitná plocha 157 m² + terasa 41 m², samostatná garáž se skladem
• Jižní orientace, přirozené světlo po celý den
POLOHA
• 25,5 km na metro Opatov – cca 23 minut jízdy
• Golf Štiřín: 6 minut, Pyšely: 9 minut
• Lesy, rybníky, čistý vzduch – krajina Josefa Lady
POTENCIÁL
Dům je před rekonstrukcí – navažte na historii nebo vytvořte moderní rezidenci. Pozemek umožňuje rozdělení nebo komerční využití (wellness, rekreace). Územní plán: Bydlení čistě obytné území.
MÁTE ZÁJEM?
Domluvte si prohlídku ještě dnes!
| Cena: | 26 900 000 Kč |
| Poznámka: | Včetně veškerých poplatků a provize. |
| Číslo zakázky: | REALITYMIX-260415 |
Podrobné informace
- Poloha objektu: samostatný
- Druh objektu: cihlová
- Stav objektu: před rekonstrukcí
- Počet podlaží objektu: 3
- Typ domu: patrový
- Plocha parcely: 5174 m²
- Užitná plocha: 157 m²
- Terasa: 41 m²
- Doprava: dálnice, silnice, MHD, autobus
- Elektřina: Elektro - 230 V
- Voda: Zdroj pro celý objekt, Voda - dálkový vodovod
- Topení: Ústřední - tuhá paliva
- Odpad: Kanalizace, ČOV pro celý objekt
Právní rádce
-
Detail
V tomto článku shrneme nejdůležitější věci, které byste si měli promyslet, pokud se chystáte prodat svou nemovitost a chcete, abyste s kupujícím nemusel následně řešit vzniklé problémy.
Jako prodávající nesete rizika spojená nejen se samotným obchodem, ale i se stavem nemovitosti v době prodeje a pro minimalizaci rizik, je dobré se zamyslet nad uvedenými oblastmi.
-
Detail
Realitní makléř má své nezastupitelné místo v realitním obchodu. Realitním makléřem nemyslím nevzdělané jelito, které absolvovalo dvoudenní školení a ví, jak se nahraje inzerát na inzertní portál.
Realitním makléřem, který se Vám skutečně vyplatí, je zkušený profesionál, který je schopen Vám dobře poradit jak prodat za co nejvíc a s nejmenším rizikem a hlavně je Vás schopen obratně provést celým realitním obchodem.