Prodej - obchodní prostor, 710 m²
Mírové náměstí, Kadaň, Chomutov
15 600 000 KčProdej - obchodní prostor, 710 m²
Mírové náměstí, Kadaň, Chomutov
Prodej obchodního prostoru 466 m2, Mírové náměstí, Kadaň
Objekt je udržovaný a ve velmi dobrém technickém stavu, připravený k okamžitému využití bez nutnosti dalších investic.
Přízemí :
Jedna část je v současné době využívána jako obchodní prostor a sklady, druhá část má samostatný vstup a je dlouhodobě pronajata stabilnímu nájemci – pobočce České spořitelny, což činí tuto nemovitost atraktivní i z investičního hlediska.
Patro:
Celé patro objektu slouží jako další obchodní prostor, vhodný například pro prodejnu, kanceláře, služby nebo kombinaci podnikatelských aktivit. Podlahy ve všech prostorách tvoří keramická dlažba.
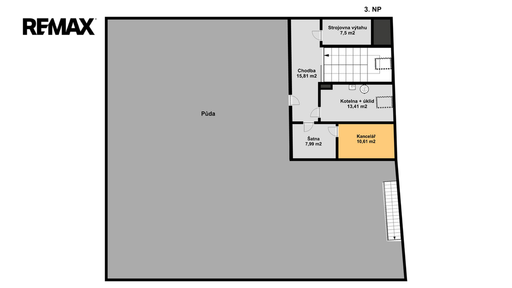
Podkroví:
V podkroví se nachází dvě samostatné místnosti, které jsou vhodné k využití jako kanceláře nebo další sklady.
K dispozici je také velký půdní prostor.
Budova je částečně podsklepena. Sklepní prostory jsou suché, čisté a mají klenuté stropy, což zvyšuje jejich atraktivitu pro skladování či další využití.
Hlavní výhody nemovitosti:
- lukrativní poloha v centru města
- udržovaný objekt vhodný k okamžitému užívání bez nutnosti rekonstrukce
- výtah a klimatizace
- možnost kombinace vlastního podnikání a stabilního nájemního výnosu
- rozsáhlé skladové prostory (sklepy i půda)
Nemovitost nabízí široké možnosti využití – obchod, služby, kanceláře i investici s pravidelným příjmem.
Pro více informací nebo domluvení prohlídky neváhejte kontaktovat makléře nabídky.
Výměry jsou uvedeny pouze orientačně. Prodávající si vyhrazuje právo vybrat kupujícího na základě jím zvolených kritérií.
| Cena: | 15 600 000 Kč |
| Číslo zakázky: | REALITYMIX-429418 |
Podrobné informace
- Plocha kanceláří: 710 m²
- Plocha parcely: 466 m²
- Druh objektu: cihlová
- Stav objektu: velmi dobrý
- Druh prostor: Obchodní
- Ostatní: Výtah
- Umístění objektu: centrum obce
- Doprava: vlak, silnice, MHD, autobus
- Komunikace: asfaltová
- Elektřina: Elektro - 230 V
- Voda: Voda - dálkový vodovod
- Telekomunikace: Internet
- Plyn: Plynovod
- Odpad: Kanalizace
- Energetická náročnost budovy: D - Méně úsporná
- Energetický ukazatel podle vyhlášky: č. 264/2020 Sb.
Právní rádce
-
Detail
V tomto článku shrneme nejdůležitější věci, které byste si měli promyslet, pokud se chystáte prodat svou nemovitost a chcete, abyste s kupujícím nemusel následně řešit vzniklé problémy.
Jako prodávající nesete rizika spojená nejen se samotným obchodem, ale i se stavem nemovitosti v době prodeje a pro minimalizaci rizik, je dobré se zamyslet nad uvedenými oblastmi.
-
Detail
Realitní makléř má své nezastupitelné místo v realitním obchodu. Realitním makléřem nemyslím nevzdělané jelito, které absolvovalo dvoudenní školení a ví, jak se nahraje inzerát na inzertní portál.
Realitním makléřem, který se Vám skutečně vyplatí, je zkušený profesionál, který je schopen Vám dobře poradit jak prodat za co nejvíc a s nejmenším rizikem a hlavně je Vás schopen obratně provést celým realitním obchodem.