Prodej - dům/vila, 238 m²
Jimlín, Louny
5 400 000 KčProdej - dům/vila, 238 m²
Jimlín, Louny
Prodej rodinného domu v Jimlíně ke kompletní rekonstrukci s podrobnými vizualizacemi
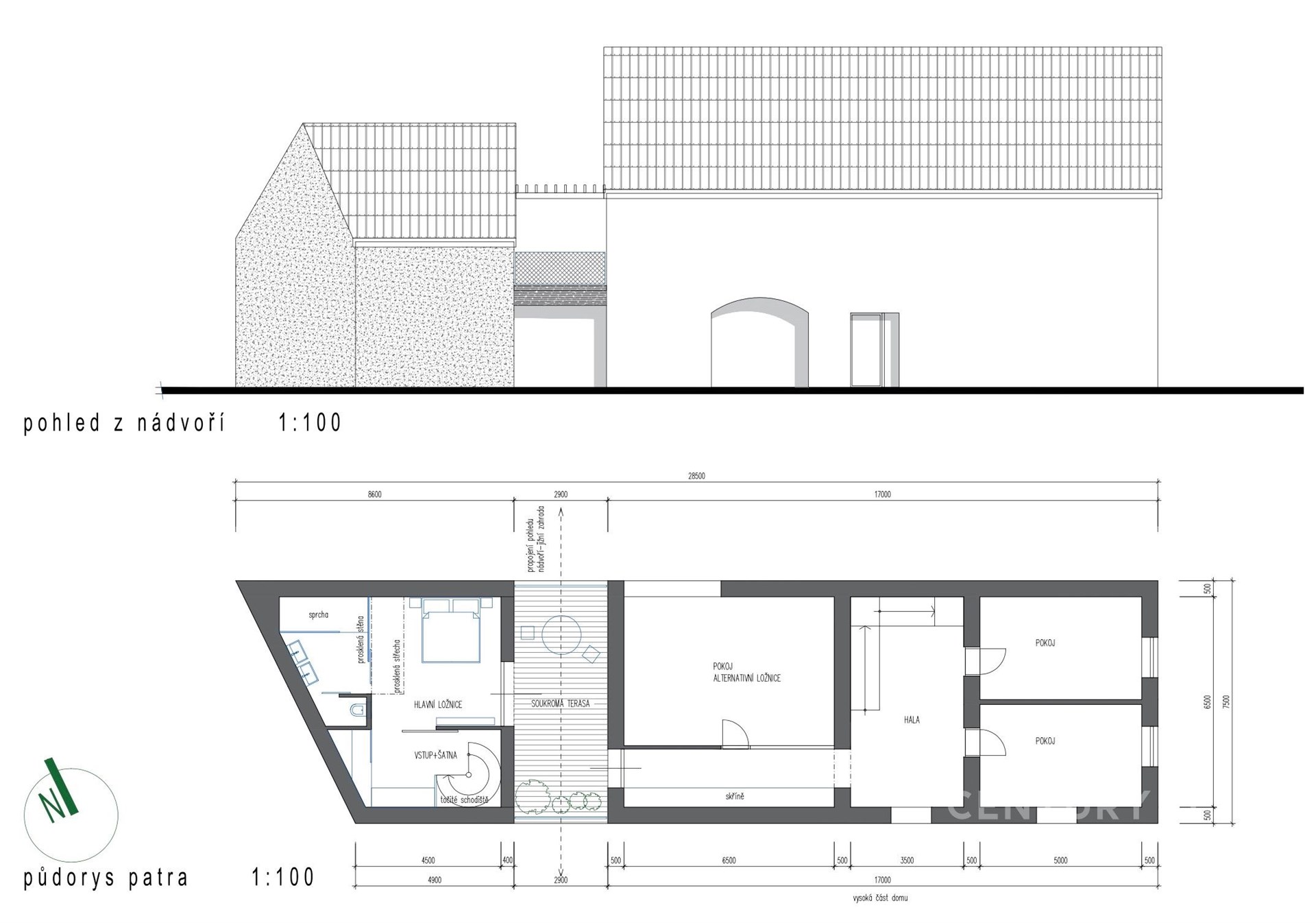
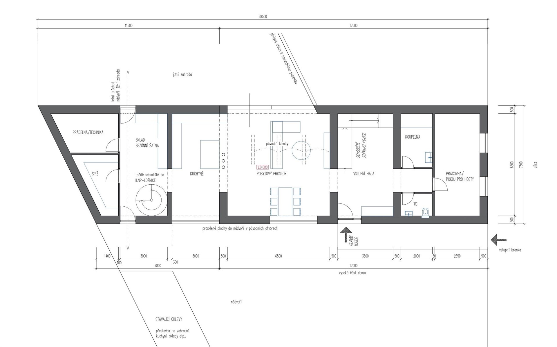
Dům se nachází na velké parcele o rozloze 1 002 m², přičemž celková zastavěná plocha je 199 m² a nebytová plocha garáže pro 2 auta je 50 m². Plánovaná obytná plocha domu činí 295 m², dispozice 7+kk. Dům bude mít 2 nadzemní podlaží a obytné podkroví. V přízemí bude prostorný obývací pokoj s kuchyní a s nádherným výhledem do zahrady a vstupem na terasu, dále pracovna, technická místnost a koupelna. V prvním patře budou dva pokoje, ložnice se šatnou a vlastní koupelnou, samostatná koupelna. V podkroví budou dvě prostorné místnosti, sklad a knihovna. Díky tomuto rozměru nabízí dům dostatek prostoru jak pro každodenní život, tak pro příjemné chvíle strávené s rodinou či přáteli.
Exteriéry domu budou stejně přitažlivé jako jeho interiér. V projektu přední část domu krášlí terasa, která je ideálním místem pro odpolední relaxaci. Dům je obklopen velkou zahradou, jež nabízí dostatek prostoru pro zahradní aktivity, pěstování i odpočinek v soukromí a chybět nemůže ani bazén.
Veškerá občanská vybavenost obecní úřad, mateřská školka, základní škola, restaurace a obchody jsou přímo v obci nebo v jejím bezprostředním okolí, což zajišťuje vysoký standard bydlení. Dopravní dostupnost je velmi dobrá, kousek je zastávka vlaku i autobusu.
| Cena: | 5 400 000 Kč |
| Poznámka: | Vč. právního servisu a provize RK. |
| Datum k nastěhování: | 01.07.2024 |
| Číslo zakázky: | REALITYMIX-972708 |
Podrobné informace
- Poloha objektu: samostatný
- Druh objektu: cihlová
- Stav objektu: před rekonstrukcí
- Počet podlaží objektu: 2
- Typ domu: patrový
- Zastavěná plocha: 199 m²
- Plocha parcely: 1002 m²
- Zahrada: ano
- Užitná plocha: 238 m²
- Sklep: ano
- Terasa: ano
- Ostatní: Garáž
- Doprava: vlak, silnice
- Elektřina: Elektro - 230 V
- Voda: Zdroj pro celý objekt, Voda - dálkový vodovod
- Telekomunikace: Internet
- Plyn: Plynovod
- Odpad: Kanalizace
- Energetická náročnost budovy: G - Mimořádně nehospodárná
Právní rádce
-
Detail
V tomto článku shrneme nejdůležitější věci, které byste si měli promyslet, pokud se chystáte prodat svou nemovitost a chcete, abyste s kupujícím nemusel následně řešit vzniklé problémy.
Jako prodávající nesete rizika spojená nejen se samotným obchodem, ale i se stavem nemovitosti v době prodeje a pro minimalizaci rizik, je dobré se zamyslet nad uvedenými oblastmi.
-
Detail
Realitní makléř má své nezastupitelné místo v realitním obchodu. Realitním makléřem nemyslím nevzdělané jelito, které absolvovalo dvoudenní školení a ví, jak se nahraje inzerát na inzertní portál.
Realitním makléřem, který se Vám skutečně vyplatí, je zkušený profesionál, který je schopen Vám dobře poradit jak prodat za co nejvíc a s nejmenším rizikem a hlavně je Vás schopen obratně provést celým realitním obchodem.