Prodej - dům/vila, 115 m²
Zlatnická, Jenštejn, Praha-východ
9 990 000 KčProdej - dům/vila, 115 m²
Zlatnická, Jenštejn, Praha-východ
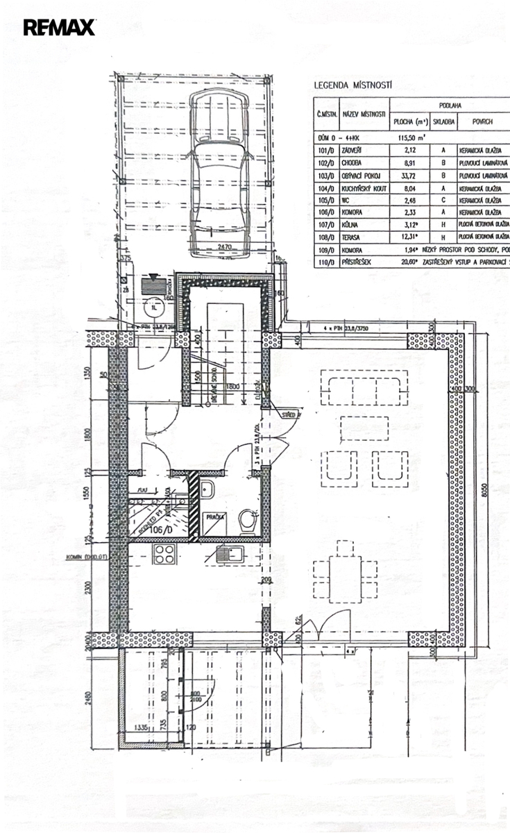
Řadový dům 4+KK 115 m2 se zahradou a parkovacím stáním
Dům je řešen jako dvoupodlažní a nabízí komfortní bydlení pro rodinu. V přízemí se nachází vstupní předsíň, technická místnost, samostatná toaleta a prostorný obývací pokoj s kuchyňským koutem. Dominantou této části je přímý vstup z obývacího pokoje na zahradu, která poskytuje ideální zázemí pro relaxaci, posezení s rodinou či přáteli nebo dětské hry.
V prvním patře jsou situovány tři samostatné ložnice, které nabízejí dostatek soukromí pro všechny členy domácnosti. Dále zde naleznete koupelnu vybavenou vanou. Dům je v dobrém stavu a připraven k okamžitému nastěhování bez nutnosti větších investic. Díky svému uspořádání a umístění je ideální volbou pro rodinné bydlení v klidném prostředí s dobrou dostupností do Prahy.
Obec Jenštejn
Jenštejn je malebná obec ležící v těsné blízkosti Prahy, která si zachovává příjemnou venkovskou atmosféru. Nabízí klidné bydlení s výbornou dostupností do hlavního města autem i prostřednictvím MHD na metro Černý most nebo Letňany. V obci se nachází pošta, mateřská školka i sportovního vyžití.
Dominantou obce je historická zřícenina hradu Jenštejn, která dodává místu jedinečný charakter. Okolí je ideální pro procházky, cyklovýlety i aktivní odpočinek v přírodě. Díky kombinaci klidu, zeleně a dobré dostupnosti do Prahy patří Jenštejn mezi velmi vyhledávané lokality pro rodinné bydlení.
V případě zájmu o více informací nebo sjednání prohlídky nás neváhejte kontaktovat. Prodávající si vyhrazuje právo vybrat kupujícího na základě jím zvolených kritérií.
| Cena: | 9 990 000 Kč |
| Číslo zakázky: | REALITYMIX-436653 |
Podrobné informace
- Poloha objektu: řadový
- Druh objektu: cihlová
- Stav objektu: velmi dobrý
- Počet podlaží objektu: 2
- Typ domu: patrový
- Zastavěná plocha: 69 m²
- Plocha parcely: 249 m²
- Zahrada: 180 m²
- Užitná plocha: 115 m²
- Umístění objektu: klidná část obce
- Komunikace: betonová
- Elektřina: Elektro - 230 V, Elektro - 400 V
- Voda: Voda - dálkový vodovod
- Telekomunikace: Internet
- Plyn: Plynovod
- Odpad: Kanalizace
- Energetická náročnost budovy: D - Méně úsporná
- Energetický ukazatel podle vyhlášky: č. 264/2020 Sb.
Právní rádce
-
Detail
V tomto článku shrneme nejdůležitější věci, které byste si měli promyslet, pokud se chystáte prodat svou nemovitost a chcete, abyste s kupujícím nemusel následně řešit vzniklé problémy.
Jako prodávající nesete rizika spojená nejen se samotným obchodem, ale i se stavem nemovitosti v době prodeje a pro minimalizaci rizik, je dobré se zamyslet nad uvedenými oblastmi.
-
Detail
Realitní makléř má své nezastupitelné místo v realitním obchodu. Realitním makléřem nemyslím nevzdělané jelito, které absolvovalo dvoudenní školení a ví, jak se nahraje inzerát na inzertní portál.
Realitním makléřem, který se Vám skutečně vyplatí, je zkušený profesionál, který je schopen Vám dobře poradit jak prodat za co nejvíc a s nejmenším rizikem a hlavně je Vás schopen obratně provést celým realitním obchodem.
Mapa
Podobné nemovitosti
Prodej - dům/vila, 138 m²
Petra Jilemnického, Brandýs nad Labem, Praha-východ
8 900 000 Kč
Prodej - dům/vila, 70 m²
Masarykova, Čelákovice, Praha-východ
10 900 000 Kč
Prodej - dům/vila, 80 m²
Formanská, Veltěž, Praha-východ
9 990 000 Kč
Prodej - dům/vila, 141 m²
Krátká, Třemblat, Praha-východ
7 290 000 Kč