Prodej bytu, 3+kk, 93 m²
Legionářská, Jedovnice, Blansko
5 300 000 KčProdej bytu, 3+kk, 93 m²
Legionářská, Jedovnice, Blansko
Prodej bytu 3+kk 93 m², Jedovnice
Dům si i po zdařilé rekonstrukci zachoval svůj jedinečný charakter i atmosféru.
Byt je umístěn ve 3. nadzemním podlaží tohoto domu, ve kterém jsou pouze čtyři bytové jednotky.
Díky tomu nabízí bydlení komorní a klidnou atmosféru.
Dominantou bytu je prostorný obývací pokoj s kuchyňským koutem. Interiér je vybaven prostornou kuchyňskou linkou se spotřebiči.
Byt působí vzdušně a otevřeně a ze všech místností jsou krásné výhledy do okolí.
Podlahy v obytných místnostech jsou plovoucí a dlažby jsou položeny v koupelně a na chodbě.
V rámci nedávné revitalizace byla v bytě instalována dřevěná eurookna.
V bytě je komfortní podlahové vytápění, které zajišťuje příjemné a zároveň úsporné bydlení.
Velkým benefitem k bytu je společná zahrada o výměře více jak 1 200 m², která je mezi jednotlivé vlastníky rozdělena dohodou k užívání.
K domu náleží také velká garáž s elektricky ovládanými vraty, kde si vlastníci rovněž vymezili své prostory.
Orientace obývacího pokoje je severovýchodní, ložnice a dětský pokoj jsou orientovány na jihozápad.
Dům má velmi dobrou polohu – v docházkové vzdálenosti je jak dětské hřiště, tak i centrum městyse, autobusová zastávka i okolní příroda.
V blízkosti se nachází lesní cesty, trailové trasy i rybníky.
Jedovnice nabízejí výbornou občanskou vybavenost – mateřskou, základní, střední i uměleckou školu, lékaře obchody, restaurace, kavárny i sportoviště.
V případě vyššího počtu zájemců může být nemovitost prodána nejvýhodnější nabídce.
Tak co na to říkáte? Chcete se na byt podívat osobně?
Potom se se mnou neváhejte spojit.
| Cena: | 5 300 000 Kč |
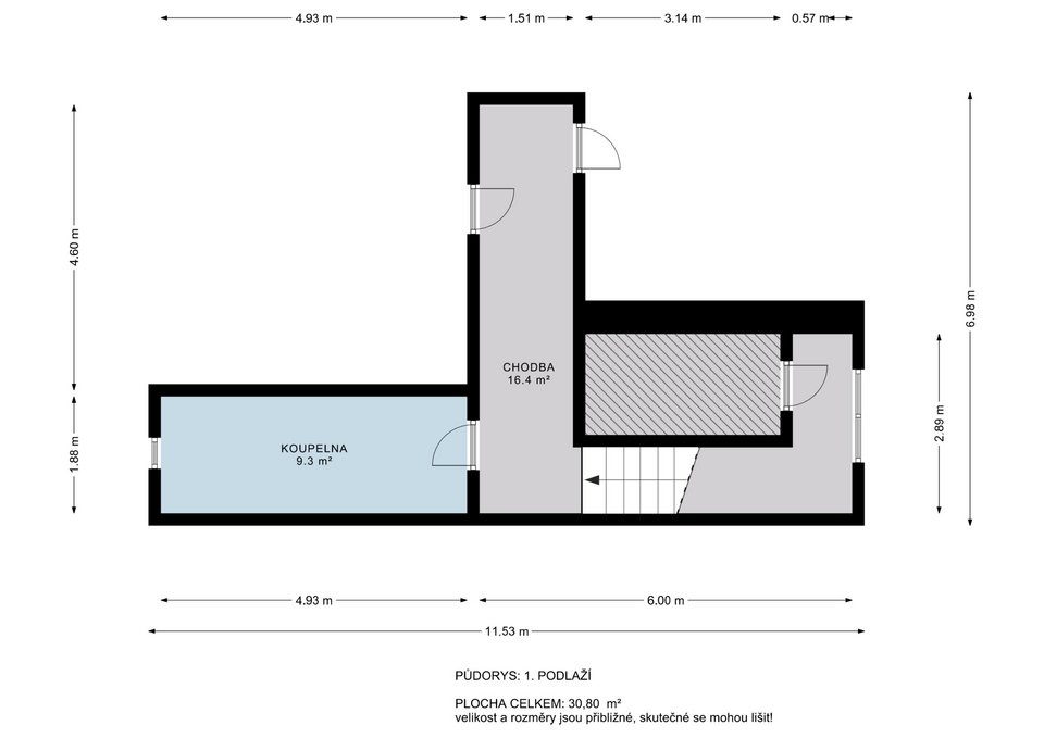
| Dispozice/podlahová plocha: | 3+kk/93 m² |
| Číslo zakázky: | REALITYMIX-00062 |
Podrobné informace
- Dispozice bytu: 3+kk
- Číslo podlaží v domě: 3
- Počet podlaží objektu: 3
- Celková podlahová plocha: 93 m²
- Druh objektu: cihlová
- Stav objektu: velmi dobrý
- Vlastnictví: osobní
- Vybaveno: ano
- Umístění objektu: klidná část obce
- Doprava: silnice, autobus
- Elektřina: Elektro - 230 V
- Voda: Voda - dálkový vodovod
- Odpad: Kanalizace
- Energetická náročnost budovy: B - Velmi úsporná
- Ukazatel energetické náročnosti budovy: 137 kWh/m²
- Energetický ukazatel podle vyhlášky: č. 78/2013 Sb.
Právní rádce
-
Detail
V tomto článku shrneme nejdůležitější věci, které byste si měli promyslet, pokud se chystáte prodat svou nemovitost a chcete, abyste s kupujícím nemusel následně řešit vzniklé problémy.
Jako prodávající nesete rizika spojená nejen se samotným obchodem, ale i se stavem nemovitosti v době prodeje a pro minimalizaci rizik, je dobré se zamyslet nad uvedenými oblastmi.
-
Detail
Realitní makléř má své nezastupitelné místo v realitním obchodu. Realitním makléřem nemyslím nevzdělané jelito, které absolvovalo dvoudenní školení a ví, jak se nahraje inzerát na inzertní portál.
Realitním makléřem, který se Vám skutečně vyplatí, je zkušený profesionál, který je schopen Vám dobře poradit jak prodat za co nejvíc a s nejmenším rizikem a hlavně je Vás schopen obratně provést celým realitním obchodem.