Prodej - dům/vila, 379 m²
Janov nad Nisou, Jablonec nad Nisou
8 990 000 KčProdej - dům/vila, 379 m²
Janov nad Nisou, Jablonec nad Nisou
Prodej rodinného domu v srdci Jizerských hor
Hledáte klidné bydlení v přírodě s výbornou dostupností a potřebnou občanskou vybaveností? Tento rodinný dům v Janově nad Nisou je přesně tím, co hledáte!
Základní informace:
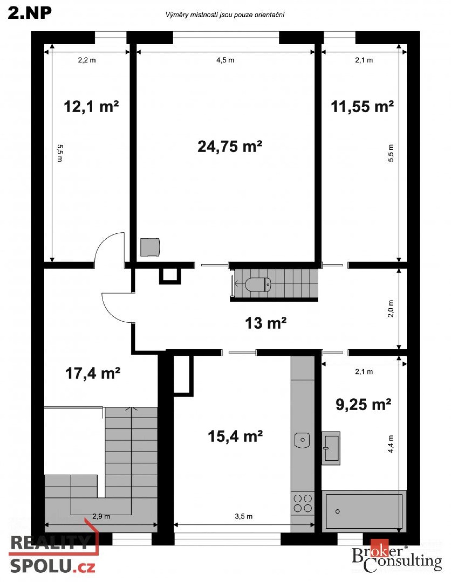
1. NP + obytné podkroví + půda
Užitná plocha: 379 m²
Pozemek: 2 540 m²
Dispozice: ideální pro vícegenerační bydlení, penzion nebo kombinaci bydlení s podnikáním, prostorný sklep, podkroví
200 m od domu plynová přípojka
Vytápění - tepelné čerpadlo
ČOV
Sklep pod celým domem
Vytápění na tuhá paliva, ohřev vody kombinovaným bojlerem
Navazující kolna
Lokalita, která má duši
Nemovitost se nachází v klidné části Janova nad Nisou, v oblíbené rekreační oblasti Jizerských hor. Obklopeni nádhernou přírodou budete žít v čistém prostředí a přitom kousek od civilizace.
Místo je ideální pro milovníky klidného bydlení, turistiky, cyklistiky, běžkování či sjezdového lyžování – v okolí najdete desítky tras, ski areály i atraktivní bobovou dráhu. V létě koupání v nedaleké jablonecké přehradě, v zimě zasněžené panoráma – rekreační ráj po celý rok.
Skvělá dopravní dostupnost
Zastávka MHD je jen 5 minut chůze od domu.
Do Jablonce nad Nisou pohodlně za 10 minut autem, Liberec do 25 minut.
Občanská vybavenost v docházkové vzdálenosti:
Základní a mateřská škola
Městský úřad, pošta
Obchod, restaurace, kavárna, pekárna
Sokolovna, sportoviště
Bobová dráha a další možnosti aktivního vyžití
Rekonstrukce jako příležitost
Dům je v původním, udržovaném stavu po částečné rekonstrukci a nabízí velký potenciál k úpravám dle vlastních představ. Novému majiteli poskytuje prostor k modernizaci, která může proměnit tuto nemovitost v komfortní rodinné sídlo nebo stylové rekreační ubytování.
Statika, prostor a lokalita jsou silnými stránkami, na kterých lze dál stavět. Díky tomu je případná rekonstrukce skvělou příležitostí, jak vtisknout domu osobitý charakter.
Vhodné pro:
Rodiny hledající bezpečné a zdravé prostředí pro život.
Podnikatele (možnost přestavby na penzion či apartmány).
Ty, kteří touží po klidném domově s přírodou za okny a městem na dosah.
Neváhejte a přijďte se přesvědčit o výjimečnosti této nabídky.
Pro více informací nebo sjednání prohlídky mě kontaktujte ještě dnes.
| Cena: | 8 990 000 Kč |
| Číslo zakázky: | REALITYMIX-84367 |
Podrobné informace
- Poloha objektu: samostatný
- Druh objektu: cihlová
- Stav objektu: dobrý
- Počet podlaží objektu: 2
- Typ domu: patrový
- Plocha parcely: 2540 m²
- Užitná plocha: 379 m²
- Umístění objektu: klidná část obce
- Doprava: silnice, MHD, autobus
- Elektřina: Elektro - 230 V
- Telekomunikace: Internet
- Energetická náročnost budovy: F - Velmi nehospodárná
Právní rádce
-
Detail
V tomto článku shrneme nejdůležitější věci, které byste si měli promyslet, pokud se chystáte prodat svou nemovitost a chcete, abyste s kupujícím nemusel následně řešit vzniklé problémy.
Jako prodávající nesete rizika spojená nejen se samotným obchodem, ale i se stavem nemovitosti v době prodeje a pro minimalizaci rizik, je dobré se zamyslet nad uvedenými oblastmi.
-
Detail
Realitní makléř má své nezastupitelné místo v realitním obchodu. Realitním makléřem nemyslím nevzdělané jelito, které absolvovalo dvoudenní školení a ví, jak se nahraje inzerát na inzertní portál.
Realitním makléřem, který se Vám skutečně vyplatí, je zkušený profesionál, který je schopen Vám dobře poradit jak prodat za co nejvíc a s nejmenším rizikem a hlavně je Vás schopen obratně provést celým realitním obchodem.
Mapa
Podobné nemovitosti
Prodej - dům/vila, 450 m²
Janov nad Nisou, Jablonec nad Nisou
9 800 000 Kč
Prodej - dům/vila, 360 m²
Spojovací, Desná I, Jablonec nad Nisou
6 900 000 Kč
Prodej - dům/vila, 187 m²
Desná I, Desná, Jablonec nad Nisou
8 950 000 Kč
Prodej - dům/vila, 600 m²
Komenského, Tanvald, Jablonec nad Nisou
9 500 000 Kč