Prodej - dům/vila, 282 m²
Hradní, Hustopeče, Břeclav
8 400 000 KčProdej - dům/vila, 282 m²
Hradní, Hustopeče, Břeclav
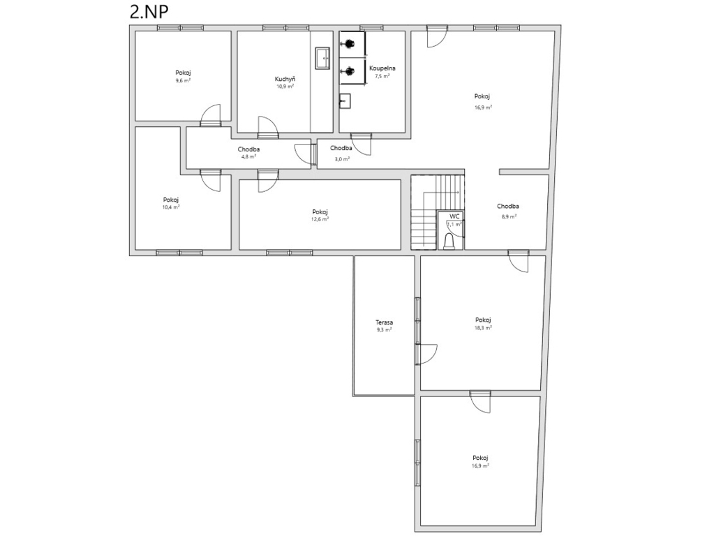
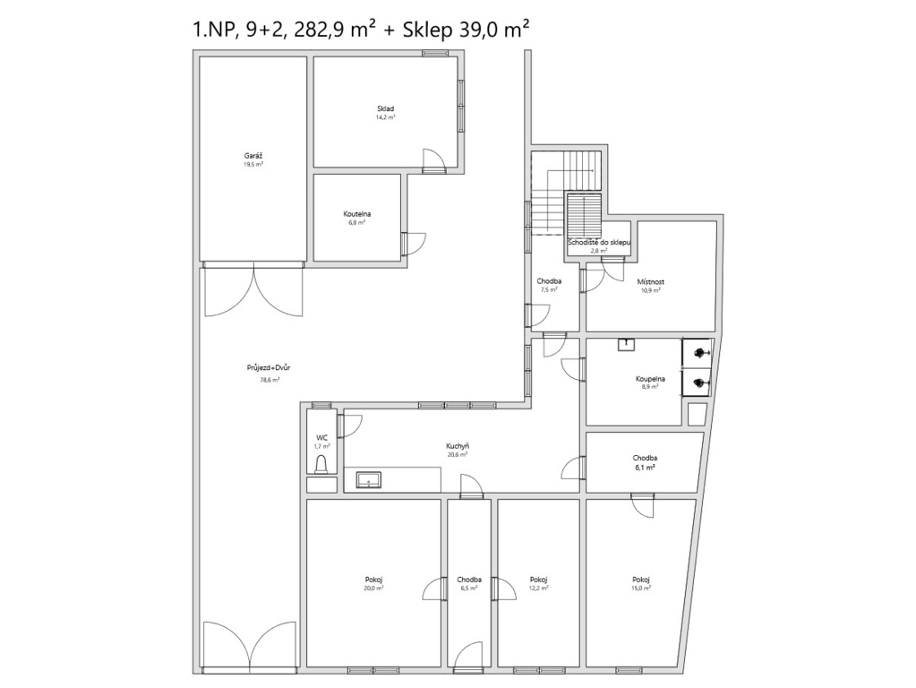
Nabízíme k prodeji rodinný dům o dispozici 9+2 s vinným sklepem
Dům je určen ke kompletní rekonstrukci, což je velkou výhodou pro ty, kteří chtějí vytvořit originální bydlení na míru – přesně takové, jaké bude odpovídat potřebám celé rodiny. Díky dvěma samostatným bytovým jednotkám se zde pohodlně může usídlit i dvougenerační rodina, která ocení dostatek soukromí i prostoru pro společná rodinná setkání. Stejně tak ale můžete jednu část domu využít například k podnikání – ideální řešení pro ty, kdo chtějí skloubit práci a domov pod jednou střechou.
Velkým benefitem je rozlehlý pozemek, který nabízí dostatek místa pro relaxaci, dětské hry, zahradničení nebo třeba venkovní posezení s přáteli. Vše si tu snadno přetvoříte na bezpečné rodinné zázemí, kde budou děti vyrůstat v klidném prostředí, a přitom zůstanete na dosah veškeré občanské vybavenosti.
Samozřejmostí je napojení na všechny inženýrské sítě – elektřinu, plyn, kanalizaci i vodovod. Díky klidné ulici Hradní a dobré dostupnosti do centra i okolí se jedná o ideální místo pro rodinný život s dětmi, které budou mít vše potřebné doslova na dosah: školy, školky, obchody i hřiště.
Pokud tedy hledáte dům s velkým potenciálem, kde můžete spojit rodinné bydlení s podnikáním, případně vybudovat komfortní dvougenerační domov, pak vás tato nemovitost rozhodně nezklame. Ráda vás vezmu na prohlídku a ukážu vám všechno osobně.
Hustopeče jsou oblíbené město ležící v srdci vinařského kraje, které nabízí ideální kombinaci klidného bydlení a skvělé dopravní dostupnosti. Díky rychlému napojení na dálnici D2 se pohodlně dostanete do Brna za pouhých 25 minut, což ocení nejen rodiny s dětmi, ale i ti, kteří dojíždějí za prací. Město disponuje kompletní občanskou vybaveností — najdete zde školy, školky, obchody, zdravotní služby, sportoviště i množství příležitostí pro volnočasové aktivity. Nechybí ani krásná příroda, vinice a cyklostezky v okolí. Hustopeče tak spojují pohodlí menšího města s výhodami rychlého spojení do větších center.
| Cena: | 8 400 000 Kč |
| Číslo zakázky: | REALITYMIX-2992 |
Podrobné informace
- Poloha objektu: řadový
- Druh objektu: cihlová
- Stav objektu: před rekonstrukcí
- Počet podlaží objektu: 2
- Typ domu: patrový
- Zastavěná plocha: 663 m²
- Plocha parcely: 1120 m²
- Užitná plocha: 282 m²
- Sklep: 39 m²
- Umístění objektu: klidná část obce
- Komunikace: asfaltová
- Voda: Voda - dálkový vodovod
- Plyn: Plynovod
- Odpad: Kanalizace
- Energetická náročnost budovy: G - Mimořádně nehospodárná
- Energetický ukazatel podle vyhlášky: č. 264/2020 Sb.
Právní rádce
-
Detail
V tomto článku shrneme nejdůležitější věci, které byste si měli promyslet, pokud se chystáte prodat svou nemovitost a chcete, abyste s kupujícím nemusel následně řešit vzniklé problémy.
Jako prodávající nesete rizika spojená nejen se samotným obchodem, ale i se stavem nemovitosti v době prodeje a pro minimalizaci rizik, je dobré se zamyslet nad uvedenými oblastmi.
-
Detail
Realitní makléř má své nezastupitelné místo v realitním obchodu. Realitním makléřem nemyslím nevzdělané jelito, které absolvovalo dvoudenní školení a ví, jak se nahraje inzerát na inzertní portál.
Realitním makléřem, který se Vám skutečně vyplatí, je zkušený profesionál, který je schopen Vám dobře poradit jak prodat za co nejvíc a s nejmenším rizikem a hlavně je Vás schopen obratně provést celým realitním obchodem.