Prodej - dům/vila, 195 m²
Drnholecká, Hrušovany nad Jevišovkou, Znojmo
8 990 000 KčProdej - dům/vila, 195 m²
Drnholecká, Hrušovany nad Jevišovkou, Znojmo
Prodej vícegeneračního domu 195 m2 Drnholecká, Hrušovany nad Jevišovkou
Představte si místo, kde může být celá rodina pohromadě a přitom má každý svůj prostor a klid.
Nebo si představte místo, kde si všechny budoucí manželské páry budou chtít říct své "ano".
Místo, kde ráno voní káva v zahradě mezi ovocnými stromy a večer se ve sklípku u sklenky vína rodí nové příběhy.
Toužíte po domově v nádherném kraji v blízkosti pálavských vrchů, který může být útočištěm, investicí i zdrojem radosti? Ať už hledáte dvougenerační bydlení, prostor pro podnikání, nebo chcete jen zázemí k odpočinku blízko Rakouska a cyklostezek tohle místo čeká právě na vás.
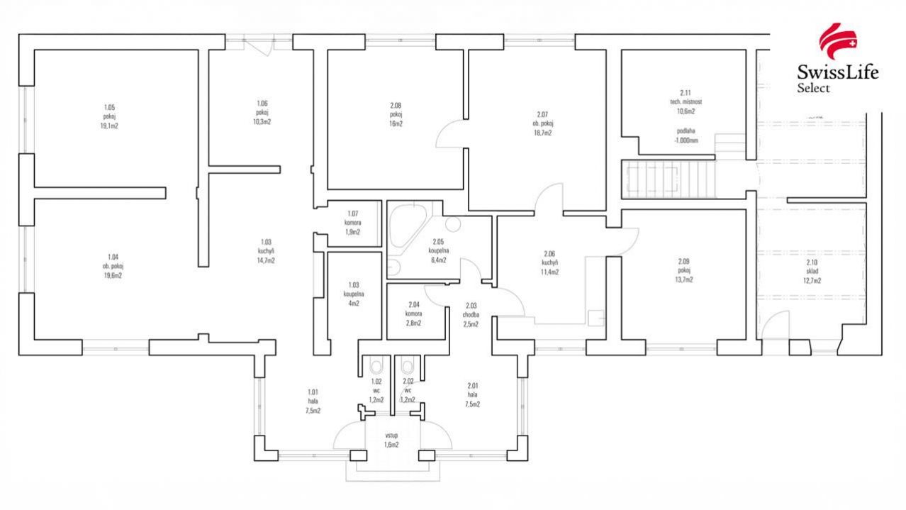
Rodinný dům po kompletní rekonstrukci je navržen jako dvě samostatné bytové jednotky s oddělenými vchody. Nabízí svobodu a soukromí a zároveň možnost propojit život celé rodiny pod jednou střechou. Nebo jej proměnit v chytrou investici. Volba je jen vaše.
Obě jednotky jsou připravené k finálnímu dokončení a právě to je kouzlo. Můžete je dotvořit přesně podle svých představ:
- První bytová jednotka zbývá osadit dveře a kuchyňskou linku, a je připravena k nastěhování.
- Druhá bytová jednotka čeká na podlahy, dveře a kuchyňskou linku, a tím vám dává ještě větší prostor k seberealizaci.
Každý detail si můžete zvolit sami a vytvořit tak domov, který bude vonět po vás, odrážet vaši osobnost a splňovat vaše sny o dokonalém bydlení.
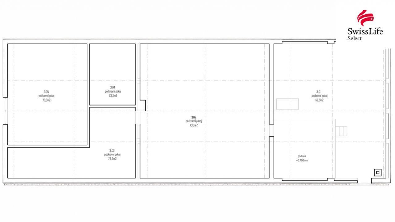
Dům má i prostornou technickou místnost a půdní prostor, kde mohou vzniknout další 2 až 3 bytové jednotky. Pro velkou rodinu, pro nájemníky, nebo třeba jako hostinské apartmány.
Na rozlehlém pozemku najdete dvě studny, které můžete použít třeba na zalévání zahrady, ovocné stromy, vinnou révu a hlavně malebnou stodolu. A ta může být čímkoli, co si vysníte:
- prostorem plným radosti a hudby,
- místem, kde můžete uspořádat svatební obřad
- ateliérem, kde vznikají vaše nápady,
- sálem, kde se dýchá jóga a klid,
- nebo domovem pro zvířata, která sem přinesou život a pohyb.
A protože Morava je krajem vína, nemůže chybět ani vinný sklípek místo pro setkávání, oslavy a nezapomenutelné večery s rodinou a přáteli.
Rozměry:
Pozemek - 2 848m2
Užitná plocha po rekonstrukci - 158,5m2 (1. byt 78,3 a 2. byt 80,2)
Technická místnost - 37m2
Půdní prostor - 209,2m2
Stodola - 167,6m2
Sklípek - 32,7m2
PENB je aktuálně ve výrobě (dům je zateplen).
Dům je připojen k obecnímu vodovodu a kanalizaci. Plyn je na hranici pozemku.
Jsou nemovitosti, které se těžko popisují slovy. Tohle místo má duši a energii, kterou musíte cítit na vlastní kůži. Přijďte projděte se zahradou, dotkněte se kamene ve sklípku, nadechněte se té atmosféry. Možná zjistíte, že je to právě váš nový domov.
Budu se na vás těšit a ráda vás provedu prvním krokem ke splnění vašich snů.
| Cena: | 8 990 000 Kč |
| Číslo zakázky: | REALITYMIX-24538 |
Podrobné informace
- Poloha objektu: samostatný
- Druh objektu: cihlová
- Stav objektu: po rekonstrukci
- Počet podlaží objektu: 2
- Typ domu: patrový
- Zastavěná plocha: 1535 m²
- Plocha parcely: 2848 m²
- Užitná plocha: 195 m²
- Sklep: 32 m²
- Umístění objektu: okraj obce
- Doprava: vlak, silnice, MHD, autobus
- Odpad: Kanalizace
- Energetická náročnost budovy: G - Mimořádně nehospodárná
Právní rádce
-
Detail
V tomto článku shrneme nejdůležitější věci, které byste si měli promyslet, pokud se chystáte prodat svou nemovitost a chcete, abyste s kupujícím nemusel následně řešit vzniklé problémy.
Jako prodávající nesete rizika spojená nejen se samotným obchodem, ale i se stavem nemovitosti v době prodeje a pro minimalizaci rizik, je dobré se zamyslet nad uvedenými oblastmi.
-
Detail
Realitní makléř má své nezastupitelné místo v realitním obchodu. Realitním makléřem nemyslím nevzdělané jelito, které absolvovalo dvoudenní školení a ví, jak se nahraje inzerát na inzertní portál.
Realitním makléřem, který se Vám skutečně vyplatí, je zkušený profesionál, který je schopen Vám dobře poradit jak prodat za co nejvíc a s nejmenším rizikem a hlavně je Vás schopen obratně provést celým realitním obchodem.